Добавить в корзинуПозвонить
Найти в Дзене

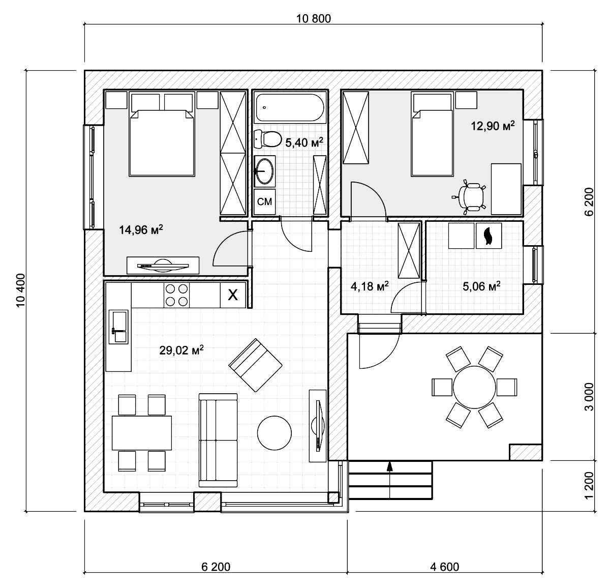
Проект одноэтажного дома с 2-мя спальнями и кухней-гостиной - 72 кв. м

Проект современного небольшого одноэтажного дома с 2-мя спальными комнатами, общей кухней с гостиной, 1 с/у, также в доме предусмотрена котельная и небольшая терраса. Площадь дома - 72 кв.м.
Габариты - 10.8x10.4 м. Ссылка на проект дома 1-082 Каждый проект можно адаптировать под любой вид строительного материала — кирпич, газобетон, керамзитобетон, монолит и керамический блок. Если вы хотите заказать проект одноэтажного дома на базе типового проекта "Тамань" свяжитесь с нашими специалистами удобным для вас способом: Мы подготовим для вас необходимые для дальнейшего строительства АР и КР (архитектурные и конструктивные решения), внесем корректировки в планировку и используемые материалы при желании. Также готовы разработать проекты инженерных сетей (электрика, отопление, водоснабжение и водоотведение) и дизайн-проект для дальнейшей внутренней отделки. Больше вариантов проектов одноэтажных домов - на нашем сайте
Оглавление

Проект современного небольшого одноэтажного дома с 2-мя спальными комнатами, общей кухней с гостиной, 1 с/у, также в доме предусмотрена котельная и небольшая терраса.

Площадь дома - 72 кв.м.
Габариты - 10.8x10.4 м.

Ссылка на проект дома 1-082

Каждый проект можно адаптировать под любой вид строительного материала — кирпич, газобетон, керамзитобетон, монолит и керамический блок.

План этажа

-2

Как заказать проект дома?

Если вы хотите заказать проект одноэтажного дома на базе типового проекта "Тамань" свяжитесь с нашими специалистами удобным для вас способом:

Мы подготовим для вас необходимые для дальнейшего строительства АР и КР (архитектурные и конструктивные решения), внесем корректировки в планировку и используемые материалы при желании. Также готовы разработать проекты инженерных сетей (электрика, отопление, водоснабжение и водоотведение) и дизайн-проект для дальнейшей внутренней отделки.

Больше вариантов проектов одноэтажных домов - на нашем сайте