Найти в Дзене
buro brut old

Преодолевая непреодолимое. 38 м². Перепланировка в Сколково

Задачи:
Отказ от длинного узкого коридора
Насыщение зонами хранения
Создание зоны для игры в PlayStation

Задачи:

  1. Отказ от длинного узкого коридора
  2. Насыщение зонами хранения
  3. Создание зоны для игры в PlayStation
  4. Выделение рабочей зоны

Срок реализации: 1 день

Без выезда на объект

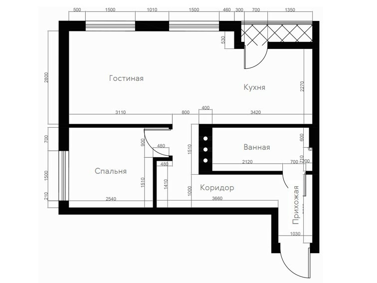
Исходное положение. Расположение вытянутой ванной прямо перед входом в квартиру создает безумно длинный узкий коридор от входа к гостиной. А наличие коммуникаций слева в ванной комнате не позволяет изменить ее конфигурацию.

-2

Ширина коридора местами достигает 80 см. Два человека уже не разойдутся. К тому же нет никакой возможности установить близко от входа зоны хранения, хотя бы обуви.

-3

Сносим все перегородки, кроме стен ванной комнаты. За счет ванной выигрываем закуток для хранения. "Привязываем" к коммуникациям и входу первые помещения.

-4

Распределяем ключевые помещения по окнам. Принимаем стратегическое решение поменять местами гостиную и спальню. Таким образом, "растворяем" существовавший коридор в едином пространстве столовая-гостиная (игровая).

-5

В свободных пространствах размещаем "гардеробную" и рабочую зону.

-6

Выстраиваем перегородки в соответствии с предполагаемыми размерами мебели, расставляем мебель, проверяем обзор телевизоров.

Вуаля!

-8
-9