Найти в Дзене

Красивый проект дома с мансардой 165 м2

Вашему вниманию очень красивый проект дома с мансардным этажом 165 м2. В доме 4 спальни и теплый гараж на первом этаже.
Фасад дома выглядит великолепно. Фасадная штукатурка в сочетании с планкеном и декоративным камнем притягивают взгляд. Просторные балкон и терраса - украшение дома и замечательное место отдыха хозяев. Дом подойдет для участка, окруженного лесным массивом или для участка,

Вашему вниманию очень красивый проект дома с мансардным этажом 165 м2. В доме 4 спальни и теплый гараж на первом этаже.

Фасад дома выглядит великолепно. Фасадная штукатурка в сочетании с планкеном и декоративным камнем притягивают взгляд. Просторные балкон и терраса - украшение дома и замечательное место отдыха хозяев. Дом подойдет для участка, окруженного лесным массивом или для участка, облагороженного садом. Это будет настоящее сказочное место.

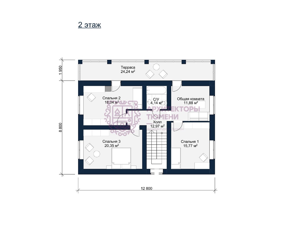
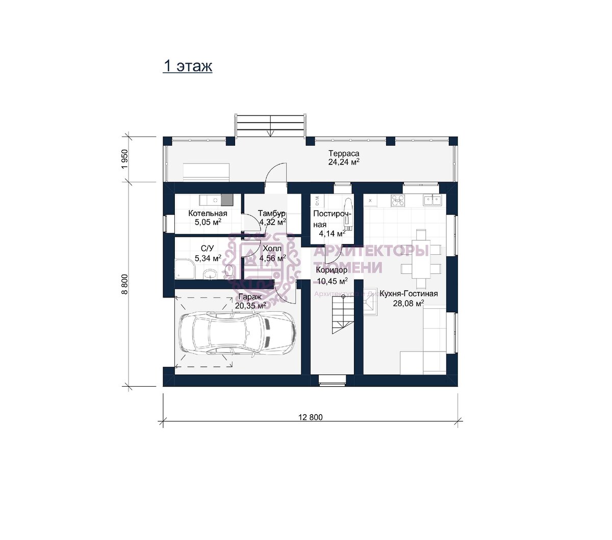
Фасады дома - не единственный плюс проекта. Внутренние планировки - удобные и эргономичные. В доме 4 спальни, 2 санузла, просторная кухня-гостиная, собственная котельная, постирочная, гараж на один автомобиль.

Заказать проект дома "Алтай" можно по телефону +7 (499) 346-84-70.

Выбирайте свой проект на нашем сайте: Архитекторы Тюмени РФ.

Рассчитайте, сколько будет стоить проект дома на сайте нашего застройщика!

Подписывайтесь на наш канал! Будьте с нами!