Сегодня рады поделиться с вами одним из наших проектов гардеробной системы, которые мы реализовали в квартире Подмосковья.
К нам обратился клиент, который приобрёл квартиру и успел сделать чистовой ремонт, то есть он уже начал заниматься её наполнением. Один из первых моментов, о котором он подумал – это конечно же гардеробная комната. Ведь необходимо где-то хранить вещи при переезде.
Перед нашими дизайнерами была поставлена задача сделать максимально удобную гардеробную систему по двум сторонам, оставив при этом место под комод на стене между ними.
Прежде, чем приступить к работе, нам необходимо получить точные размеры помещения. Для этого есть два варианта:
- Вызвать замерщика
- Снять показания самостоятельно
Клиент выбрал первый вариант, и мы согласовал с ним дату и время приезда специалиста.
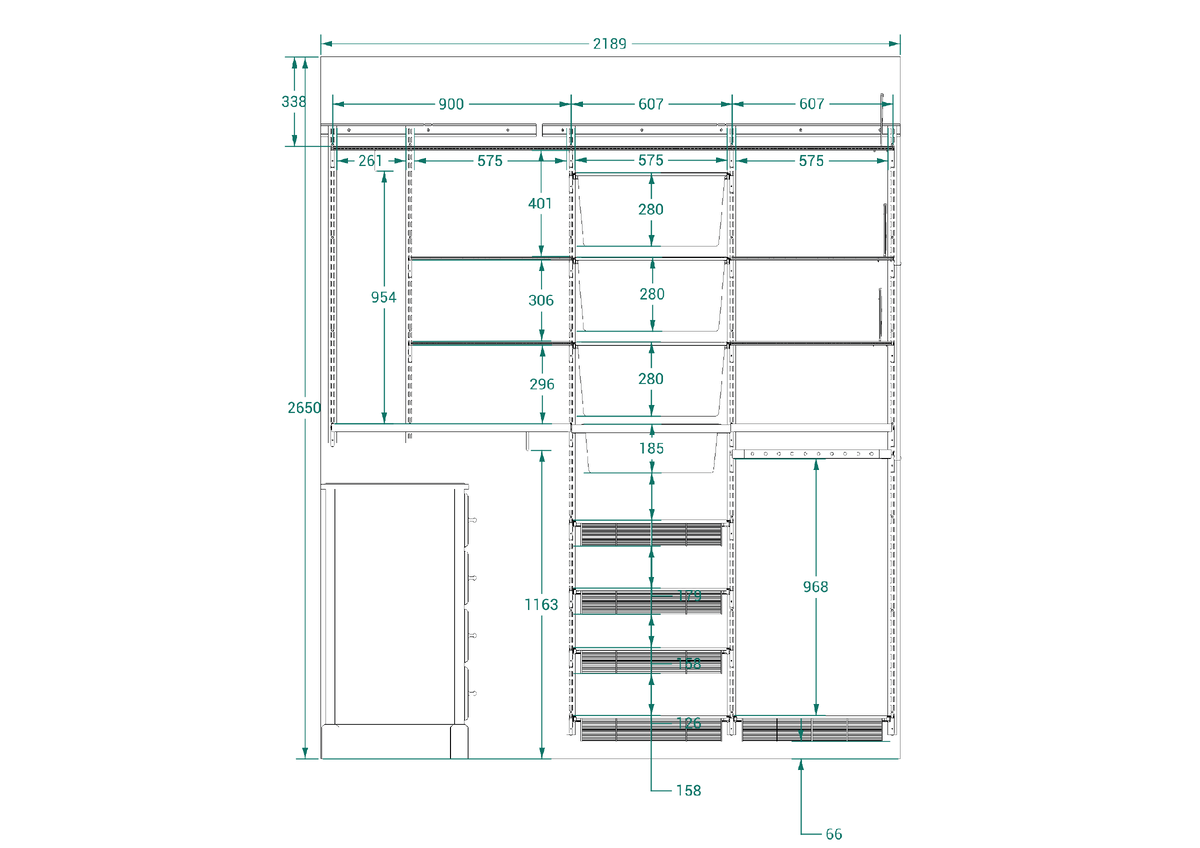
После того, как наши дизайнеры получили все необходимые данные, они приступили к созданию дизайн-проекта. Изначально мы получаем вот такой технический макет:
Но на согласование клиенту мы всегда готовим качественные рендеры в таком виде:
Как вы можете видеть, в данном проекте наши дизайнеры предусмотрели всё необходимое, для удобного хранения совершенно разных вещей:
- Достаточное количество проволочных полок для хранения вещей в сложенном виде и в органайзерах (особенно удобно это делать на верхних полках);
- Штанги, для хранения вещей на плечиках разной длины вдоль большей стены;
- Сетчатые корзины для хранения мелких вещей;
- Для создания большего уюта, наши дизайнеры предложили добавить в проект деревянные декоративные планки.
После согласования данного макета с клиентом, мы согласовали дату доставки комплектующих и монтажа, который состоялся спустя 2 дня с момента обращения клиента.
Клиент остался доволен полученным результатом, а мы пополнили портфолио наших готовых проектов.
Стоимость проекта: 94 545,7 рублей
Хотите создать свой индивидуальный проект гардеробной системы? Просто пройдите по ссылке и оставьте заявку на расчёт вашего дизайн-проекта за 60 секунд!