Добавить в корзинуПозвонить
Найти в Дзене
Центр Света "Эдисон"

Как избежать ошибок в светодизайне

Начинайте с плана
Хозяева жилья допускают две типичные ошибки:
Откладывают планирование системы освещения на этап отделки
Поручают вопрос нанятому электрику: «По опыту предусмотрите столько мест для установки розеток, выключателей, светильников , сколько нужно».
Оглавление

Начинайте с плана

Хозяева жилья допускают две типичные ошибки:

  • Откладывают планирование системы освещения на этап отделки
  • Поручают вопрос нанятому электрику: «По опыту предусмотрите столько мест для установки розеток, выключателей, светильников , сколько нужно».

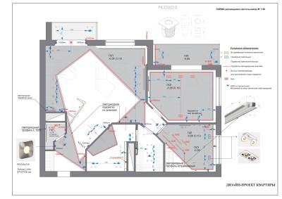
Даже если мастер отделывал квартиры сходной планировки, ваш вариант отличается хотя бы деталями. Поэтому на первом этапе составляется план помещений, расстановки мебели и монтажа светильников (с указанием типа).

Если сложно оформить рисунок в таком формате, как это делают инженеры, не тратьте силы. Нарисуйте так, как получается, а затем проанализируйте решение. Лучше сделать это со специалистом, чтобы опытный человек предложил улучшения. Обсудить вопрос можно как с нанятым дизайнером, электриком, так и с консультантом интернет-магазина Центр света «Эдисон».

Число и размер люстр

Неопытные хозяева жилья по старинке действуют, исходя из принципа «одна гостиная – одна люстра », даже если размер помещения превышает 30 квадратных метров. Но светодизайнеры твердо заявляют: одного потолочного светильника мало для комнаты даже меньшей площади. Типовые варианты решения вопроса на сегодня:

  • Дополнить верхний ярус встроенными светильниками, спотами
  • Использовать люстру-паук или другие объемные модели

Это поможет убрать тени и сумрак из углов комнаты. Но рекомендуем использовать также другой способ, о котором почему-то забывают. Предусмотрите место для монтажа двух или большего числа люстр. Используйте полностью идентичные или различающиеся формой, цветом модели одной линейки. В обоих случаях интерьер с двумя подвесными светильниками смотрится оригинально и солидно.

Попытки добиться результата другими способами не приведут к успеху. Мощная модель скорее излишне ярко осветит центр комнаты, но элементы интерьера по периметру останутся размытыми и неконтрастными. Это уже не говоря о том, что многорожковая люстра стоит дороже двух обычных!

Крепления и монтажное пространство для светильников

Современные люстры чаще крепятся на планку, чем на крюк. Но если ремонтникам не дали однозначных указаний, то по умолчанию устанавливают второй вариант. Такая ошибка обойдется дорого, ведь придется либо менять светильник, либо возобновлять работы после завершения чистовой отделки.

Сходные ошибки делают и при монтаже встроенных, точечных светильников . Указать строителям только зону установки недостаточно, поскольку работники не учтут деталей. Мало даже прорезать отверстие требуемого диаметра или нишу достаточного для размещения светильника объема. – Ведь может понадобиться установка ещё и трансформатора. Тщательного продумывания требует и монтаж светодиодной подсветки. Да, саму LED-ленту планируется пустить поверху, например, мебели. Но важно предусмотреть точку подключения к электросети, спрятать её от глаз находящихся в помещении людей.

Действенный совет здесь один – купите планируемые к установке светильники до начала ремонта. В ином случае велика вероятность повторных закупок моделей, которые «не подошли по месту». При правильном подходе хозяева сами понимают, какие нужны габариты отверстий, ниш, крепления. Поэтому строители получают четкие указания, при необходимости встроенный светильник показывают работникам перед определенным этапом работ. А после завершения практически проверяют достаточность объема ниш.

Также не забывайте, что правильный светодизайн – это соблюдение санитарных и эргономических норм. В их число входит правило – нижняя точка люстры отстоит от пола не менее чем на 210 см. Собственная высотка традиционных подвешиваемых на крюк рожковых люстр – 50 см и более, но мало учесть только этот параметр. При расчете искомых 210 см прибавьте ещё «рост» монтажной чашечки и цепочки, а это не меньше 15 см.

К списку статей