Добавить в корзинуПозвонить
Найти в Дзене
Дачный СозонТ

Приборы отопления в тамбурах. Нормы и правила.

Пришел вопрос. Читал вашу статью с разбором ошибок и не понял ваше замечание, насчёт расположения приборов отопления во втором тамбуре. Проектировщик заложил их в лифтовой холл, тем самым перекрыл теплопотери. Зачем тогда располагать в тамбуре? Плюс у нас в СП запрещается установка отопительных приборов и прокладка труб через тамбур, пункт на память не вспомню. Может у него в ХОВс прописана

Пришел вопрос. Читал вашу статью с разбором ошибок и не понял ваше замечание, насчёт расположения приборов отопления во втором тамбуре. Проектировщик заложил их в лифтовой холл, тем самым перекрыл теплопотери. Зачем тогда располагать в тамбуре? Плюс у нас в СП запрещается установка отопительных приборов и прокладка труб через тамбур, пункт на память не вспомню. Может у него в ХОВс прописана тепловая завеса, что тут не отображена? Тогда вполне можно расположить в холле прибор. Второй момент, если мы располагаем данный прибор во втором тамбуре, то в обратку температура будет весьма с пониженными показателями уходить, а данный прибор явно не отдельной веткой от ИТП идёт...скорее всего на МОПах этот прибор весит и если мы имеем данное помещение, плюс ЛК будет остывание теплоносителя. Да и вообще....если делать расчет, то теплопотери дикие будут, Тогда прибор не влезет, если только не в 2 ряда располагать. Просто не могу вспомнить, чтобы ещё где-то видел решение с расположением прибора во втором тамбуре.

Либо разбивать на два. Один ставить в тамбур, второй в лифтовой холл

Ответ:

Начинаем разбираться, немного не ясна такая формулировка «Просто не могу вспомнить, чтобы ещё где-то видел решение с расположением прибора во втором тамбуре».

Т.е. если что-то, кто-то не видел, то значит это неверное решение??? Интересная оценка проверки правильности - прям «улыбает» меня. Ну да ладно.

Может, товарищ всю жизнь делал не так как надо, а его зацепило, что увидел знакомые решения. Особенно перл «про дикие потери» тоже удивил. Явно человек никогда не считал теплопотери, и не знает, что есть надбавки на входную дверь.

Все считается, со временем Староверова расчет этот не особо изменился.

Это, так сказать, лирическое отступление, просто такие «спецы» пишут много и часто. Ну и еще - завес, нет проекте этом.

Теперь по делу. Сначала нормы.

СП 118.13330.2012 Общественные здания и сооружения. Актуализированная редакция СНиП 31-06-2009 (с Изменениями N 1-4)

3.17 тамбур: Проходное помещение между дверьми для защиты от воздействий неблагоприятных условий внешней среды.

В ранней редакции было так:

Тамбур - проходное пространство между дверями, служащее для защиты от проникания холодного воздуха , дыма и запахов при входе в здание, лестничную клетку или другие помещения.

Теперь про воздушно тепловые завесы

7.14 Воздушные и воздушно-тепловые завесы следует предусматривать в следующих случаях:

у постоянно открытых проемов в наружных стенах помещений, а также у ворот и проемов в наружных стенах, не имеющих тамбуров и открывающихся более пяти раз или не менее чем на 40 мин в смену, в районах с расчетной температурой наружного воздуха минус 15°С и ниже (параметры Б);

у наружных дверей вестибюлей общественных зданий - в зависимости от расчетной температуры наружного воздуха (параметры БЮ) и количества людей, проходящих через двери в течение 1 ч: от минус 15°С до минус 25°С - 400 человек и более; от минус 26°С до минус 40°С - 250 человек и более; ниже минус 40°С - 100 человек и более;

у ворот, дверей и проемов помещений с кондиционированием по заданию на проектирование.

Теплоту, подаваемую воздушными завесами периодического действия, не следует учитывать в воздушном и тепловом балансах здания.

Итак, задача тамбура - не пропускать напрямую холодный воздух внутрь. Причем правильный тамбур, это когда открыл входную дверь, проходишь и эта дверь должна закрыться и открываешь следующую. А не так, как делают для отмазки, всякие магазинщики – когда расстояние между дверями такое, что человек открыл входную дверь, и сразу перед ним вторая дверь. В итоге, холод проникает через сразу две открытые двери.

Сейчас у многих в голове следующая мысль,

- А если кто-то забудет закрыть дверь, когда сломается доводчик, и при этом по роковой случайности вдруг остановят систему отопления на часок-другой, то трубы могут перемерзнуть.

Ну, тогда по здравому смыслу - может перемерзнуть, даже в ЛК это случается при открытых дверях. А если вода циркулирует, то прибор отопления очень сложно разморозить. Когда жили в общежитии, висел регистр из труб в ЛК у лифта, где дверь постоянно не закрывали и, работая в таких экстремальных условиях ничего не замерзало.

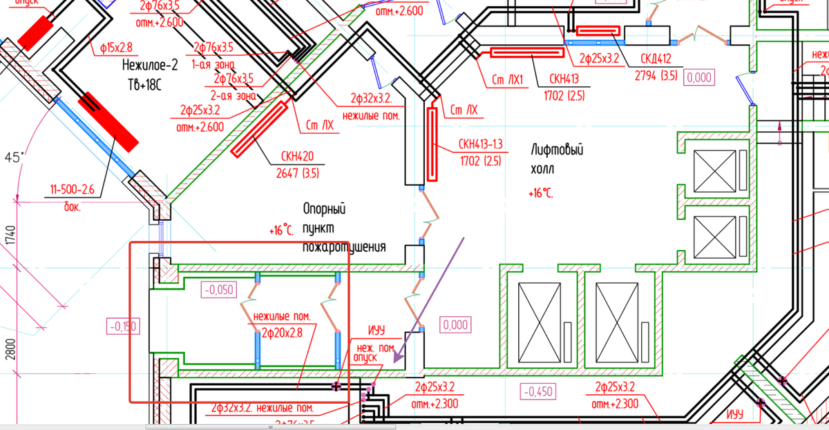
А теперь конкретно переходим в тому проекту, где возникли вопросы.

Внимательно смотрим, тамбуров 3,

первые два утеплены – значит они холодные (есть изоляция) а третий без изоляции.

СП 60.13330.2016

6.4.4 Отопительные приборы следует размещать под световыми проемами в местах, доступных для осмотра, ремонта и очистки.

Отопительные приборы в производственных помещениях с постоянными рабочими местами, расположенными на расстоянии 2 м или менее от окон, в районах с расчетной температурой наружного воздуха в холодный период года минус 15°С и ниже (параметры Б) следует размещать под окнами.

6.4.5 Отопительные приборы следует размещать на лестничных клетках, разделенных на отсеки, - в нижней части каждого отсека.

Отопительные приборы не следует размещать: а) в отсеках тамбуров, имеющих наружные двери;

Перечитываем внимательно "в отсеках тамбуров, имеющих наружные двери".

Т.е. все логично, если открыл дверь уличную, и тут - бах, стоит радиатор, это конечно неправильно, и противоречит НТД.

Далее автор сокрушается, что не видывал установку радиаторов в тамбурах. Пожалуйста, вот проекты, прошедшие экспертизы, и данные объекты сданы в эксплуатацию.

-2

-3

Хочу напомнить, что территориально -это Западная Сибирь Тюменская область, т.е. климат соответственный.

Так что проектируйте теплые тамбуры. Только двойные, тройные тамбуры. В первом отсеке с наружной дверью отопительный прибор ставить нельзя, а размещайте во втором отсеке или как в проекте в третьем. Кстати, строители должны показать, где будет холодный тамбур, а где нет.

Т.е. все по чертежу видно, - первые два тамбуры холодные (они утеплены), а в третий, необходимо установить нагревательные приборы.

-4

Задача системы отопления - бороться с холодом на самых подступах, поэтому приборы отопления устанавливают под окнами, на стенах, ограждающих от наружного климата и в тамбурах, согласно требований п. 6.4.5 СП 60.

А в случае, как сделано в проекте

-5

получили лишнее холодное помещение (тамбур), холодный воздух будет протекать по всему помещению.

А это, при определённых условиях и дискомфорт, и возможное получение конденсата и далее по тексту. Да и в высотках, тянет через входные двери - очень хорошо.

Кто хочет поспорить, то для начала, перенесите (хотя бы мысленно) нагревательные приборы из-под окон - на другие стены и подальше от наружных стен и подождите морозов.

Спасибо за внимание.

***

Лучшee спасибо - это лайк и репост!

Группа по ТГВ тут - вступайте в ряды мыслящих ИНЖЕНЕРОВ!