Добавить в корзинуПозвонить
Найти в Дзене

Проект оригинального дома К-108, 101м2, 2 спальни

Проект дома К-108, 101м2 , предназначен для постоянного проживания семьи из 2-3-ех человек. Это - очень интересный и оригинальный проект коттеджа, аналог которого вряд ли можно встретить среди наших загородных домов.
Это - узкий в плане, двухэтажный дом с односкатной крышей. Несмотря на свои скромные в плане размеры, площадь загородного дома превышает сто квадратных метров.

Проект дома К-108, 101м2 , предназначен для постоянного проживания семьи из 2-3-ех человек. Это - очень интересный и оригинальный проект коттеджа, аналог которого вряд ли можно встретить среди наших загородных домов.

Проект дома К-108
Проект дома К-108

Подписывайтесь на наш канал Яндекс ДЗЕН , прежде, чем читать дальше. У нас – только уникальные авторские проекты домов.

Это - узкий в плане, двухэтажный дом с односкатной крышей. Несмотря на свои скромные в плане размеры, площадь загородного дома превышает сто квадратных метров, чего вполне достаточно для комфортного проживания семьи из двух-трех человек.

Дом стоит на монолитной железобетонной плите, к тому еще и приподнят над окружающим пространством на высокой террасе. На фасадах обращают на себя внимание угловые панорамные окна.

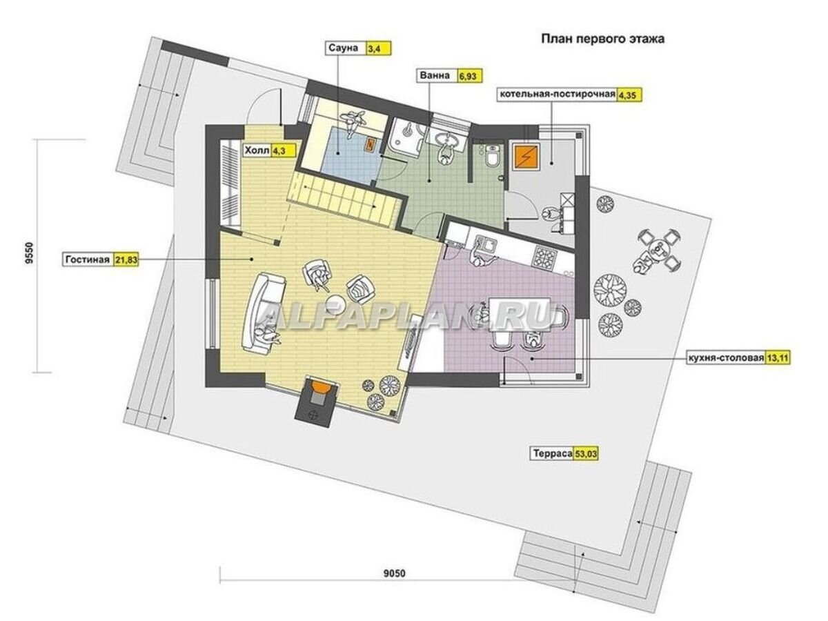
Пройдя через входную дверь, посетитель попадает в небольшой холл, а потом в просторную двухсветную гостиную, из которой двери ведут в ванную комнату. Из ванной комнаты можно попасть в сауну с левой ее стороны или в котельную-постирочную с правой стороны.

Гостиная и котельная граничат с кухней-столовой, которая имеет свой выход на террасу площадью более 53-х квадратных метров. Все помещения первого этажа имеют неправильную форму, кроме сауны.

Большую часть площади второго этажа занимает второй свет. Также здесь находятся большая кладовая, ванная комната, совмещенная с санузлом; две большие спальни.

Планировка 1-го этажа дома К-108
Планировка 1-го этажа дома К-108
Планировка 2-го этажа дома К-108
Планировка 2-го этажа дома К-108
Проект дома К-108
Проект дома К-108

Строительство дома под ключ может быть выполнено в любом регионе России. Готовые проекты домов требуют ПРИВЯЗКИ к участку строительства .

Проект дома цена: архитектурно-строительная документация (АС): 31600руб

Посмотреть подробней проект дома и заказать его можно по ссылке: проект дома К-108

«ОДИН-в-ОДИН» - более 200 проектов с фото реализованных строительством домов под ключ по проектам Альфаплан.

«Фото построенных домов » – более 450 фотогалерей строительства домов по нашим проектам.

Поделитесь мнением о проекте дома, и расскажите о нем друзьям. Стройте дома по проектам ® Альфаплан!

Проект разработан архитектурным бюро ® «Альфаплан». У нас – только уникальные авторские проекты домов. Архитектурный проект дома является охраняемым объектом авторского права. Воспроизведение визуализаций проекта и/или его частей разрешается с обязательным указанием имени автора и активной гиперссылки на источник.

#загородный дом #планировка дома #строительство домов

#проект дома цена #проект дома ключ