Найти в Дзене
Онлайн ППР

Устройство системы противопожарного водоснабжения

Команда onlineppr.ru разработала ППР по устройству системы противопожарного водоснабжения на объекте "Цех по производству резиновых изделий".
Монтаж трубопровода противопожарного водоснабжения
При монтаже консолей для прокладки трубопроводов соблюдаются следующие требования :
узлы крепления труб должны устанавливаться с шагом между узлами крепления до 6 м ;
Оглавление

Команда onlineppr.ru разработала ППР по устройству системы противопожарного водоснабжения на объекте "Цех по производству резиновых изделий".

Монтаж трубопровода противопожарного водоснабжения

При монтаже консолей для прокладки трубопроводов соблюдаются следующие требования :

узлы крепления труб должны устанавливаться с шагом между узлами крепления до 6 м ;

стояки (отводы) на распределительных трубопроводах длиной более 1 м должны крепиться дополнительными держателями. Расстояние от держателя до оросителя на стояке (отводе) должно составлять не менее 0,15 м ;

расстояние от держателя до последнего оросителя на распределительном трубопроводе , для труб с диаметром условного прохода более 25 мм должно составлять 1,2 м.

Монтаж пожарного шкафа

Работы выполняют в следующей последовательности:

1. выполняют разметку положения шкафа согласно требованиям рабочей документации;

2. проводят внешний осмотр шкафа. Наружная поверхность изделия не должна иметь вмятин, должна быть окрашена равномерно;

3. достают из упаковки ключи и стекло для кармана под запасной ключ. Поместить запасной ключ в карман и установить в карман стекло;

4. закрепляют шкаф к стене, используя крепежные отверстия в задней стенке шкафа:

  • центры мест необходимого сверления разметить строительным маркером или произвести сверление небольшого отверстия перфоратором;
  • устройство отверстий производить перфоратором Ø6 мм перпендикулярно плоскости несущего основания, метод сверления ударно-вращательный;
  • очистить отверстие от пыли и мусора сжатым воздухом. Продуть отверстие 2 раза, начиная с конца отверстия по всей длине, пока выходящий воздух не будет содержать пыль;
  • одному монтажнику установить скобу в проектное положение, и придерживать пока второй монтажник установит анкера, пропустив их через отверстия в монтажной плате скобы, и закрепляет с помощью молотка;
  • выполнить контроль установки анкера;
  • выполнить затяжку анкера;

5. монтаж пожарного крана проводят с соблюдением следующих требований:

  • удобство присоединения рукава и исключение его резкого перегиба при прокладывании в любую сторону;
  • удобство охвата и вращения рукой маховика;
  • беспрепятственное развертывание рукавной линии.
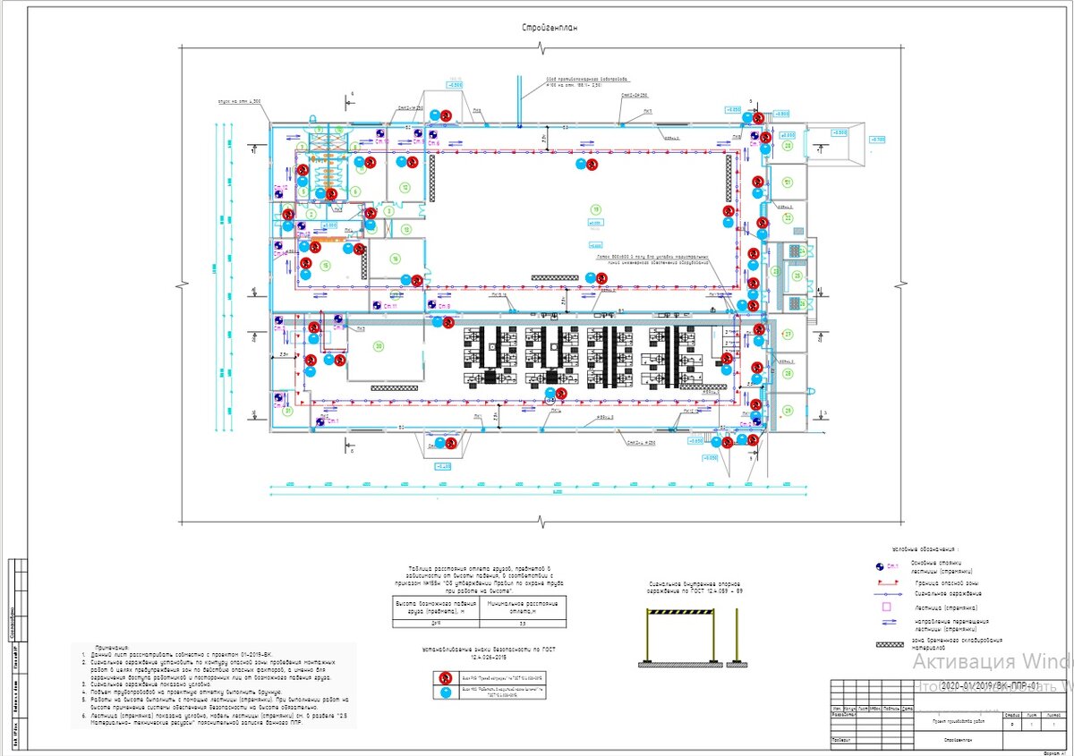
Стройгенплан
Стройгенплан

Команда onlineppr.ru разрабатывает проекты производства работ и технологические карты любой сложности.

Для заказа обращаться на почту yd1@onlineppr.ru или звонить по номеру 8 800 511-75-77.