Фасад дома выполнен из красного кирпича, поэтому основополагающей стилистикой был выбран лофт, разбавленный светлыми фоновыми оттенками и довольно яркими (но не утомляющими) вкраплениями цветов.
Фасад дома выполнен из красного кирпича, поэтому основополагающей стилистикой был выбран лофт, разбавленный светлыми фоновыми оттенками и довольно яркими (но не утомляющими) вкраплениями цветов.
...Читать далее
Фасад дома выполнен из красного кирпича, поэтому основополагающей стилистикой был выбран лофт, разбавленный светлыми фоновыми оттенками и довольно яркими (но не утомляющими) вкраплениями цветов.
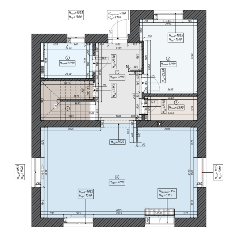
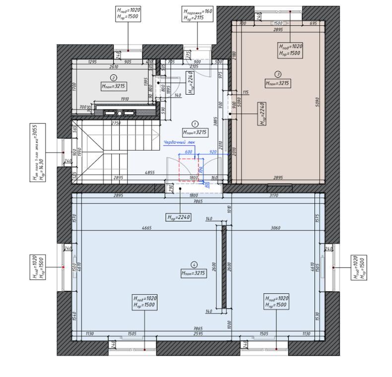
План первого этажа. Схема перепланировки дома.
Входная зона считается мокрой, поэтому мы отделили часть прихожей октагональной плиткой серого цвета.
В проекте много дерева, так как оно добавляет уюта интерьеру. Обработано оно грубо (столешница с рваными краями или инженерная доска на полу с сучками и "активной фактурой"), чтобы не отходить от выбранного направления в стилистике.
Угловая кухня представляет собой полное отражение лофт-стилистики: кирпичная стена вместо скинаои, металлические элементы в декоре и мебели, много натурального дерева.
Центром спальни является кровать поистине королевских размеров - 2490х2370х380. Она, как и другая мягкая мебель в проекте, подбиралась с учётом роста заказчика и пожелания максимального комфорта ☝
Необычная форма спальни позволила внедрить несколько интересных решений, одним из которых является гардеробная система открытого типа, скрытая за перегородкой. Она выступает ещё и элементом разделения помещения на зону гардероба и зону сна.
Настоящей фишкой проекта являются цветные стеклянные шторки для душа. Они не только задают настроение, но и исключают тривиальное представление об этом предмете интерьера. Такой домашний арт-объект дополнили яркой раковиной 👌
В доме предусмотрена гостевая комната, где могут остановиться нежданные родственники 😄
Всё те же цветные шторки, на этот раз в гостевой душевой 🚿
Многофункциональный шкаф совмещает в себе и функцию хранения, и функцию «кейса», в котором уютно расположилась кровать с мягкой панелью в качестве изголовья. На стене красуется современная роспись с видом на горный пейзаж.
В доме нашлось место и для отдельной постирочной комнаты, где расположена стиральная машина со столешницей и раковиной, хозяйственный шкаф, гладильная доска и даже полотенцесушитель.