Найти в Дзене
СЕКРЕТЫ КУХНИ

Как обустроить хрущевскую кухню 5,8 кв.м с бюджетом до 100 тысяч? Проект с подборкой мебели и техники

Решила сделать на моем канале рубрику об обустройстве маленьких кухонь до 100 000 рублей (для таких постов ввожу отдельный хештег #cекретыКухни_ДешевоСердито , по которому вы сможете находить идеи бюджетного обустройства с подборкой техники, мебели, указанием брендов и стоимости.
Сегодня покажу идею обустройства кухни площадью 5,2 кв.м: 2,57 м х 2,24 м.
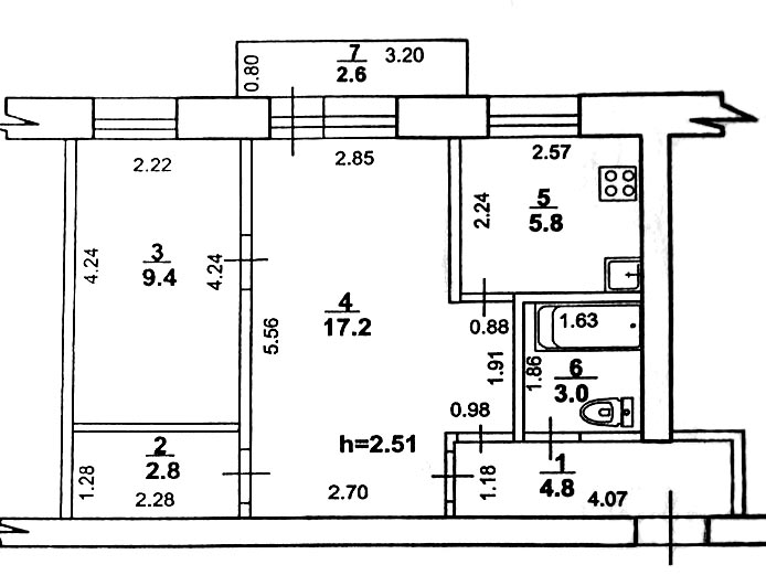
За основу взята реальная хрущевская кухня
Оглавление

Решила сделать на моем канале рубрику об обустройстве маленьких кухонь до 100 000 рублей (для таких постов ввожу отдельный хештег #cекретыКухни_ДешевоСердито , по которому вы сможете находить идеи бюджетного обустройства с подборкой техники, мебели, указанием брендов и стоимости.

Сегодня покажу идею обустройства кухни площадью 5,2 кв.м: 2,57 м х 2,24 м.

За основу взята реальная хрущевская кухня (смотрите ее план ниже).

💰 Бюджет на покупку гарнитура и техники - до 100 тысяч рублей.

План двухкомнатной хрущевки
План двухкомнатной хрущевки

Такая кухня рассчитана на 2-3 человек. Если нужно добавить третье посадочное место, то стол необходимо отодвинуть от стены или поставить круглый стол.

-2

Для дизайна была выбрана преимущественно светлая палитра оттенков с черными акцентами. Роль акцентов выполняет покрашенная в черный батарея, техника под темную нержавейку, черный рейлинг в рабочей зоне.

-3
-4
-5

🔸 Стены - декоративная штукатурка + покраска.

Делала так в своей квартире студии (отдельный пост о моей кухне здесь 👉 тык). Выходит очень дешево и красиво. И практично для кухни.

🔸 Пол - светлый, нейтральный по дизайну керамогранит.

🔸 Фартук - плитка-мозаика.

🔸 Потолок - натяжной.

-6

От штор нужно отказаться, если в дневное время нет яркого солнца, а вечером в окна не заглядывают любопытные прохожие. Если не привыкли без штор, то добавьте легких белых хлопковых занавесок, римские или белые рулонные шторы.

Здесь писала о том, как можно красиво оформить окно без штор на кухне 👉 тык.

Вход в кухню - раздвижная дверь или свободный проход без двери (если отказаться от газа и перейти на электроплиту). Распашная дверь в данном случае - вариант неудачный: займет место и сидеть за столом будут неудобно.

-7
-8

Планировка

Выбирала между угловой и прямой планировкой. Угловая показалась мне очень громоздкой для такой площади.

❗ Не имеет смысла делать угловой гарнитур, если по одной стене влезают мойка и плита, и остается хотя бы минимально допустимый отрезок для рабочей поверхности.

Угловой гарнитур не добавит функциональности, а только образует мёртвые зоны, которые не будут никак полезно задействованы. То есть попусту потеряется место. С прямым гарнитуром в кухне больше места в проходах для свободного передвижения.

Но (!), если длины стены не хватает для установки всего необходимого, то Г-образный гарнитур - идеальное и единственно возможное решение.
-9

В данном случае все влезло в один ряд, кроме холодильника. Если бы требовалась большая обеденная зона, то пришлось бы холодильник убирать в коридор. Или делать перепланировку: переносить вход в кухню из коридора в комнату, а из бывшего коридора делать нишу для холодильника. Но вариант с перепланировкой затратный не только с точки зрения времени и усилий, но и с точки зрения финансов. Поэтому я его сразу отмела.

-10

Мебель и техника

🔸 Гарнитур Леруа Мерлен серии "Ньюпорт топо" с фасадами из МДФ красивого серо-бежевого оттенка. 1,83 погонных метра.

Верхние шкафы высотой 76,8 см.

В реальном интерьере такой гарнитур выглядит так 👇

Кухня "Ньюпорт топо"  в реальном интерьере
Кухня "Ньюпорт топо" в реальном интерьере

🔸 Столешница "Вайт" 240x60 см.

🔸 Мойка - нержавеющая сталь, Смеситель - хромированный.

🔸 Дизайн техники - с хромированными элементами и под нержавеющую сталь.

-12

Список покупок с ценами (гарнитур + техника)

-13
✔ Стоимость кухонных шкафов - 37 308 р.
✔ Стоимость техники (холодильник, духовой шкаф, полновстраиваемая вытяжка, газовая варочная поверхность на 2 конфорки) - 48 378 р.

СВЧ и смеситель не вошли в этот список. Для СВЧ заготовлено место в кухонном гарнитуре. Средняя стоимость бюджетной микроволновой печи - 3-5 тысяч рублей. Средняя стоимость хорошего смесителя - 2,5-3 тысяч рублей. К 91 451 р. прибавьте стоимость СВЧ и стоимость смесителя.

✔ Фурнитура - 3 436 р.

Что НЕ включено в бюджет?

Я не включала в бюджет отделочные материалы и стоимость обеденной зоны.

🔸 Материалы для отделки

В зависимости от исходного состояния помещения, их стоимость в каждом конкретном случае может очень сильно отличаться. Кому-то и в 10 тысяч уложится, а кому-то потребуется сумма больше, чтобы выровнять пол, стены, поменять окно и т.д. Поэтому подборки материалов я делать не могу, это нецелесообразно.

Керамогранит для пола и плитка на фартук из данного проекта:

-14
-15

🔸 Обеденная зона

Подобные стулья и стол недорого можно купить в ИКЕА, Хофф, Столплитхоум и т.п

Подборка кухонных столов ИКЕА
Подборка кухонных столов ИКЕА
 Подборка кухонных стульев ИКЕА
Подборка кухонных стульев ИКЕА
❗ Кто думает, что я делаю рекламу Леруа и ИКЕА? Добро пожаловать в этот пост 👉 тык. Там написала, почему это НЕ реклама и почему я часто пишу именно об этих брендах 😉

***

Как вам такой вариант обустройства маленькой кухни? Что бы вы изменили или добавили? Поделитесь вашим мнением к комментариях 👇

Спасибо, что заглянули на мой канал. Не забудьте нажать - 👍Подписывайтесь, чтобы не пропустить новые, интересные публикации о дизайне кухни 🤗