Добавить в корзинуПозвонить
Найти в Дзене
Планировка

Типовой проект кирпичного дома

Проект небольшого по сегодняшним меркам типового кирпичного дома с мансардой. Пяти комнат вполне хватит на семью с детьми. Проект прост и лаконичен, а при сегодняшнем обилии строительных и отделочных материалов может быть вполне актуальным.
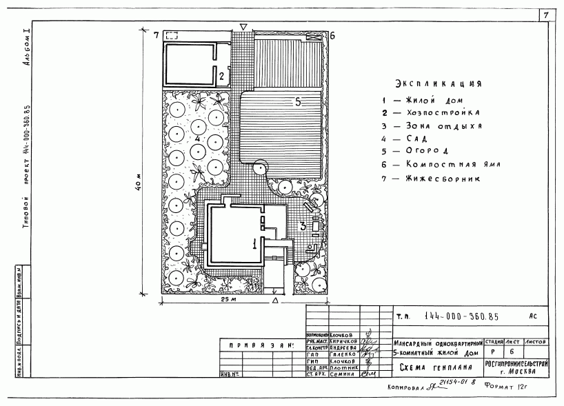
Размещение на участке
Фасады
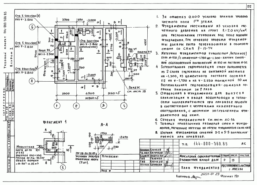
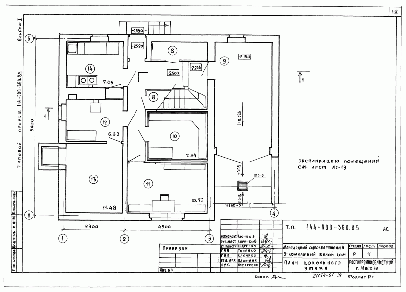
Габаритные размеры в плане 9,6 х 10,9м.

Проект небольшого по сегодняшним меркам типового кирпичного дома с мансардой. Пяти комнат вполне хватит на семью с детьми. Проект прост и лаконичен, а при сегодняшнем обилии строительных и отделочных материалов может быть вполне актуальным.

Размещение на участке
Размещение на участке
Фасады
Фасады

Габаритные размеры в плане 9,6 х 10,9м.

Цокольный этаж
Цокольный этаж
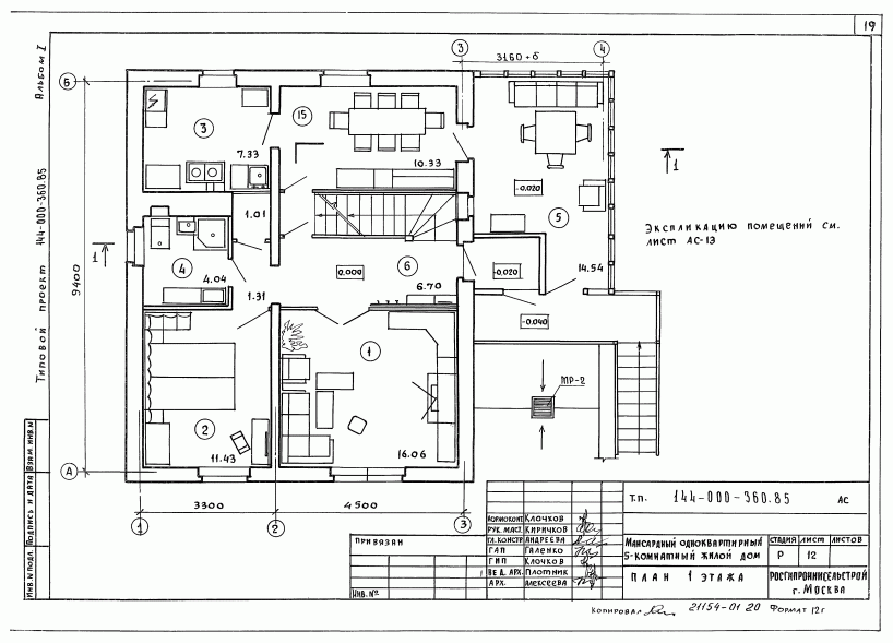
План первого этажа
План первого этажа
План мансарды
План мансарды

Несмотря на то, что проект был разработан для повторного применения аж в 1985 году, он интересен своей простотой и конструктивной логичностью. Конечно, далеко не всем необходим цокольный этаж, но такой дом будет вполне оправдан на ленточном фундаменте

-7
-8

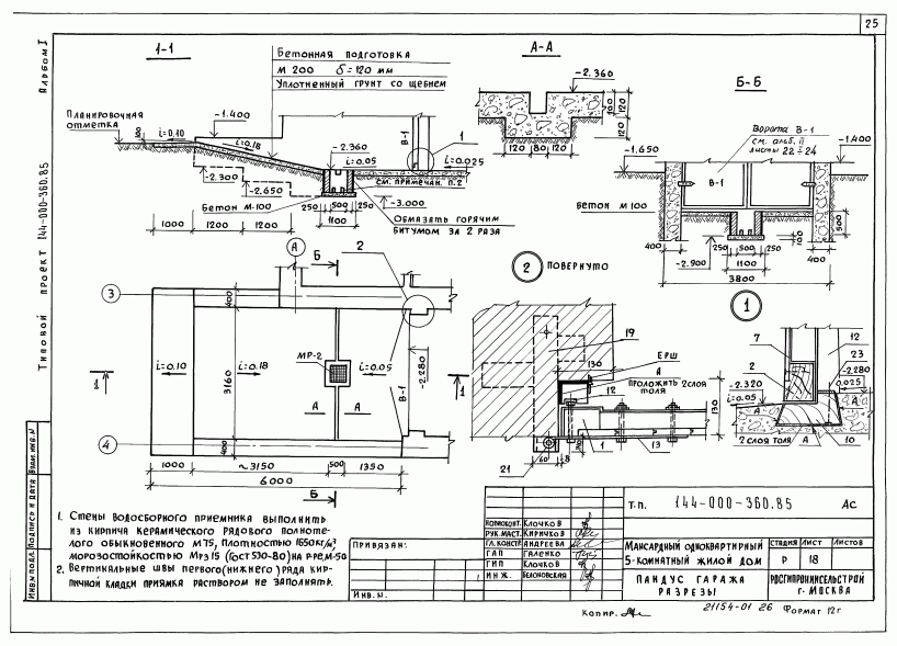
Узлы
Узлы
Детали
Детали

-11
-12
-13
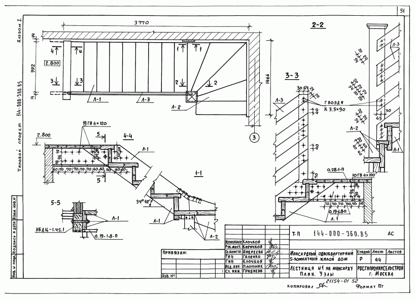
лестницы
лестницы

Деталировка конструкций межэтажной  лестницы
Деталировка конструкций межэтажной лестницы

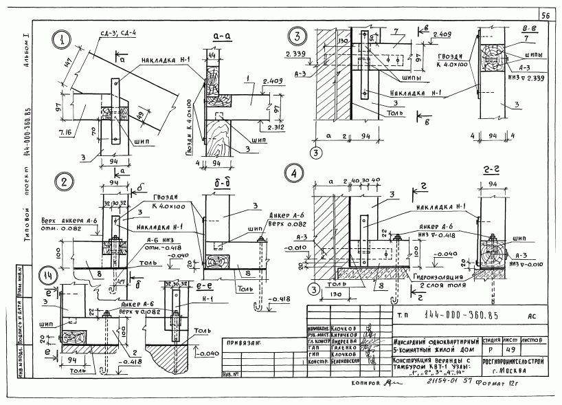
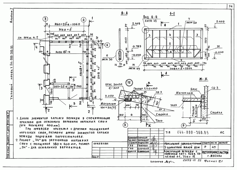
Конструкции веранды
Конструкции веранды
-17
-18
Узлы
Узлы
Узлы
Узлы
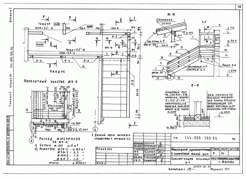
Детали крылец
Детали крылец
Детали крылец
Детали крылец

Полный комплект проекта содержит 71 лист.

Скачать его можно по ссылке: https://disk.yandex.ru/i/AfeVqjIg9Vy2TA

Понравилось - подписывайся на канал!

Вам могут быть так же интересны:

Проект одноэтажного дома 9 х 9м 1981г

Небольшой домик бруса. Типовой проект из СССР 1987г.

Типовой проект из СССР. Дом 6х6 м со стенами из кирпича

Где скачать проект дома бесплатно?

Типовой проект каркасного одноэтажного садового домика 1986г

Преимущества одноэтажных домов. Типовой проект из СССР.