Добавить в корзинуПозвонить
Найти в Дзене

Надумали делать ремонт или перепланировку? Не делайте этого пока не прочитаете эту статью, иначе ошибки неизбежны

Вы решили сделать ремонт. В новой квартире или старой. Всю квартиру целиком или одну комнату. Это не имеет значения. А важно то, что любой ремонт нужно начинать с перепланировки и расстановки мебели.
Даже если вы не собираетесь сносить стены и просто хотите сделать ремонт в одной комнате все равно нужна хотя бы Расстановка мебели.
А вот если вся квартира, да ещё хотите немного поменять

Вы решили сделать ремонт. В новой квартире или старой. Всю квартиру целиком или одну комнату. Это не имеет значения. А важно то, что любой ремонт нужно начинать с перепланировки и расстановки мебели.

Даже если вы не собираетесь сносить стены и просто хотите сделать ремонт в одной комнате все равно нужна хотя бы Расстановка мебели.

А вот если вся квартира, да ещё хотите немного поменять планировку, тут без чертежей не обойтись вовсе. Одно дело придумать все в голове, прийти к строителям и помахать руками, сказав эту стену сюда двигаем, эту туда. Здесь диван, здесь кухня. И совсем другое дело выстроить все это в масштабе.

Запланировав стены или даже без переноса стен вы должны чётко понимать как встанет мебель, какие проходы останутся, какую ещё дополнительную мебель можно поставить.

Расстановка мебели очень важна. Потому что электрик первым делом вас спросит как будет идти кухня, как выводить розетки под электроприборы. И тд. Сантехник вас спросит - как пойдут ванна, раковина, унитаз и где стиралка. И если вы скажете - пока не знаю, строители сделают на своё усмотрение, а это не всегда то, что вам надо.

Скажу больше - у строителей всегда непостижимая для меня логика. Особенно по ... Да по всему! Поэтому не доверяйтесь им в этом плане. Каждый должен заниматься своим делом. И если я уже 16 лет работаю с проектами, я вам сделаю идеальную перепланировку и/или расстановку мебели. Предложу интересные варианты, если помещение позволяет.

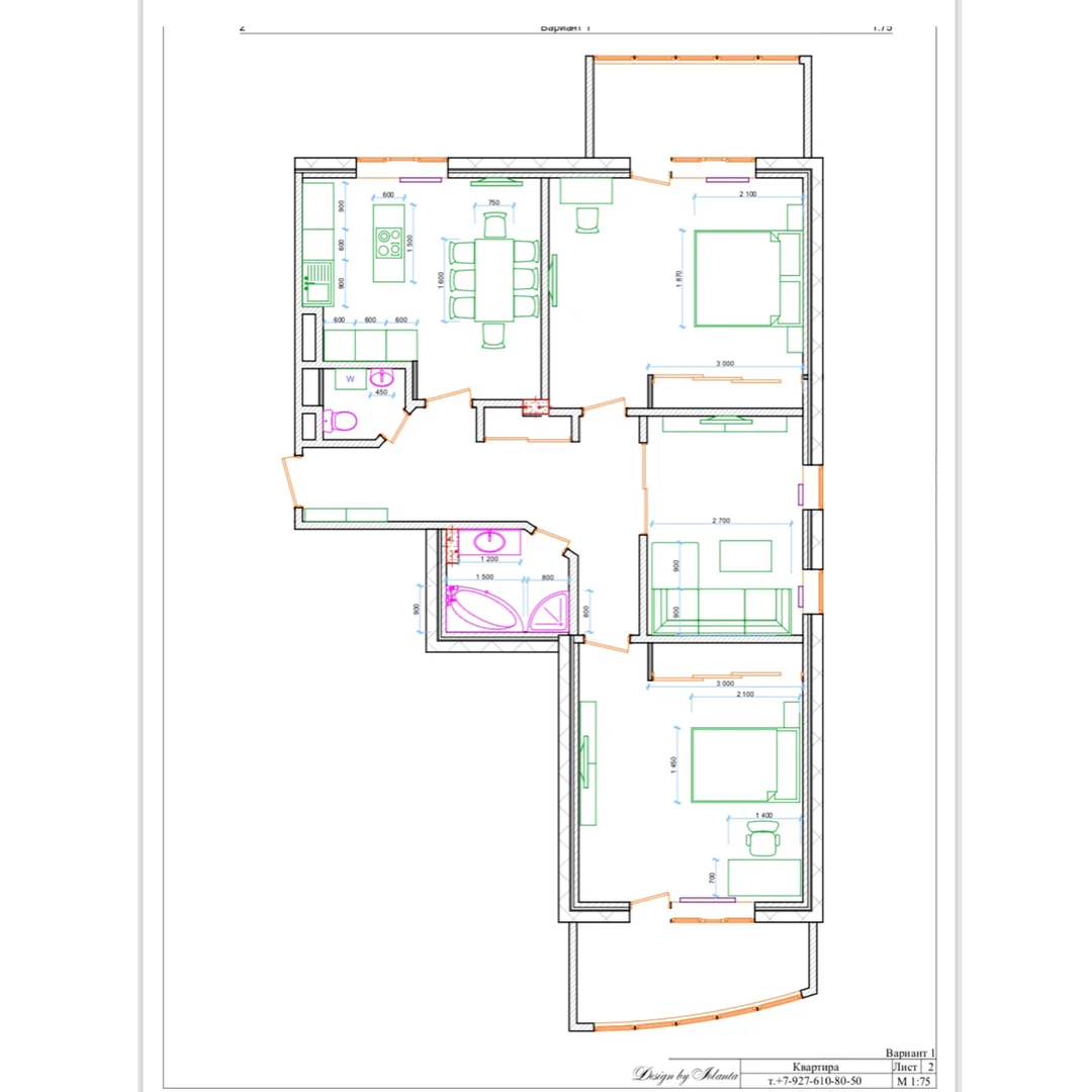
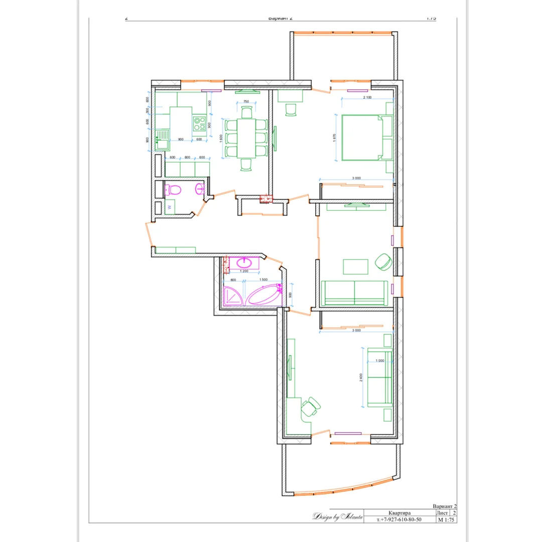
-2

На представленном проекте условием клиентов было не трогать стены. Поэтому пришлось работать с тем, что есть. Как можете обратить внимание - спальня осталась без изменений в обоих вариантах.

Если бы позволили переносить стены, конечно было бы больше вариантов. Услуга перепланировки/расстановки мебели идёт в комплекте.

Эта услуга платная. Стоимость: