Найти в Дзене

Проект дома «Затерянный рай» 517А, 260 м2, 4 (5) спален

Проект дома 517А «Затерянный рай» , 260м2, 4 (5) спален – просторный дом с оптимальными по площадям комнатами. Проект выполнен в стиле, близком к «Петровскому барокко».

Проект дома 517А «Затерянный рай» , 260м2, 4 (5) спален – просторный дом с оптимальными по площадям комнатами. Проект выполнен в стиле, близком к «Петровскому барокко». У проекта коттеджа есть ПРЯМОЙ (на изображениях), и зеркальный варианты.

Проект дома 517А «Затерянный рай»,  © Владимир Тарасов
Проект дома 517А «Затерянный рай», © Владимир Тарасов

Подписывайтесь на наш канал Яндекс ДЗЕН , прежде, чем читать дальше. У нас – только уникальные авторские проекты домов.

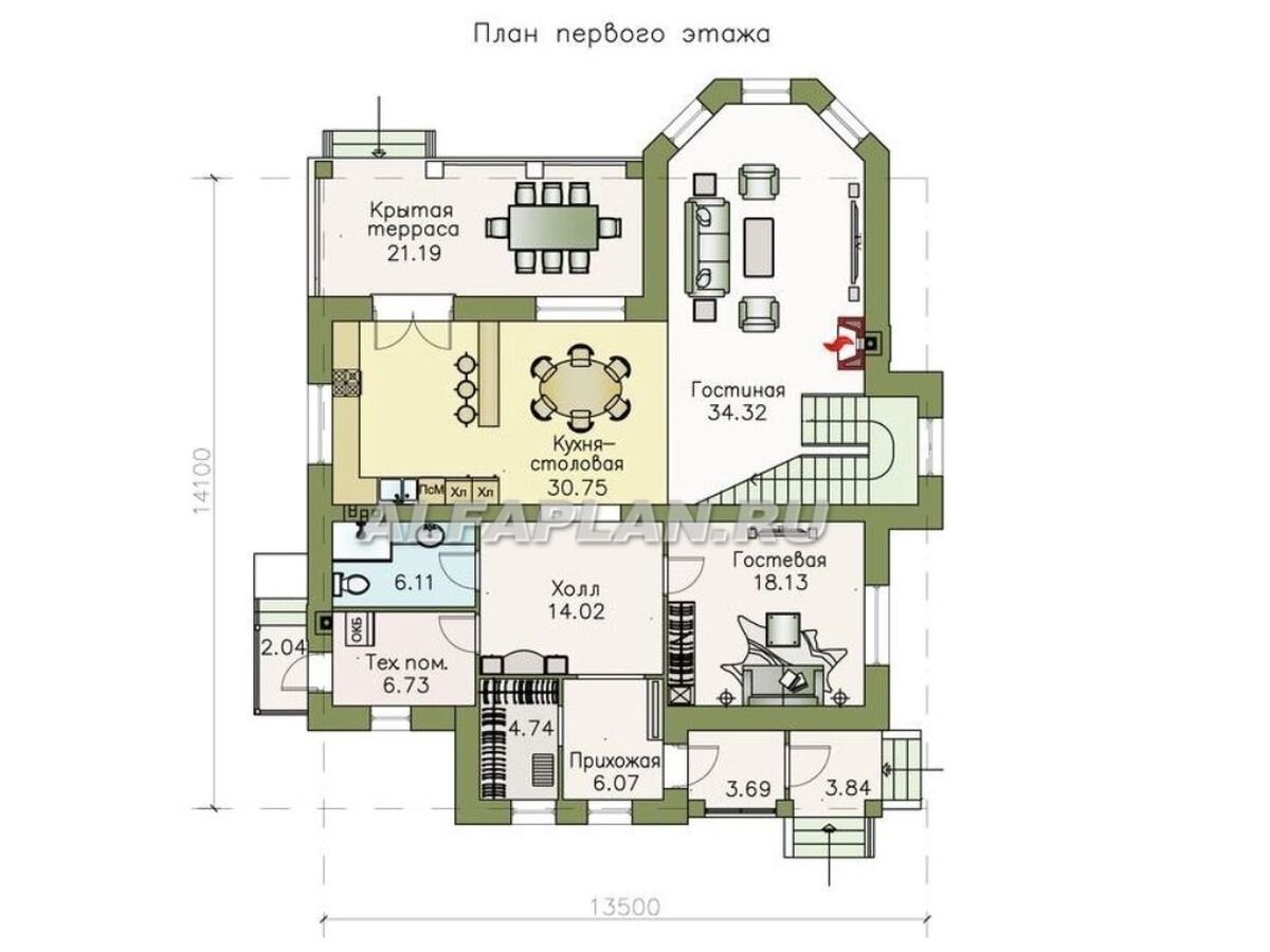
Планировка дома отличается наличием просторного холла в центре 1-го этажа. Из холла можно попасть в любую комнату на этаже. Гостиная и столовая – единое помещение, но визуально разделенное между собой поворотом стены и лестницей. Лестница – центр интерьера гостиной-столовой, в интерьере она должна быть выполнена красиво и гармонично с остальными интерьерными решениями.

По плану 1-го этажа предусмотрена также гостевая (кабинет).

Гостиная, столовая и кухня по плану дома – одна комната площадью. Терраса примыкает непосредственно к столовой-кухне. При желании, крытую террасу можно без проблем остеклить и расширить сезон ее использования.

По плану 2-го этажа – 4 спальни и просторная ванная комната.

Фасад коттеджа облицован кирпичами, и запоминается красивой аркой на 2-ом этаже. В отделке фасада применены декоративные накладные элементы.

Планировка дома 517А «Затерянный рай» 1 этаж, © Владимир Тарасов
Планировка дома 517А «Затерянный рай» 1 этаж, © Владимир Тарасов
Планировка дома 517А «Затерянный рай» 2 этаж, © Владимир Тарасов
Планировка дома 517А «Затерянный рай» 2 этаж, © Владимир Тарасов
Проект дома 517А «Затерянный рай», вид с дворового фасада, © Владимир Тарасов
Проект дома 517А «Затерянный рай», вид с дворового фасада, © Владимир Тарасов

Проект дома реализован на практике. Строительство дома под ключ может быть выполнено в любом регионе России. Готовые проекты домов требуют ПРИВЯЗКИ к участку строительства .

Проект дома цена: архитектурно-строительная документация (АС): 47600руб , инженерные разделы проекта (внутренние отопление, водопровод, канализация, электрооборудование ): 8700 руб

Посмотреть подробней проект дома и заказать его можно по ссылке: 517А «Затерянный рай»

Вам может быть интересен также проект: 517В «Затерянный рай», вариант с теплым гаражом на 2 автомобиля

Проект дома 517В «Затерянный рай»,  с гаражом на 2 авто, © Владимир Тарасов
Проект дома 517В «Затерянный рай», с гаражом на 2 авто, © Владимир Тарасов
Проект дома 517А «Затерянный рай»,  © Владимир Тарасов
Проект дома 517А «Затерянный рай», © Владимир Тарасов

"ОДИН-в-ОДИН" - более 200 проектов с фото реализованных строительством домов под ключ по проектам Альфаплан.

«Фото построенных домов » – более 450 фотогалерей строительства домов по нашим проектам.

Поделитесь мнением о проекте дома, и расскажите о нем друзьям. Стройте дома по проектам ® Альфаплан!

Проект разработан архитектурным бюро ® «Альфаплан». У нас – только уникальные авторские проекты домов. Архитектурный проект дома является охраняемым объектом авторского права. Воспроизведение визуализаций проекта и/или его частей разрешается с обязательным указанием имени автора и активной гиперссылки на источник.

#загородный дом #планировка дома #строительство домов #проект дома цена #дом под ключ