Найти в Дзене
Обзор товаров №1

Одноэтажный дом из газобетона с террасой и подвалом / Площадь до 150 кв м / Проект Z500 артикул Z67A

🍒 Ролик создан при поддержке "Profit Web Production" 👉 https://profitweb.ru
📌 Наши услуги:
■ Создание рекламных роликов
■ Съемка и монтаж видео
■ SEO оптимизация и продвижение видео на YouTube, Яндекс.Дзен и Яндекс.Эфир
■ Видеоролики для рекламы товаров и услуг в Интернете
📌 Наш YouTube-канал 👉 https://clck.ru/TX9KJ
Оглавление

Общая информация

Дом 2019 года постройки.
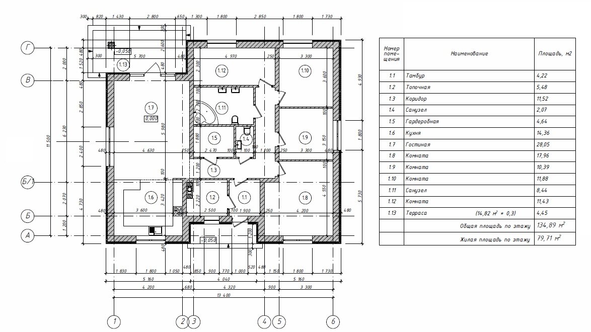
Общая площадь – 135 м²
Дом построен из газобетонных блоков Bonolit

Местоположение

Дом расположен на участке 9 соток, правильной прямоугольной формы. Участок находится в коттеджном поселке «Степаньковская слобода» – Это Московская область, Пушкинский район. Расстояние от дома до МКАД – 20 км по Ярославскому шоссе.

О поселке

В КП Степаньковская Слобода земельные участки для заселения с разрешением на Индивидуальное Жилищное Строительство. (ИЖС)
В поселке есть централизованные коммуникации: Водоснабжение, Газ, Канализация, Электричество.

Характеристики дома

Одноэтажный дом из газобетона с террасой и подвалом
Дом с четырьмя спальнями
По проекту архитектурного бюро Z500 (артикул проекта Z67 A)
Общая площадь дома – 135 м².
Жилая площадь – 80 м².

Фундамент

Сделана монолитная лента на глубину промерзания (1,5м) шириной 400мм. Для армирования фундамента применена арматура 8мм и 10мм.

Подвал

В доме был сделан подвал площадью 10 кв. метров. Вход в него предусмотрен из котельной. В подвал заведены под землей: силовой кабель с заземлением, интерне- провода. Также заложена труба, по которой будет поступать вода из скважины в дом.

Пол

В доме устроены полы по грунту. Пирог: слой песка, потом щебня и все это провибрировано виброплитой, а сверху залит бетонный черновой пол.

Стены

Внешние стены по периметру – газоблок с шириной 400мм (D400).
Внутренние несущие стены – газоблок с шириной 250мм (D500).
Перегородки – газоблок с шириной 150мм (D600).
Несущие стены дома были армированы арматурой 8мм каждый 4-й ряд кладки. В два прутка.

Перекрытия

В связи с тем, что дом одноэтажный, а холодный чердак планируется использоваться редко, как кладовая, были сделаны деревянные перекрытия. Потолок обшит с обоих сторон листами ОСБ, утеплен 200мм минеральной ватой. Листы утеплителя толщиной 100мм уложены в два слоя в шахматном порядке. Сделана паро- и гидроизоляция.

Крыша

Дом с четырехскатной крышей. Крыша из Металлочерепицы Grand Line с толщиной 0,5мм. Цвет: Мокрый асфальт, матовый.

Фасад

Отделан фасадной системой АМК под кирпич. (Это экологичный материал, в состав которого входит натуральная мраморная крошка.)

Цоколь

Отделан искусственным камнем White Hills

Окна

Дом полностью остеклен окнами с двойным стеклопакетом.

Дверь

Входная дверь с терморазрывом.

Скважина

Ну участке сделана скважина глубиной 12 метров.

Планировка одноэтажного дома / План