Найти в Дзене
GoodPlan

Дом с панорамным окном

Всем привет!
Представляем вам стильный снаружи и удобный внутри
проект дома М projekt
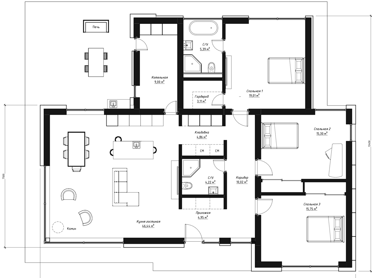
Дом общей площадью 138 м2
Оглавление

Всем привет!
Представляем вам стильный снаружи и удобный внутри
проект дома
М projekt

-2


Дом общей площадью 138 м2
В доме 3 спальные комнаты
Большая кухня гостиная
Веранда
Технически помещения - котельная, кладовая
2 Ванные комнаты

Шикарный вид дома

-3

Отличная веранда
для всей семьи

-4
-5
-6
-7

Посмотрите обзор дома
на нашем канале