Добавить в корзинуПозвонить
Найти в Дзене
Z500 Архитектурное бюро

Z266 Комфортный дом с оригинальным остеклением в гостиной и вторым светом

Отделка фасада реализована в классическом европейском стиле: стены двух оттенков (топлёное молоко и шоколад) гармонично продолжаются в тёмно–коричневой черепице двухскатной крыши, что наделяет дом особым изяществом.

Проект Z266 представляет комфортный дом с оригинальным остеклением в гостиной и вторым светом. Отделка фасада реализована в классическом европейском стиле: стены двух оттенков (топлёное молоко и шоколад) гармонично продолжаются в тёмно–коричневой черепице двухскатной крыши, что наделяет дом особым изяществом.

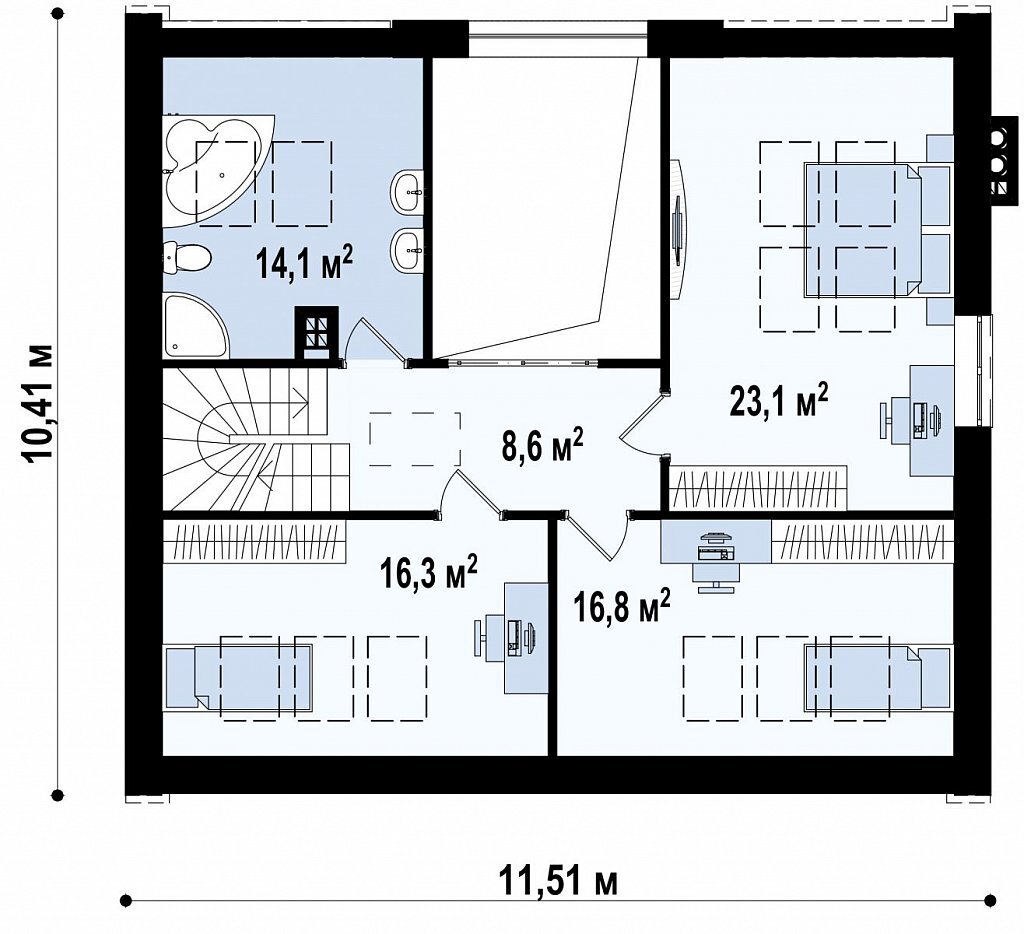
В дневной зоне, под которую полностью отдан первый этаж, находится гостиная, которая через открытую зону столовой переходит в частично открытую кухню. К ней примыкает кладовое помещение. Из кухни и гостиной предусмотрен выход на террасу. Над гостиной зоной спроектировано открытое пространство — этот решение добавляет комнате особенного колорита. Справа от прихожей находится ванная комната с душем, к которой примыкает ещё одна комната (она подходит для устройства гостевой спальни или кабинета). За гаражом находится подсобное помещение, из которого открывается выход в  сад. Ночная зона находится на мансарде. Здесь располагаются три большие спальни, для которых предусмотрена общая ванная.

Проект Z266 рассчитан на приверженцев традиций, которые заинтересованы в высоком уровне комфорта.

Понравился проект? Пишите комментарии.

  • Заказать проект можно  ЗДЕСЬ!
  • Все подробности о данном проекте Вы найдете  ЗДЕСЬ!

Посмотреть другие проекты вы можете на сайте.