Добавить в корзинуПозвонить
Найти в Дзене
Ева ++

Удобная кухня в хруще, задача!? работа над ошибками (часть 2)

Ну так вот, очень хотелось поскорее узнать цену на все это дело.
Проведя сравнительный анализ цен, мной были отброшены компании которые повышение цены оправдывали более качественной фунитурой, от чего общий ценник почему-то вырастал не на цену фурнитуры, а в геометрической прогрессии... Тут мне помогла математика 5 класс ( ах, как было бы здорово не думать о каждой сэкономленной тысяче, но как

Ну так вот, очень хотелось поскорее узнать цену на все это дело.

Проведя сравнительный анализ цен, мной были отброшены компании которые повышение цены оправдывали более качественной фунитурой, от чего общий ценник почему-то вырастал не на цену фурнитуры, а в геометрической прогрессии... Тут мне помогла математика 5 класс ( ах, как было бы здорово не думать о каждой сэкономленной тысяче, но как известно «Экономика должна быть экономной »)

Мной был выбран частный мастер Олег, по рекомендации коллеги.

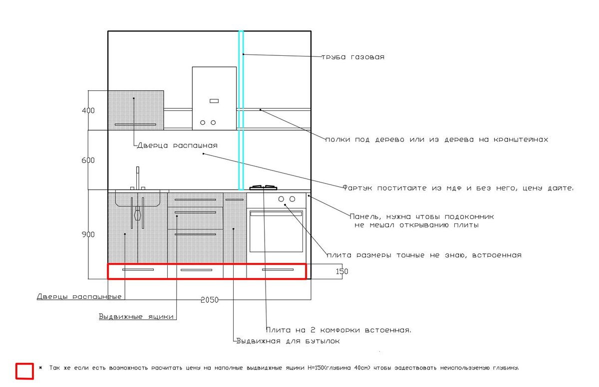
ТЗ
ТЗ

Так вот, рассмотрев мой эскиз, он мне сделал несколько профессиональных замечаний , что сразу (у меня точно, не знаю как у вас) подняло его в моих глазах как профессионала. Он отметил что "Бутылочница" хоть и расширяет функционал кухни, но используется часто не по назначению и как итог в ней набивается всякий мелкий хлам ( пакеты, бутылки с маслами, полотенца.)

Предложил оставить:

  • Распашной шкаф
  • 3 выдвижные полки
  • Добавить ящик по духовой шкаф.
Чертеж кухни после замечаний мастера
Чертеж кухни после замечаний мастера

я сразу озвучила что мне нужен самый бюджетный вариант фасадов который только есть... мы выбрали материалы, мне озвучили сумму (24 тысячи рублей!!!)

Изображение из открытых источников
Изображение из открытых источников

Всем уже надоевший "сканди" стиль, да простят меня эстеты, но мне этот стиль очень нравился, и нравится до сих пор.

Ну так вот мы договорились, я заплатила 70 % предоплату и стала ждать.

Продолжение и итог читайте в следующем посте: "Удобная кухня в хруще, задача!? Итог: ошибки без которых нельзя было обойтись (часть 3)"