Найти в Дзене
Строим Дом

бюджетный каркасный дом, площадью 82 м2

В этой статье публикую проект каркасного дома, популярного среди заказчиков.
Такой дом может использован как для отдыха, так и для постоянного проживания небольшой семьи. Представляю элементы проекта, а также фото строительства.
Фасады дома выполнены в стиле фахверк на русский манер.

бюджетный каркасный дом, площадью 82 м2

В этой статье публикую проект каркасного дома, популярного среди заказчиков.

Такой дом может использован как для отдыха, так и для постоянного проживания небольшой семьи. Представляю элементы проекта, а также фото строительства.

Фасады дома выполнены в стиле фахверк на русский манер.

-2

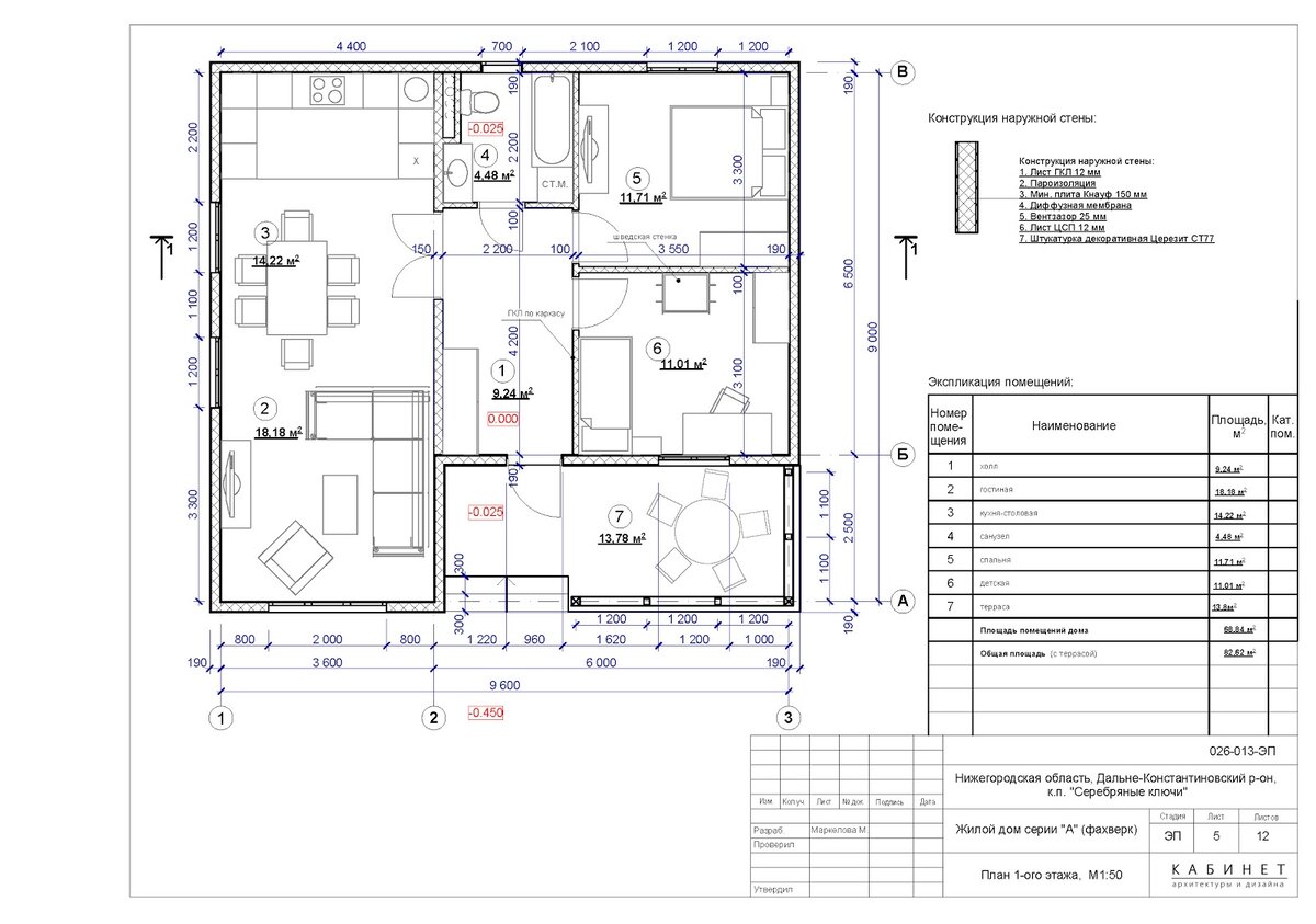
Планировка дома рассчитана на семью из 3-х человек. Просторная кухня - столовая позволяет выполнить зонирование, а веранда в летнее время может использована для чаепития. Площадь и планировка дома оптимальна для строительства с ограниченным бюджетом.

-3

Кровля двухскатная, металлочерепица.

-4
-5
-6
-7
-8

Этот проект был реализован моей организацией неоднократно.

-9

Фасады домов облицованы имитацией бруса 185/21мм, покрыты тремя слоями ПИНОТЕКС, первый - базовый, второй, третий - лессирующий с тонировкой.Фундамент - винтовые опоры 108/4/2000мм.

-10
-11
-12
-13

Утепление полов минплита КНАУФ с теплопроводностью 0,039 200мм. Полы шпунтованная доска 28мм.

-14

Утепление стен - 150мм.

-15

Вид прихожей от входной двери.

-16

Кухня - столовая.Внутренние стены обшиты имитацией бруса 135/16мм. Без покраски.

-17

Окна - двойное остекление.

Комплектация: скрытая проводка с подключением к внешней сети, водоснабжение - внутренняя разводка до внешнего периметра, с установкой сантехники, без подключения к сетям, канализация - автономная 3 бетонных кольца Ф - 1500мм, три контура вентиляции. Стоимость строительства 1 680 000 руб. Данные цифры применимы к Нижегородскому региону в текущих ценах 2020 года.

Проект выполнен архитектурной студией Демидовых https://archcabinet.ru/

Если заинтересовала публикация, подписывайтесь на мой канал.

Задавайте вопросы. Я ещё много знаю интересного. Обязательно отвечу всем.