Найти в Дзене
Танцующая под дождем

Создаем свой дизайн-проект - экономим на услугах дизайнера

В предыдущих статьях я начала рассказ про строительство каркасного дома. В этой теме я коснусь самых азов - с чего начать и как спланировать ваш дом, если не хочется потратить много денег на услуги профессионалов по дизайну.
Итак, в оригинале типового проекта, взятого за основу на сайте нашей строй-конторы, у меня перед глазами была схема - прямоугольник, разбитый на другие прямоугольники с

В предыдущих статьях я начала рассказ про строительство каркасного дома. В этой теме я коснусь самых азов - с чего начать и как спланировать ваш дом, если не хочется потратить много денег на услуги профессионалов по дизайну.

Итак, в оригинале типового проекта, взятого за основу на сайте нашей строй-конторы, у меня перед глазами была схема - прямоугольник, разбитый на другие прямоугольники с указанием размеров.

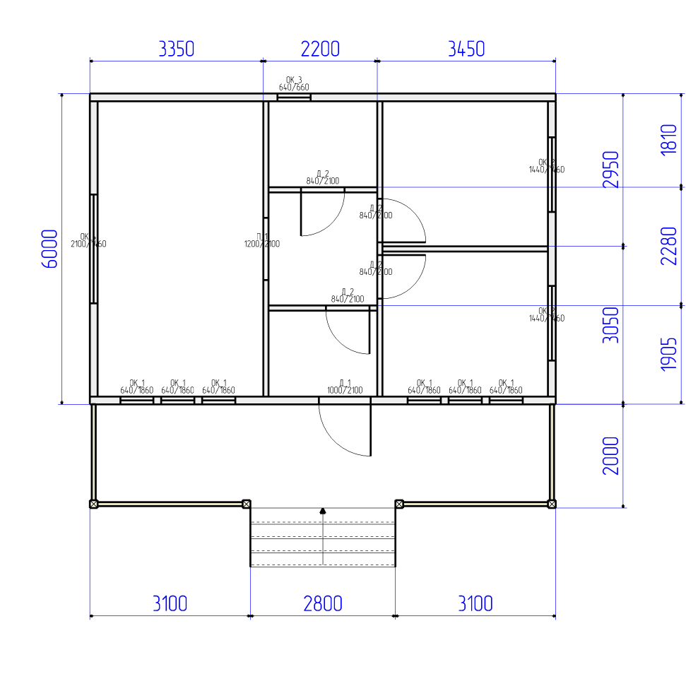
План нашего домика после зеркального отражения и "обрезки" кладовки
План нашего домика после зеркального отражения и "обрезки" кладовки

Для того, чтобы понять, насколько такой площади для наших целей хватит, нужно было иметь визуальное представление в 3D о том, как это все в итоге будет выглядеть. То есть, нужен был какой-то дизайн-редактор. И такую программу я благополучно нашла в интернете и даже скачивать ничего не надо было.

Сайт называется planner5d.

Просто открыть сайт, авторизоваться (можно через соцсети) и начать рисовать свой проект онлайн. Там все просто и интуитивно понятно. Большая часть контента платная, но если у вас не крупный дизайнерский проект (в таком случае лучше, наверное, нанять кого-то для составления дизайн-проекта интерьера, что недешево), то бесплатного контента хватит за глаза. У нас простой дом и нам платная часть не понадобилась. Зато полученный рендер нам действительно помог определиться с размером и расположением окон, прикинуть, где будет стоять мебель и, соответственно, где размещать электрику (это делается на этапе проектирования), а также оценить в целом, насколько проект подойдет под наши цели.

Работала я в нем с удовольствием. Подозреваю, что если бы дом был двухэтажным, большим и нестандартным, меня от проектирования интерьера было бы просто не оторвать.

Полученный рендер мы отправили представителю выбранной конторы - Деревянный мир, тот внес изменения в оригинальный проект и рассчитал стоимость, которая составила 1 миллион 275 тыс руб (за, повторюсь, 50 квадратов + крыльцо 18 м2).

Если честно, сумма для нас жутковатая, знакомые строили намного дешевле (правда, несколько лет назад), но что поделать. А ведь впереди еще ждет подключение коммуникаций, покраска дома (древмир насчитал нам за нее 165 тыс рублей, но мы решили покрасить позже), настил ламината, покупка сантехники и мебели. Считаешь и охаешь. Ах да, я совсем забыла. Еще в 360 т.р. нам обошелся забор по периметру участка (8 соток) в нашем коттеджном поселке. Ну, и сам участок в 1.2 миллиона.

Потом мы еще несколько раз меняли высоты окон от пола, расположение лестницы на крыльце, добавили окно 60х100 в кухонной части гостиной, которое решили использовать вместо вытяжки.

По высоте окна расположили - боковые на высоте 90 см от пола, фронтальные 50 см от пола, санузел 170 см от пола.

Вообще в частных домах не рекомендуется располагать окна выше 1 м от пола. Оптимальная высота 80-90 см. У нас 90. Я пока не знаю, как это будет выглядеть. Надеюсь, не слишком высоко.

Затем решали, где размещать розетки - тут воспользовались так называемым евро-стандартом (30 см от пола розетки и 100 см от пола выключатели). В наших старых домах в Москве этот стандарт советский и составляет примерно 165 см до выключателей. Посмотреть, как это все выглядит, опять же помогал виртуальный планировщик:

3D визуализация в он-лайн планировщике дома planner5d
3D визуализация в он-лайн планировщике дома planner5d

На кухне сделали розетки под холодильник и микроволновку (150 от пола) - у нас СВЧ будет стоять на холодильнике максимальной высотой 150 см.

Вроде все получилось логично. Хотя именно в этом моменте ожидали, что где-то ошибемся и пропустим розетку там, где она будет нужна. Что ж, поживем - увидим.

В общем, хороший 3D редактор - вещь незаменимая!

Лучше не пожалеть пары долларов и брать полный функционал - там будет больше цветов, текстур, предметов интерьера и возможностей для дизайна.