Добавить в корзинуПозвонить
Найти в Дзене
Z500 Архитектурное бюро

Z247 Практичный двухквартирный дом с общими входом и техническим помещением

Практичный двухквартирный дом Z247  сможет вместить две дружественные семьи. Обе квартиры имеют общий вход и техническое помещение, что делает планировку всего дома более функциональной, в остальном квартиры полностью автономны и независимы друг от друга.

Практичный двухквартирный дом Z247  сможет вместить две дружественные семьи. Обе квартиры имеют общий вход и техническое помещение, что делает планировку всего дома более функциональной, в остальном квартиры полностью автономны и независимы друг от друга.

Открытая кухня делает дневную зону зрительно более просторной. При желании ее можно сделать частично закрытой.

Открытая терраса способствует лучшей освещенности гостиной.

Совместная для обеих квартир прихожая и котельная позволили рациональнее распланировать помещения. Доступ к котельной из прихожей позволяет ее использовать и в качестве технического помещения, удобного для хранения домашних инструментов, так и садовой утвари. Кладовая расположенная рядом с кухней.

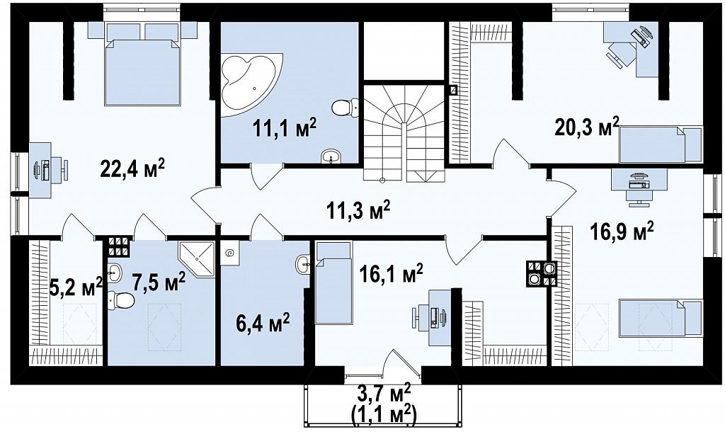
Одна из спален мансарды оснащена собственной ванной и гардеробной. Другая имеет выход на балкон.

Большие мансардные окна способствуют более функциональному использованию спален.

Санузлы расположенные один под другим упростят проведение в доме водопровода и канализации.

Дополнительное помещение на мансарде оборудовано под прачечную. Хотя вместо нее здесь можно разместить гардеробную или кладовую.

Классический архитектурный стиль и благородный изысканный дизайн по достоинству оценят сторонники традиционных решений.

Понравился проект? Пишите комментарии.

  • Заказать проект можно  ЗДЕСЬ!
  • Все подробности о данном проекте Вы найдете  ЗДЕСЬ!

Посмотреть другие проекты вы можете на сайте.