Найти в Дзене

Дом для железнодорожника 2.

Продолжу рассказ про строительство своего дома, о котором я мечтал всю жизнь.
С этим самым строительством нельзя торопиться. Вроде уже и проект выбрал и материал, планировал строить из арбалита, но понял что по деньгам не потяну. Пока размышлял - что же делать, где взять деньги- придумал новый проект.
На мой взгляд этот лучше чем прошлый. Да и с материалом передумал, решил строить из бруса, так

Продолжу рассказ про строительство своего дома, о котором я мечтал всю жизнь.

С этим самым строительством нельзя торопиться. Вроде уже и проект выбрал и материал, планировал строить из арбалита, но понял что по деньгам не потяну. Пока размышлял - что же делать, где взять деньги- придумал новый проект.

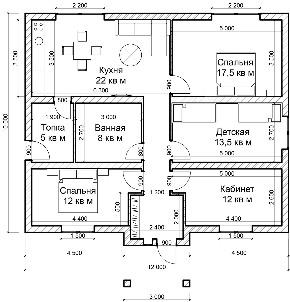
Новый проект моего будущего дома.
Новый проект моего будущего дома.

На мой взгляд этот лучше чем прошлый. Да и с материалом передумал, решил строить из бруса, так он теперь стал стоить на почти миллион меньше. Осталось съездить в строительную компанию для утверждения.

О дальнейших изменениях буду держать вас в курсе.

А как вы думаете, какой план дома лучше, этот или из прошлой статьи?