Команда onlineppr.ru разработала ТК на монтаж отбойников на территории объекта «Многофункциональный торговый центр «Глобус», расположенный по адресу: город Москва, поселение Сосенское, поселок Коммунарка ».
Общий порядок работ на объекте:
изготовление монтажных элементов отбойников за пределами строительной площадки, в цехе на территории подрядчика ;
доставка готовых элементов конструкций
Команда onlineppr.ru разработала ТК на монтаж отбойников на территории объекта «Многофункциональный торговый центр «Глобус», расположенный по адресу: город Москва, поселение Сосенское, поселок Коммунарка ».
Общий порядок работ на объекте:
изготовление монтажных элементов отбойников за пределами строительной площадки, в цехе на территории подрядчика ;
доставка готовых элементов конструкций
...Читать далее
Оглавление
Команда onlineppr.ru разработала ТК на монтаж отбойников на территории объекта «Многофункциональный торговый центр «Глобус», расположенный по адресу: город Москва, поселение Сосенское, поселок Коммунарка ».
Общий порядок работ на объекте:
- изготовление монтажных элементов отбойников за пределами строительной площадки, в цехе на территории подрядчика ;
- доставка готовых элементов конструкций отбойников и материалов на строительную площадку вручную или при помощи гидравлических тележек ;
- разметка проектного положения отбойников;
- монтаж отбойников в проектное положение.
Крепление и установка отбойников выполняется в просверленных в готовом полу отверстиях с последующей заливкой из высокопрочного и быстросхватывающегося раствора с искусственной добавкой, на химические анкеры, самонарезающими винтами и дюбелями. Монтажные соединения элементов сварные.
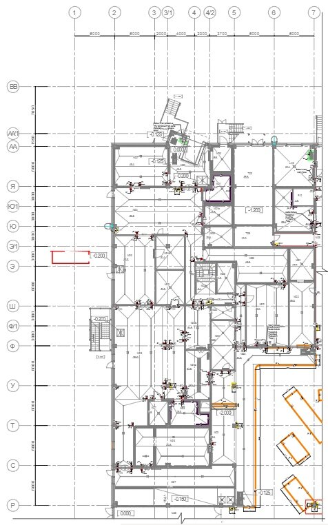
Фрагмент №1 плана производства работ по монтажу отбойников и ограждений
Установка ограждений лестничных клеток
Применяются два основных вида крепления: крепление стоек на ступень (пол) и крепление стоек сбоку лестничного марша.
Крепление с тоек сбоку марша
Работы выполнить в следующей последовательности :
- выполнить разметку проектного положения стоек ограждения;
- к стойкам заранее закрепить держатели тетивы (в случае, если предусмотрены конструкцией);
- выполнить отверстия под анкеры и закрепить стойки при помощи химических анкеров М12 к боковой поверхности лестничного марша. Закрепление стоек выполнять с уровня земли либо с нижележащего марша с уже установленным ограждением ;
- выполнить выверку стоек, предельное отклонение стоек от вертикали +3мм;
- закрепить к стойкам ригели/ тетиву и поручни;
- установить доборные стойки, выполнить выверку и закрепить поручень к стойкам / стене;
- выполнить очистку, шлифовку и полировку сварных стыков;
- установить заглушки на поручень.
Крепление стоек к ступени марша, к полу помещения
Работы выполнить в следующей последовательности :
- выполнить разметку проектного положения стоек ограждения;
- к стойкам заранее закрепить держатели тетивы;
- выполнить отверстия под анкеры и закрепить стойки при помощи химических анкеров М12 к ступени лестничного марша. Закрепление стоек выполнять с марша с ранее установленным ограждением ;
- выполнить выверку стоек, предельное отклонение стоек от вертикали +3мм;
- закрепить к стойкам тетиву и поручень. Поручень закрепить к колоннам/ стене;
- выполнить шлифовку и очистку сварных стыков;
- место закрепления стойки закрыть декоративной крышкой.
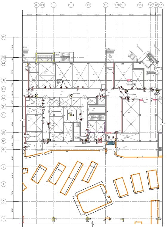
Фрагмент №5 плана производства работ по монтажу отбойников и ограждений