Добавить в корзинуПозвонить
Найти в Дзене

Как мы решили переехать из квартиры в дом. Что послужило базой для переезда

Как мы решили продать квартиру и начать строительство своего дома. Покупка участка. Немного о первой квартире

Здравствуйте! Как вообще возникла идея переехать в дом, имея однокомнатную квартиру в городе-миллионнике, рядом с метро?

Дело было в 2015 году. У нас родилась дочка и мы задумались о расширении жилплощади. На тот момент мы жили в однокомнатной квартире площадью 44м2 с восьмиметровой лоджией. Вдвоем там было отлично. С ребенком уже тесновато. К тому же у нас куча довольно габаритных вещей для активного отдыха : велосипеды, лыжи, горные лыжи, палатка, рюкзаки. А с рождением ребенка еще и коляска, санки... Всё это нужно где-то хранить.

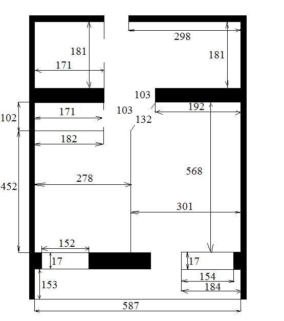
План первой квартиры
План первой квартиры

Естественно, первая мысль была найти квартиру побольше, взять ипотеку и жить спокойно. Но не тут то было! Во время поиска квартир мне попались предложения частных домов в городе по цене 3х комнатной квартиры, и в голову закралась шальная мысль: "А почему бы не рассмотреть переезд в свой дом?" Правда, те дома мы рассматривать не стали, место было не слишком удобное по транспортной доступности.

По ценам: трехкомнатная квартира в новом ЖК 90м2, стоила 5,9 млн. Наша квартира в итоге продалась за 3.3 млн. Ипотека ждала нас с распростертыми объятиями)))

А в дом все же хотелось. Особенно мне. В воображении возникали красивые картинки - свой дворик, свежий воздух, дети гуляют у дома, ягодки, зелень на салат с грядки. Но в то же время из города уезжать мы совсем не планировали. В городе работа, садики, школы, кружки. К тому же так сложились обстоятельства, что за рулем только я, муж не водит. Соответственно, нужен транспорт в шаговой доступности, он пригодится и подросшим детям. Да и машина может сломаться.

Получалось, что подходящий вариант - это частный сектор на окраинах города. ИЖС с городской пропиской. Со стабильным электричеством и возможностью подключения магистрального газа. Такие места в городе есть.

Готовых домов тогда в продаже было не так много, да и денег сразу на целый дом тогда не было, кредит брать не хотелось. И приняли мы тогда судьбоносное решение - купить пустой участок и самим построить дом! Тадам! Деньги на участок были.

Как мы на это тогда решились? Опыта строительства у нас не было, опыта жизни в частном секторе тоже. Если не считать того, что я родилась в частном доме, где жила до семи лет. От этого времени у меня остались самые радужные воспоминания о прогулках в огороде, поедании ягод с куста и всего в таком духе. В силу возраста, сложности ведения хозяйства, работа в огороде, меня не коснулись. А ведь тогда это был простой деревянный дом, в котором не было водопровода, воду носили в ведре из колонки, мыться ходили в общественную баню, а газ появился, когда мне было 2 года. И переезд оттуда в благоустроенную квартиру родители приняли с радостью, а мне было жалко сад.

Немного о первой квартире, которая послужила стартовым полигоном и стартовым капиталом для переезда. Она досталась нам с голыми стенами.

Комната. Такой нам досталась от застройщика
Комната. Такой нам досталась от застройщика
Кухня
Кухня
-4
Прихожая. Этот закуток нас спасал! Там было все - верхняя одежда, велики, лыжи, чемоданы. Он был закрыт с помощью дверей купе.
Прихожая. Этот закуток нас спасал! Там было все - верхняя одежда, велики, лыжи, чемоданы. Он был закрыт с помощью дверей купе.
-6
Кухня. Делали сами
Кухня. Делали сами
-8

Почти всё в ней сделали сами, кроме установки дверей, потолков и плитки в ванной и туалете. Даже кухню сами заказывали распил и собирали. Может быть этот опыт помог принять решение о строительстве своего дома. Что это всё не так страшно, во всем можно разобраться, интернет в помощь.

Так вот. Начали выбирать участок, это не так просто. Он должен был быть ИЖС в черте города и по не запредельной стоимости. Я считаю, нам повезло с выбором: 8 соток на окраине города, недалеко от родителей мужа. От них на машине минут 10. Осенью 2015 года мы заплатили за него 1430 тыс. рублей.

Наш участок после покупки
Наш участок после покупки

Квартиру на тот момент мы еще не продали, решили, что попробуем за сезон построить коробку дома, и когда она будет готова, продадим нашу однушку и переедем на годик на съем, ведь для инженерки и отделки этого времени достаточно (наивные).

Стройку начали весной 2016. Всю зиму выбирали проект, об этом постараюсь написать в следующей статье.