Найти в Дзене

Классный каркасник с мансардой. Разбираем по шагам.

Каркасный дом 7х8,5 по проекту КД-63
Друзья, всем привет!
Сегодня расскажу вам о каркасном доме габаритом 7х8,5 м. с мансардой.
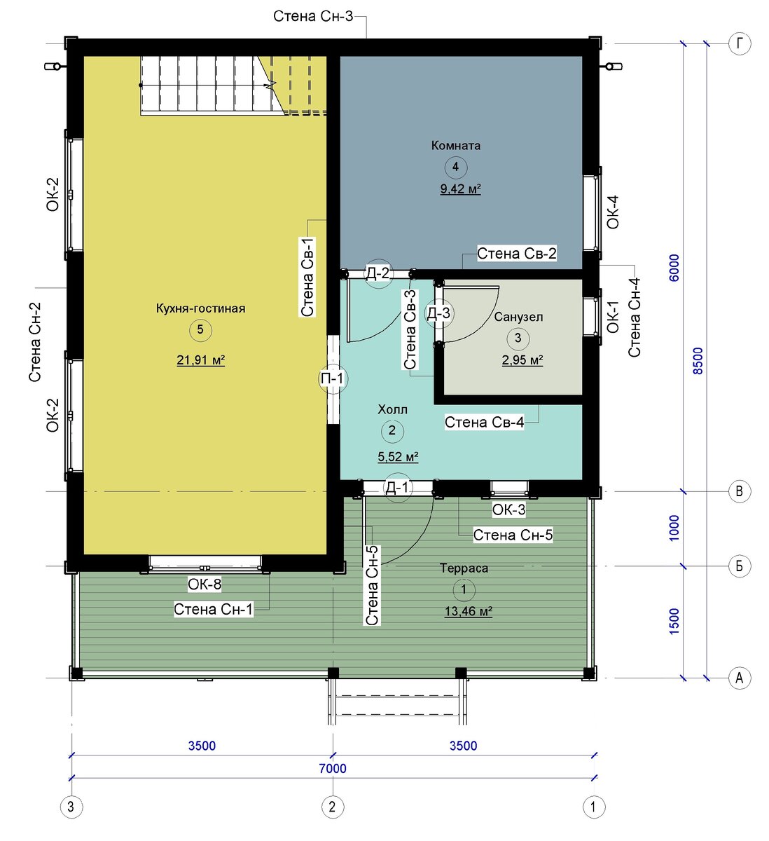
Начнём как обычно с планировки. Как видите на фото ниже, на первом этаже расположены следующие помещения:
Каркасный дом 7х8,5 по проекту КД-63
Каркасный дом 7х8,5 по проекту КД-63

Друзья, всем привет!

Сегодня расскажу вам о каркасном доме габаритом 7х8,5 м. с мансардой.

Начнём как обычно с планировки. Как видите на фото ниже, на первом этаже расположены следующие помещения:

1. Терраса 13,5 м2

2. Холл 5,5 м2

3. Санузел 2,95 м2

4. Жилая комната 9,4 м2

5. Кухня-гостиная 21,9 м2

План 1 этажа
План 1 этажа

Мансарда решена единым пространством(при необходимости его можно самостоятельно разделить на комнаты). Площадь мансарды составляет 28,9 м2

План 2 этажа
План 2 этажа

Давайте теперь рассмотрим техническую часть дома.

Фундамент дома выполняется из винтовых свай диаметром 108 мм., но так же можно использовать забивные сваи, или заменить на ленточный или плитный вариант, но это уже будет зависеть от условий конкретно вашего земельного участка.

К сваям привариваются оголовки размером 200х200 мм. К оголовкам уже крепится ростверк из доски сечением 35х190, которая собрана в пакеты по 3 штуки.

Деревянный ростверк
Деревянный ростверк

На ростверке выполняют сборку цокольного перекрытия из доски 35х190 мм. Шаг установки балок 625 мм.

-5

На готовом перекрытии приступают к сборке каркасов стен 1 этажа и устанавливают из в проектное положение. Наружные и несущие стены собирают из доски 45х140, а перегородки из доски 45х90.

Общий вид каркаса 1 эт.
Общий вид каркаса 1 эт.

После установки всех стен в проектное положение, начинают сборку междуэтажного перекрытия. Для перекрытия так же используют доску 35х190, но из-за увеличенных пролётов, балки выполняются не из одинарной, а из сдвоенной доски, т.е. балки перекрытия имеют фактическое сечение 70х190.

Междуэтажное перекрытие
Междуэтажное перекрытие

На собранном междуэтажном перекрытии приступают к сборке стен 2 этажа(мансарды).

Общий вид каркаса 2 этажа
Общий вид каркаса 2 этажа

После установки стеновых панелей 2 этажа в проектное положение, приступают к сборке стропильной системы. Стропила дома выполнены из доски 35х190.

Общий вид каркаса дома
Общий вид каркаса дома

Далее уже идут этапы наружной и внутренней отделки, которую каждый может сделать на свой вкус.

Друзья, скачать данный проект и ведомость материалов к нему, вы можете у меня на сайте по ссылке https://www.karkasproekt.com/kd-63

Так же вы можете посмотреть видео обзор этого проекта, он ещё более информативен

С уважением, Дмитрий.