Добавить в корзинуПозвонить
Найти в Дзене
Живем в деревне!

Как мы проектировали СВОЙ дом

Наш дом
Приветствую Вас уважаемы зрители на нашем канале "Живем в деревне!"
После того, как мы отказались от идеи покупать готовый дом (здесь история о том, почему мы не купили готовый дом Купить дом или построить самим? ) и решили построить его САМИ, мы начали разрабатывать проект нашего дома.
Благо - это решение нами было принято осенью и у нас была впереди вся зима и весна – достаточно
Наш дом
Наш дом

Приветствую Вас уважаемы зрители на нашем канале "Живем в деревне!"

После того, как мы отказались от идеи покупать готовый дом (здесь история о том, почему мы не купили готовый дом Купить дом или построить самим? https://zen.yandex.ru/media/id/6020b29814a11a3fb82fdf14/kupit-dom-ili-postroit-samim-6021fedd4849a63608f4625a) и решили построить его САМИ, мы начали разрабатывать проект нашего дома.

Благо - это решение нами было принято осенью и у нас была впереди вся зима и весна – достаточно времени, чтобы проработать весь план дома и, если надо, что-то изменить.

Итак, наши мысли и идеи стали прорисовываться на бумаге. Для начала решили какой общей площадью мы хотели бы, чтобы был дом. Так как у нас уже были две маленькие дочери, посчитали, что дом должен быть не менее 90 м2, чтобы всем хватило места и каждый имел свой укромный уголок.

Учитывая то, что наш участок имеет небольшой уклон, было принято решение строить 2-х этажный дом. Во-первых – это уменьшало затраты на материалы для фундамента, во-вторых – часть земельного участка осталась свободной.

На первом этаже планировалась прихожая, гостиная, кухня-столовая, санузел. На втором – гардеробная, кабинет, 2 спальни и небольшой коридор.

Уже при проектировании планировали где, и какая будет стоять мебель. Это было учтено для того, чтобы распланировать дверные и оконные проемы, а также правильно расположить все коммуникации (электропроводка, подведение воды и канализации).

Самым сложным было решить - где будет лестница. Она должна была занимать как можно меньше пространства, но при этом быть достаточно широкой, удобной и безопасной, чтобы в дальнейшем не возникло проблем с подъемом мебели на второй этаж.

Полгода мы спорили каким же все-таки должен быть дом. В итоге, учитывая пожелания друг друга, пришли к общему, и летом началось строительство нашего дома.

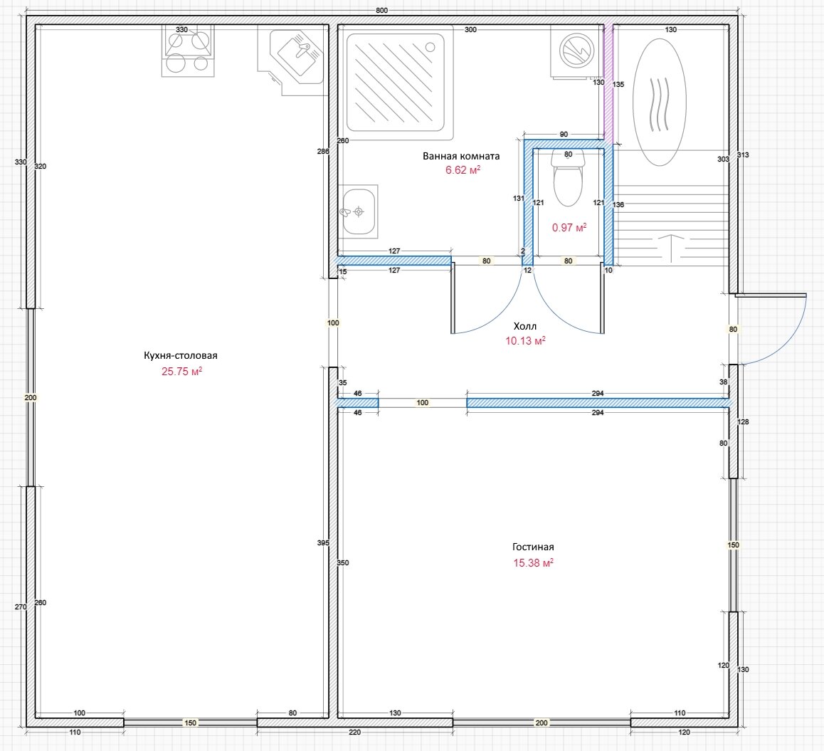
План 1 этажа
План 1 этажа
План 2 этажа
План 2 этажа

Вот уже больше 6 лет мы живем в доме, который спроектировали и построили сами. И за это время у нас ни разу не возникло мысли, что какая-то часть дома спроектирована неправильно или с ошибками.

Видеообзор нашего дама можно посмотреть здесь https://www.youtube.com/watch?v=BlF91TkSPvE