Найти в Дзене
Строим Дом

вы решили строить дом, что делать в первую очередь

Сегодня мы поговорим об алгоритме Ваших действий при постройке дома. Очень надеюсь, что данный материал поможет Вам избежать ошибок и лишних трат в этом непростом деле.
Итак, начнём с подготовительного периода. Он включает в себя создание проектно - сметной документации (ПСД), готовится застройщиком, т е Вами или за Ваш счёт.
Почему это необходимо.
Проект.
Оглавление

Сегодня мы поговорим об алгоритме Ваших действий при постройке дома. Очень надеюсь, что данный материал поможет Вам избежать ошибок и лишних трат в этом непростом деле.

Итак, начнём с подготовительного периода. Он включает в себя создание проектно - сметной документации (ПСД), готовится застройщиком, т е Вами или за Ваш счёт.

почему это необходимо

проект  

Он даёт возможность Вам и подрядчику видеть, как должен выглядеть дом внешне, т. е. его архитектурное решение, при чем с нескольких видовых точек. В проекте отображены рекомендации  по облицовочным материалам фасадов, цоколя, кровли. Архитектор правильно “посадит” Ваш будущий дом на участке с учетом рельефа и насаждений. Вы же хотите, чтобы дом был красивым, индивидуальным и неповторимым, а не “просто лось”.

полистайте

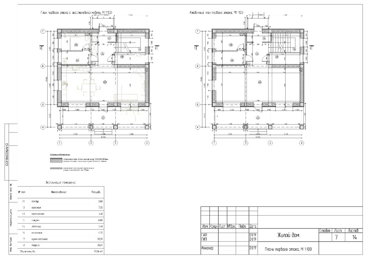
Обязательно будет описание и чертежи фундамента - основы дома. Поэтажные планы с размерами и вариантом размещения мебели снимут Вашу “головную боль” по этому вопросу, а главное, строители будут четко понимать задачу, которую им поставили. И ещё много чего, необходимого - отметки по вертикалям, развертки стен, кровли и тд.

Очень важный момент. За 20 лет своей строительной деятельности я ни разу не строил дома без проекта, просто отказывался. Без ПСД Вам будет достаточно сложно найти профессионального, опытного и уважающего себя подрядчика. Профи просто не возьмутся и будут правы. Вне всяких сомнений, вы кого-то найдете, но отнеситесь к этому с настороженностью.

В моей жизни был случай. Соседний дом строила чувашская бригада, вполне подготовленные и добросовестные люди, но строили дом 300м2 без проекта. Заказчик приезжает и говорит, что перегородку нужно демонтировать и перенести на 40см. И уезжает. Рабочие были быстры на руку. Сказано, сделано. Заказчик через пару часов звонит и говорит не на 40см, а на 60см. Далее демонтаж, постройка и так 4 раза.Это из серии “любой каприз за Ваши деньги"

Без проекта вы не сможете двигаться дальше, а дальше составление сметы. Без проекта - ни просчитать, ни построить. Если смета составлена на основе чертежа “на коленке”, то и за её точность никто не поручится.

смета

При заказе сметы для постройки частного дома лучше использовать укрупненный расчет или калькуляцию. Эта форма будет для Вас более понятна и доступна. Она должна включать в себя стоимость работ и материалов, транспортные и накладные расходы, при необходимости, проживание, непредвиденные расходы.

образец сметы
образец сметы

Лучше, если смета будет разбита по разделам. Фундамент, стены, полы, кровля и тд.

Рекомендую Вам обратиться к независимому сметчику. Он будет более объективен.

Смета должна быть привязана к вашему региону и текущей дате.

Оба эти документа, проект и смета, в дальнейшем станут неотъемлемой частью, приложением договора между Вами и подрядчиком .

Стоимость эскизного проекта от 30 тыс. рублей.

Стоимость сметы от 3-х тыс. рублей.

Это в моём Нижегородском регионе.

Если Вы решили следовать моим рекомендациям, то немедленно приступайте к составлению технического задания (ТЗ) для архитектора.

техническое задание

Возьмите лист бумаги и нарисуйте квадраты. это будут Ваши этажи. Размер внешних стен пока не ставьте. Это сделает архитектор. Рисуйте прихожую - метраж, далее гостиную - метраж, кухню - метраж и тд по всем этажам и помещениям. Этот путь будет более правильным, чем если вы решите, что дом будет 10 х 10 общей площадью 200м2. Пойдя рекомендованным мной путём, Вы получите общую площадь, а остальное задача архитектора. Вам останется только отвечать на его вопросы.

У вас получится красивый и уютный дом, о котором мечтали, если прислушаетесь к моим советам.

Желаю удачи.

Какой дом хотели бы построить Вы?

Пишите, задавайте вопросы, отвечу обязательно.