Добавить в корзинуПозвонить
Найти в Дзене

Проект склада 12 на 12м, процесс строительства. Подробно, как все было!

Строительство и проект не большого склада 12х12 метров, с фотографиями, как все было реализовано. Строительство здания овощного склада в городе Ярославль. Фундамент: Буро набивные Ж/Б сваи с монолитным ростверком. Строительство склада в Ярославле, здание из ЛСТК. Так же можно строить в туже цену здание из черного металла, тоже на болтах. Готовый проект: от фундамента, заканчивая кровлей.
Оглавление
Проект с фотографиями вживую, как все было реализовано. Строительство здания овощного склада в городе Ярославль.
Так выглядит готовая, обитая коробка здания.
Так выглядит готовая, обитая коробка здания.

Характеристики объекта:

Фундамент: Буронабивные Ж/Б сваи с монолитным ростверком.

Каркас ЛСТК: Марка стали С-350 (ГОСТ Р52246-2004).

Утепление: сэндвич-панели: Стены t=100 мм, Кровля t=150 мм.

Проект склада овощей 12х12 м

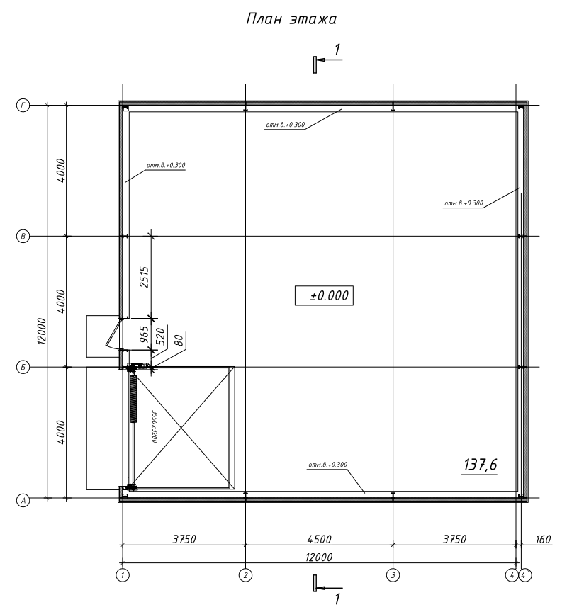
План этажа склада.
План этажа склада.
План кровли склада.
План кровли склада.

Проверяются все осевые линии, чтобы совпала геометрия здания

Все точки выставлялись по теодолиту Разрез 1-1 склада с пирогом.
Все точки выставлялись по теодолиту Разрез 1-1 склада с пирогом.
Фасады с раскладкой панелей.
Фасады с раскладкой панелей.
Лента - ростверк (контур).
Лента - ростверк (контур).
Узел цоколя - ленты в сборе.
Узел цоколя - ленты в сборе.
Разрез цоколя по свае.
Разрез цоколя по свае.
Разрезы по утепленному цоколю.
Разрезы по утепленному цоколю.
Утепленный цоколь.
Утепленный цоколь.
Иллюстрация утепленного контура.
Иллюстрация утепленного контура.
Расстановка колонн по ростверку.
Расстановка колонн по ростверку.
На ленте делаем отверстия для установки баз колонн.
На ленте делаем отверстия для установки баз колонн.
База колонн со связью.
База колонн со связью.
Каркас в сборе.
Каркас в сборе.
Монтаж на болтовых соединениях.
Монтаж на болтовых соединениях.
Кровельный профлист - раскладка.
Кровельный профлист - раскладка.
Контур утепленный по панелям.
Контур утепленный по панелям.

Панели с завода идут прямоугольные и уже по месту режутся под углы и другие габаритные размеры (см. фото ниже).

Раскладка панелей по фронтону.
Раскладка панелей по фронтону.
Кровля полистовая сборка - минвата.
Кровля полистовая сборка - минвата.
Примеряем нащельник.
Примеряем нащельник.
Раскладка панелей по длине.
Раскладка панелей по длине.
Панель монтируется внахлест во избежание промерзания.
Панель монтируется внахлест во избежание промерзания.
Узлы примыкания панелей (теплый контур).
Узлы примыкания панелей (теплый контур).
Все стыки закрываются планками.
Все стыки закрываются планками.

Цоколь выставлялся на Ж/Б сваи 150х150 мм.

Детальная прорисовка узла разреза по цоколю и Ж/Б свае.

Проработаны все узлы по тепловому контуру здания.

Цоколь.
Цоколь.
Узлы примыкания и фасонки.
Узлы примыкания и фасонки.

Подъемные, утепленные ворота.

Подъёмные ворота с цепным механизмом.
Подъёмные ворота с цепным механизмом.
Прошло 3 года, склад исправно служит заказчику.
Прошло 3 года, склад исправно служит заказчику.

Здание было построено за 2 месяца.

Вам может быть интересно:

Подписывайтесь на канал и соцсети:
Подписывайтесь на канал и соцсети:

Канал | ВК | Инста | Fb | Ок | YouT | Сайт

-31