Добавить в корзинуПозвонить
Найти в Дзене

Планировка от подписчика. Одноэтажник в стиле райта с 3-мя спальными комнатами.

Всем привет! Вы на канале Частный дом и жизнь в нем , подпишитесь
Я не проектировщик и не строитель. Я увлеченный любитель. На канале я собираю понравившиеся мне планировки частных домов под любые условия и нужды людей, которые только собираются строиться. Может быть кому-то помогут мои публикации.
Очень прошу не выплескивать негатив в комментариях, критику воспринимаем легко, но хамство

Всем привет! Вы на канале Частный дом и жизнь в нем , подпишитесь

Я не проектировщик и не строитель. Я увлеченный любитель. На канале я собираю понравившиеся мне планировки частных домов под любые условия и нужды людей, которые только собираются строиться. Может быть кому-то помогут мои публикации.
Очень прошу не выплескивать негатив в комментариях, критику воспринимаем легко, но хамство порицаем.

В дизайне с каждым годом все весомее становится идея предельной гармонии с природой. Это относится и к интерьерам, и к экстерьерам. Важно, чтобы здания убедительно вписывались в ландшафт, да и внутреннее оформление жилища было созвучно экомышлению. Одно из таких направлений, родственных природе, – это стиль Райта. Иначе его именуют «стилем прерий». Такие строения становятся лаконичными дополнениями пейзажа – они и просты, и комфортны, и внешне продуманы так, чтобы взгляд воспринимал дом и его природное окружение единым целым. Такова философия органической архитектуры, основателем которой стал американский архитектор-новатор Фрэнк Ллойд Райт.

Характерные черты домов:

  • строения ориентированы горизонтально;
  • дома выглядят приземистыми и угловатыми;
  • фасад зрительно разделяется на несколько секций;
  • планировка строения открытая;
  • отделан дом натуральными материалами в разных сочетаниях.

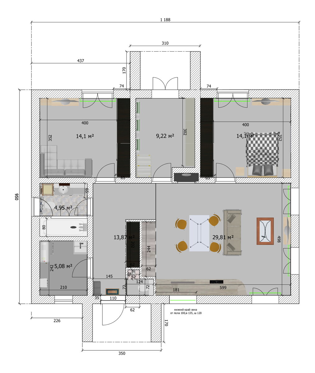
Уважаемый подписчик Victor предоставил свою задумку частного дома:

Планировка, дом 11,88м х 9,5м. Жилой площади: 91,13кв.м.:

Планировка подписчика
Планировка подписчика

3D планировка:

-3

За основу Victor взять проект FH-90. Давайте посмотрим и обсудим. Планировка будет в 2х вариантах:

-4

Плюсы планировки:
1) большая входная группа с огромным шкафом для верхней одежды и обуви

2) 3 спальные комнаты на маленькой площади. Спальные комнаты не маленького размера.

3) есть отдельная теплогенераторная.

Минусы планировки:

1) В доме будет проживать минимум 4 человека, для такого количества проживающих одного с/у мало.

2) проходная гостиная, две спальные комнаты выходят из гостиной. Когда в доме гости и шумно, дети не смогут отдыхать.

3) нет мест для хранения, куда ставить пылесос, гладильную доску?

Второй вариант планировок:

Планировка 2.
Планировка 2.

Эта планировка очень походит на ту, в которой сейчас живет моя семья, какие минусы:

1. у нас часто задействована общая зона гостиной, постоянно работает телевизор и часто гости, при этом дети, которые делают уроки или заняты своими делами в спальных комнатах все слышат, отвлекаются, приходится подстраиваться под их режим дня - очень неудобно. Если писать статью, что я бы изменила в своем доме/квартире, первое, что я бы написала, так это то, что никогда бы не сделала вход в спальни из гостиной.

2. один с/у - тяжело жить с одним с/у вчетвером, особенно, если с утра все собираются в одно время. Проектируйте 2 с/у.

Интерьеры дома:

Нравится ли вам такой дом? Как вам адаптация Victor? Давайте обсудим.

Читаем также:

Фахверковый деревянный дом 122кв.м. с 3-мя спальными комнатами.

Шведский одноэтажный барнхаус 132кв.м. с 3-мя спальными комнатами. Стильно, современно, экзотично.

Почему не стоит покупать земельные участки. Показываю и рассказываю.