Найти в Дзене
Я СТРОЮ ДОМ

Проект бани из каркаса бытовки.

Проект мобильной бани обшитой необрезной доской kelo. 2019 г.
Заказчик, занимающийся строительством домов из сухостойной сосны, обратился с просьбой разработать мобильную баню.
Баню планировалось собирать на производстве и затем доставлять на участок. За основу нужно было взять металлический каркас от старых бытовок, которых у заказчика имелось в наличии большое количество.
Наружная и внутренняя
Проект мобильной бани обшитой необрезной доской kelo. 2019 г.
Проект мобильной бани обшитой необрезной доской kelo. 2019 г.

Заказчик, занимающийся строительством домов из сухостойной сосны, обратился с просьбой разработать мобильную баню.

Баню планировалось собирать на производстве и затем доставлять на участок. За основу нужно было взять металлический каркас от старых бытовок, которых у заказчика имелось в наличии большое количество.

Наружная и внутренняя обшивка бани выполняется необрезной доской из сухостойной сосны kelo, которая так же изготавливалась на производстве заказчика.

Вот что получилось.

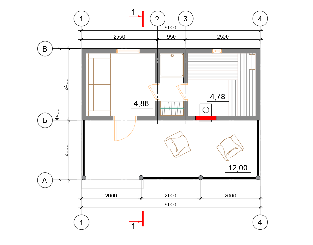
Печь с топкой с террасы. Небольшая душевая и комната отдыха. Проектом предусматривалось два варианта комплектации с террасой и без.

План мобильной бани.
План мобильной бани.

Необрезная доска из сухостойной сосны очень оригинально смотрится.

Внутри баня так же обшита необрезной доской, доска сухостойной сосны имеет не только интересный вид но и особый аромат.

Главный фасад.
Главный фасад.

Углы металлического каркаса облицованы целым бревном с выборкой четверти.

Вид с задней стороны бани.
Вид с задней стороны бани.

Скат кровли в одну сторону, по периметру декоративный парапет обшитый доской kelo.

Мобильная баня вид сверху.
Мобильная баня вид сверху.

Проект, был реализован. Если интересно напишу пост с фотографиями того что получилось.

Если вам понравилась статья и вы хотите продолжения о реализации проекта, подписывайтесь на мой канал, чтобы не пропустить новых постов!

Я СТРОЮ ДОМ в instagram подписывайтесь!

@Larionov_arch мой личный instagram.