Добавить в корзинуПозвонить
Найти в Дзене

БОРГО 124 м2 - проект современного одноэтажного дома 11х18 с тремя спальнями, из поризованного камня и кирпича.

Специфика типовой планировки этого проекта - большое общее пространство, три спальни, сгруппированные по одной стороне, и много кладовок и гардеробных. Дом с открытым планом, возможны варианты планировок. БОРГО - проект одноэтажного трёхкомнатного дома с мастер-спальней, гостиной-лофт, кладовками. В доме нет несущих стен (кровлю держат 4 столба), и планировку можно корректировать под свои потребности. Дом подходит для удлиненных участков шириной от 17 метров. Внешность дома современная, лаконичная и достаточно брутальная, без мелких деталей. Он отделан кирпичом и решен в тёмной гамме. S общая 124 м2; S жилая 70 м2; Габариты 11х18 метров ► Также есть похожий дом поменьше БРИЗ, ► и банька к ним СИЕСТА. Чтобы уж было всё, что надо :) ПЛАН ДОМА Специфика типовой планировки этого проекта - большое общее пространство, три спальни, сгруппированные по одной стороне, и много кладовок и гардеробных. Варианты планировки (3 варианта, может быть больше) Мастер-спальня дополнена двумя гардеробным
Оглавление
Специфика типовой планировки этого проекта - большое общее пространство, три спальни, сгруппированные по одной стороне, и много кладовок и гардеробных. Дом с открытым планом, возможны варианты планировок.

БОРГО - проект одноэтажного трёхкомнатного дома с мастер-спальней, гостиной-лофт, кладовками. В доме нет несущих стен (кровлю держат 4 столба), и планировку можно корректировать под свои потребности.

Дом подходит для удлиненных участков шириной от 17 метров. Внешность дома современная, лаконичная и достаточно брутальная, без мелких деталей. Он отделан кирпичом и решен в тёмной гамме.

S общая 124 м2; S жилая 70 м2; Габариты 11х18 метров

► Также есть похожий дом поменьше БРИЗ,

БРИЗ 92 м2 - уютный домик на двоих
Инваполис - проекты рациональных домов 27 апреля 2021

► и банька к ним СИЕСТА. Чтобы уж было всё, что надо :)

СИЕСТА 54 м2 - проект банного домика 7х10 с современном стиле
Инваполис - проекты рациональных домов 16 мая 2021

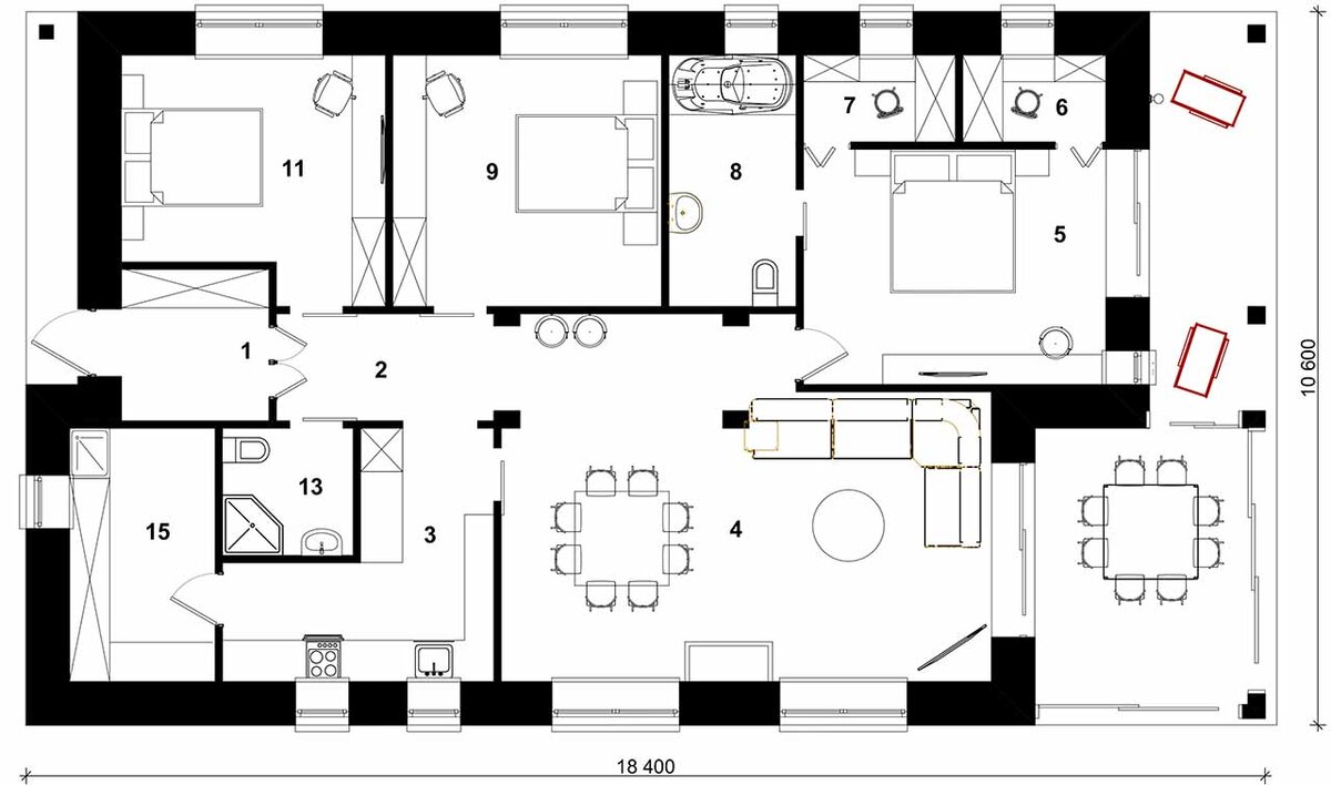
ПЛАН ДОМА

Специфика типовой планировки этого проекта - большое общее пространство, три спальни, сгруппированные по одной стороне, и много кладовок и гардеробных.

Варианты планировки (3 варианта, может быть больше)

Мастер-спальня дополнена двумя гардеробными, большой ванной, и имеет отдельную террасу с выходом в сад. Детские тоже оборудованы кладовками. Несущих стен в доме нет, поэтому, если идея кладовок вам не по вкусу, то можно их не выделять, а просто сделать комнаты побольше.

Кроме того, можно увеличить или уменьшить общее пространство, выделить кухню перегородкой, увеличить кухню, пожертвовав частично помещениями 14 и 15, поменять размер главной ванной, сделать три детских вместо двух (правда, для этого нужно будет добавить ещё одно окошко).

В общем, размер и форма дома позволяют "нафаршировать" его абсолютно разной "начинкой", в зависимости от желаний и нужд будущих жильцов.

ИНТЕРЬЕР

Общее пространство сделано без потолка, под кровлю. В остальных помещениях потолок обычный, высота комнат 3,1 метра
Общее пространство сделано без потолка, под кровлю. В остальных помещениях потолок обычный, высота комнат 3,1 метра
Зону кухни можно отделить от столовой барной стойкой, а можно оставить это место открытым.
Зону кухни можно отделить от столовой барной стойкой, а можно оставить это место открытым.

Больше фото, подробное описание дома и проекта и информацию для заказа чертежей Вы можете найти на странице дома на нашем основном сайте.

  • Другие проекты одноэтажных домов ИНВАПОЛИС здесь...
  • Если Вам интересны наши проекты, подписывайтесь на канал ИНВАПОЛИС-ДЗЕН , смотрите обзоры и подборки домов, задавайте вопросы авторам в комментариях.
  • Получать обзоры наших проектов и следить за новостями и можно также в ТЕЛЕГРАММ-КАНАЛЕ ИНВАПОЛИС – заходите, подписывайтесь, контент немного отличается 😊