Найти в Дзене
Ремонт с умом

Обзор "трёшки" в американской классике

Итак , дано : 78 , 5 кв . м . Три комнаты .

Итак , дано : 78 , 5 кв . м . Три комнаты .
Далеко не так часто заказчики выбирают полное сопровождение проекта с авторским надзором . Из - за чего конечный результат может кардинально отличаться от задумки дизайнера . Однако иногда попадаются " идеальные " заказчики , которые всегда консультируются и прислушиваются в мнению дизайнера . В таком случае получается такая вот красота .

Гостиная
Гостиная

Хозяева хотели американскую классику . Однако это у нас облегчённый вариант , без той же лепнины .

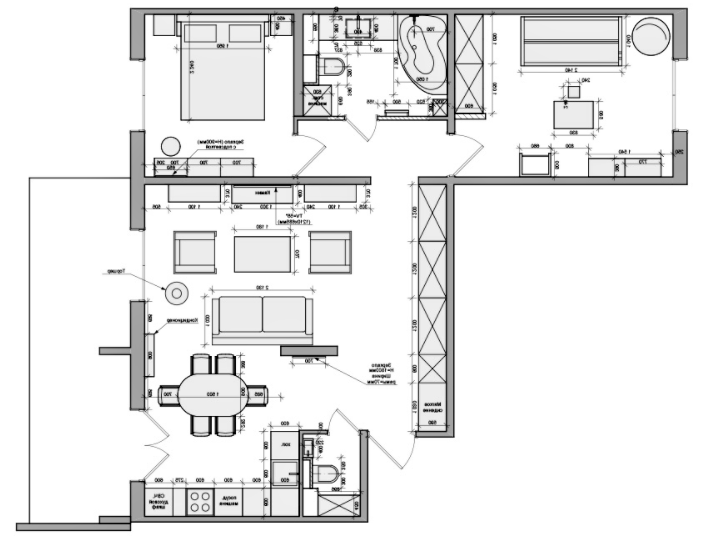
Планировка
Планировка

Из - за того , что квартира находится в " панельке ", да ещё и на первом этаже , ни о каких глобальных изменениях в плане речи не шло . Всё что мы сделали так это перенесли вход в одном из сан узлов и немного " нарастили " перегородку шкафа в детской .
У нас не было предусмотрено полноценной прихожей , лишь небольшая " мягкая " зона при входе .

Прихожая
Прихожая

Так как одним из пожеланий заказчиков было предусмотреть хорошую зону хранения , слева нам открывается большой шкаф , в котором может поместиться всё необходимое .

Шкаф в прихожей, плавно переходящей в гостиную
Шкаф в прихожей, плавно переходящей в гостиную

Он был изготовлен на заказ , так как мы абсолютно точно уверены, что любая корпусная мебель должна делаться " под тебя".
Колонная в центре гостиной , в которую мы попадаем сразу из прихожей , условно стала границей между испанской плиткой и белорусским паркетом .

Вид из обеденной зоны
Вид из обеденной зоны

Фартук на кухней специально подбирали акцентным , чтобы он выделялся на светлом .

Кухня
Кухня

Обеденная зона представляет собой мебель из ИКЕИ и австрийские светильники .

Обеденная зона
Обеденная зона

Ну и куда же американской классике без камина , в нашей квартире он сделан декоративным , внутри отделан плиткой .
Молдинги , выкрашенные в цвет стен , так же являются неотъемлемым элементом этого стиля .

Элементы американского стиля
Элементы американского стиля

Спальня как и полагается сделано более тёплой и уютной . Пространство внутри молдингов проклеено обоями .

Спальня
Спальня

Хозяйка квартиры визажистка , поэтому был предусмотрен роскошный туалетный столик , плавно переходящий в просторный комод .

Туалетная столик и прикроватная тумбочка
Туалетная столик и прикроватная тумбочка

Туалетный столик перетекающий в комод
Туалетный столик перетекающий в комод

Детская комната представляет собой мечту любого ребёнка . Тут и кровать - домик , и шведская стенка , и отдельное место для игр.

Детская комната
Детская комната
Детская
Детская

Сан узлов в этой квартире предусмотрено два . Один - гостевой , а второй - хозяйский .

Хозяйский и гостевой сан узлы
Хозяйский и гостевой сан узлы