Найти в Дзене
Ремонт с умом

Как я превратила дедушкину квартиру в современную однушку за $6000

Состояние было ужасным , типичная хрущёвка с первоначальным ремонтом . Я приняла решение подготовить её под сдачу

Наследство . Квартира досталась не совсем при хороших обстоятельствах , но как есть . Состояние было ужасным , типичная хрущёвка с первоначальным ремонтом . Я приняла решение подготовить её под сдачу , причём долговременную . Бюджет был ограничен $ 5000 - 6000 . Поэтому я использовала уже стоявшую там мебель .

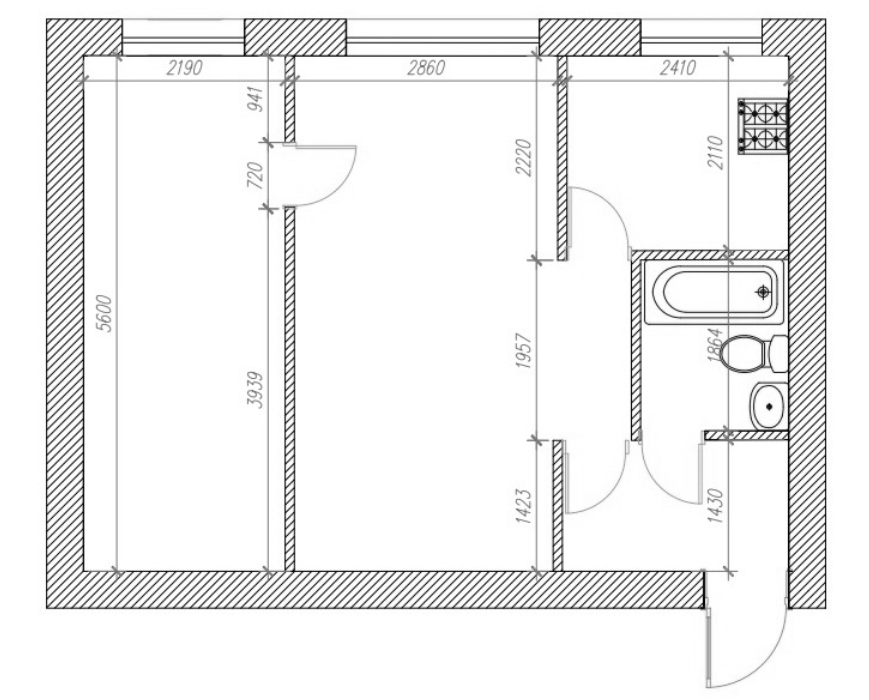
Площадь квартиры 41 , 7 кв . м . Две комнаты , одна проходная .

Планировка
Планировка

Квартира находится на первом этаже . Кухня с газовой плитой и совмещённый сан узел .

При перепланировки подобных квартир есть всего два варианта , полустудия и студия . Я решила всё же остановиться на первом . Несущими являются стены по периметру квартиры , поэтому первым делом мы сменили старый дощатый пол на бетонный и демонтировали перегородки .

Демонтаж пола.
Демонтаж пола.
Перепланировка
Перепланировка

У нас получились такие помещения как прихожая , гардеробная , спальня , гостиная с кухней и всё тот же совмещённый сан узел.
Так как старые перегородки никуда не годились , после их демонтажа , вы возвели новые из пазогребневой гипсовой плиты . Этот материал позволил сделать их тоньше . И всё что потребовалось потом это шпаклёвка и поклейка обоев , никакой штукатурки . Только на этом мы существенно сэкономили .

Прихожая
Прихожая

Декор в прихожей
Декор в прихожей

Так как папа занимается натяжными потолками , выбор был прост. Натяжной , белый и матовый . С обычными спотами для основного освещения . На любителя , конечно , но ведь для сдачи .

В таких квартирах очень любят объединять кухню с гостиной . Однако сделать это не так просто , если у вас газовая плита . По нормам такую кухню должна ограждать от других помещений дверь . Ну или поставьте электрическую плиту . Поэтому мы предусмотрели широкий дверной проём с дверью - книгой . По - моему очень симпатично получилось .

Вход в кухню
Вход в кухню

Сама кухня - это модульная ИКЕЯ . Поэтому мы сначала подобрали мебель , а потом расставили перегородки , чтобы всё точно влезло .
За счёт всех наших решений площадь кухни стала чуть меньше , поэтому подоконник стал рабочей поверхностью , а конфорок на плите стало две .

Кухня
Кухня
Кухня
Кухня

Гостиная конечно же с светлых тонах с тёплой акцентной стеной. Зеркальное панно лишь для зрительного увеличения пространства.
Обыграть интерьер мы смогли с помощью текстиля . И полушек из ИКЕИ .

Гостиная
Гостиная
Гостиная
Гостиная

Матовая плитка в ванной , чтобы не так был заметен налёт от воды . Так как квартира под сдачу о таких вещах надо думать заранее .

Гардеробная
Гардеробная
С/у
С/у

В спальней использованы нейтральные тона и металлическая кровать . Плотные шторы и ковёр создают уют :)

Спальня
Спальня
Спальня
Спальня

Буду рада услышать ваше мнение в комментариях) Подписывайтесь на мой блог. Впереди Вас ждёт много интересного.