Добавить в корзинуПозвонить
Найти в Дзене
Проекты Коттеджей

Одноэтажный кирпичный дом по проекту 40-62L. Уютное гнёздышко в стильной отделке BRAER.

Дом универсален: подойдет для молодой семьи, в которой растут или планируются дети, а также для взрослых людей, ценящих в загородной жизни комфорт и любящих принимать гостей.
Оглавление

Проект кирпичного коттеджа с террасой разработан в норвежском стиле, следовательно, сочетает экономичность, экологичность и комфортабельность в точно выверенных пропорциях.

Дом универсален: подойдет для молодой семьи, в которой растут или планируются дети, а также для взрослых людей, ценящих в загородной жизни комфорт и любящих принимать гостей.

Описание

Одноэтажное здание выглядит строгим, но в то же время нарядным и стильным за счет сочетания темного облицовочного кирпича и белых элементов отделки. Ничего лишнего и вычурного. Главное украшение дома – большая терраса, встречающая гостей и приглашающая их в гостиную с высоким панорамным окном.

Гостиная, объединенная с кухней - сердце дома. Независимо от того, будет она служить местом, где проводит время большая дружная семья или организовываются шумные вечеринки, она идеально сыграет свою роль. Из окна кухни удобно смотреть во двор, где играют дети или развлекаются друзья.

Однако каждому члену семьи или гостю необходимо место, где можно отдохнуть, а также заняться своими делами. Три отдельные комнаты практически одинакового размера отделены от общего пространства холлом. Такое расположение удобно, например, для спальни родителей и двух детских.

Из гостиной предусмотрен вход в еще одну комнату, которая может стать спальней хозяев, просторным кабинетом или малой гостиной.

Размеры ванной комнаты впечатляют. Это – самое большое помещение в доме после гостиной с кухней. Пространство позволяет установить джакузи, сделать сауну. Такая спа-зона подчеркнет прелесть жизни в собственном загородном доме, позволит отлично отдохнуть и расслабиться.

Рядом расположилось служебное помещение с отдельным входом – котельная. Места в ней достаточно для установки любой модели отопительного оборудования, а также организации прачечной.

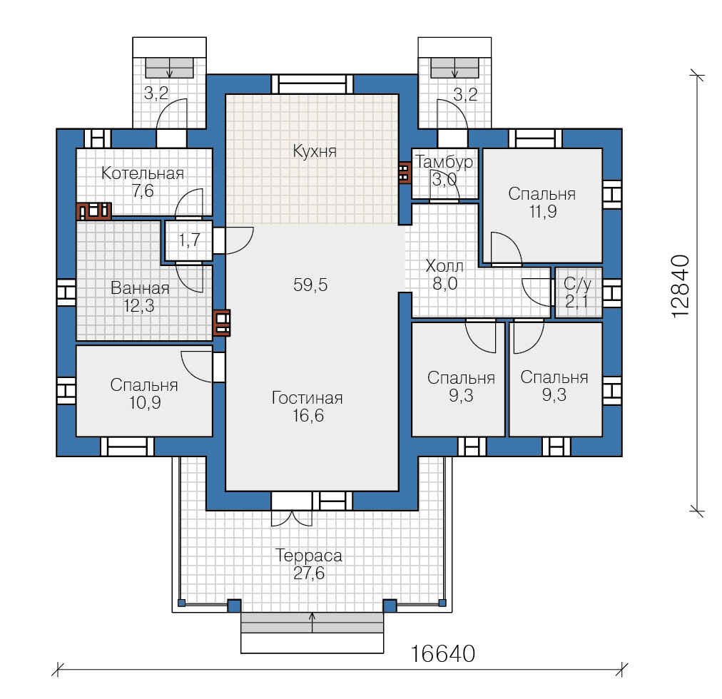
Планировка

Дом разделен на три зоны:

  1. В средней части: гостиная и кухня.
  2. В правом крыле три комнаты, двери которых выходят в просторный холл, снабженный отдельным выходом во двор.
  3. Левое крыло занимает отдельная комната со входом непосредственно из гостиной. Тут же находится просторная ванная и котельная, вход в которую предусмотрен не только из дома, но и со двора.
-2

Конструктивные особенности

Проект дома направлен на обеспечение комфортной жизни при минимизации расходов на строительство и содержание.

В коттедже не предусмотрен подвал и цокольный этаж. Фундамент – монолитная железобетонная плита. Такая конструкция, во-первых, обеспечивает прочность и долговечность здания, а во-вторых, не нуждается в обслуживании и ремонте.

Компактная планировка с эффективным использованием пространства позволяет разместить все необходимые помещения на одном этаже, что снижает расходы на строительные материалы, отопление и водоснабжение.

Чердачная конструкция крыши с деревянными перекрытиями сводит к минимуму теплопотери зимой, а летом не дает нагреваться воздуху в доме. Металлочерепичное покрытие кровли прослужит минимум 40-50 лет.

Материалы стен

Для одноэтажного дома главное – стены. Материал стен, использованный в проекте – поризованные керамические блоки и лицевой кирпич BRAER.

Керамические блоки обеспечивают:

  • Низкую теплопроводность, сравнимую с древесиной.
  • Небольшой вес, следовательно – сниженную нагрузку на фундамент.
  • Высокую скорость строительства.
  • Уменьшенный расход кладочной смеси за счет соединения паз-гребень и размера блока.

Однако главный материал этого проекта – облицовочный кирпич BRAER. Он одновременно выполняет две важнейшие функции: создает стиль дома и обеспечивает высокие эксплуатационные свойства фасада.

Впечатление, производимое переходами цветов, в комментариях не нуждается. Разве что стоит упомянуть, что достигается вся палитра коричневых оттенков за счет особой технологии обжига глины «флешинг». Красители в изготовлении кирпича не применяются.

-4

Кирпичный фасад придает дому особый статус. Постройка выглядит добротно и дорого. Причем даже после нескольких десятилетий вид стен не изменится. Качественной кладке не страшны морозы, дожди и ветры.

Особого внимания заслуживает экологичность применяемых материалов. Керамика производится из глины, без использования искусственных присадок. Несмотря на высокую прочность и твердость, материал остается живым и дышащим.

Кирпичные постройки не нуждаются в дополнительном обслуживании и ремонте. При высоком качестве строительного материала и соблюдении технологии производства работ, срок службы здания практически не ограничен.

Дом по проекту проекта 40-62L станет настоящим семейным гнездом, надежно защищающим тепло и уют на протяжении многих десятилетий.