Найти в Дзене
Онлайн ППР

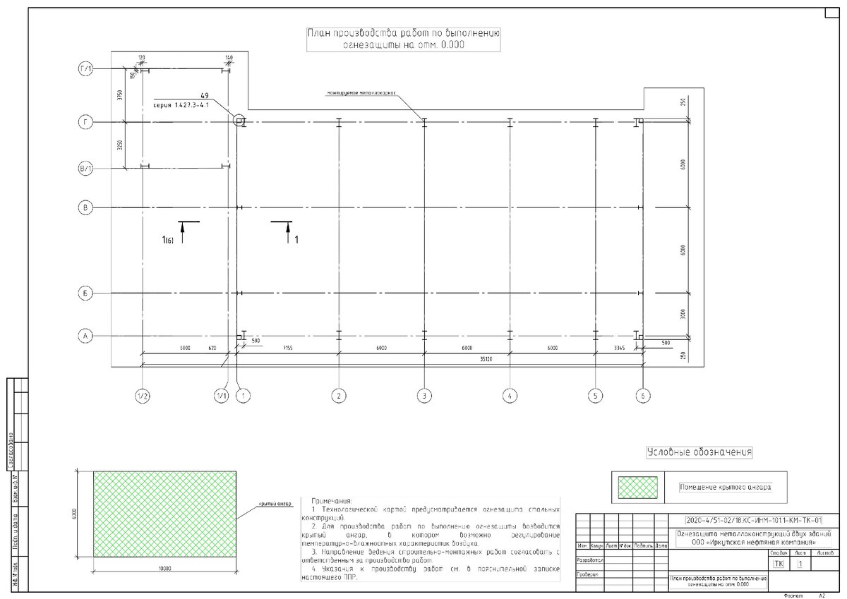
Огнезащитная обработка металлоконструкций при монтаже газоперекачивающих агрегатов

Команда onlineppr.ru разработала ППР на огнезащитную обработку металлоконструкций при монтаже агрегатов газоперекачивающих ГПА Titan 130  №1, 2.
Настоящим ППР предусмотрено выполнение следующих работ:
- перемещение металлоконструкций к зоне покраски, смена положения при покрасочных работах при помощи крана манипулятора;
- устройство тонкослойного огнезащитного слоя Arbecoat Fire на уровне земли;

Команда onlineppr.ru разработала ППР на огнезащитную обработку металлоконструкций при монтаже агрегатов газоперекачивающих ГПА Titan 130  №1, 2.

Настоящим ППР предусмотрено выполнение следующих работ:

- перемещение металлоконструкций к зоне покраски, смена положения при покрасочных работах при помощи крана манипулятора;

- устройство тонкослойного огнезащитного слоя Arbecoat Fire на уровне земли;

- устройство покрывного слоя грунт-эмалью Masscoat 155;

- восстановление огнезащитного покрытия, поврежденного в результате перемещении металлоконструкций к месту монтажа и сварочных работ.

В  качестве средства подмащивания предусматривается использование вышек-тур.

-2

Для выполнения работ по нанесению огнезащиты возводится ангар для защиты окрашиваемых конструкций от осадков.

На объект металлоконструкции поставляются уже грунтованными. Все погрузочно-разгрузочные работы выполняются с помощью крана-манипулятора.

После окончания работ по нанесению огнезащиты и покрытия грунт-эмалью металлоконструкции монтируются в проектное положение согласно рабочей документации. Подачу к месту монтажа осуществлять аккуратно, с использованием резиновых или текстильных подкладок, во избежание нарушения покрывного слоя и огнезащиты.

-3
-4

Команда onlineppr.ru разрабатывает технологические карты любой сложности.

Для заказа обращаться на почту
yd1@onlineppr.ru или звонить по номеру 8 800 511-75-77.