Найти в Дзене

Как получить расчет отопления частного дома бесплатно и сэкономить до 70 тыс. руб.? Делюсь опытом

Рассказываю, как можно качественно рассчитать инженерные системы частного дома и сэкономить на проекте до 70 тыс. рублей, то есть примерную стоить разделов отопления, котельной, водоснабжения и вентиляции. Рассказывать буду на примере системы отопления, но эта информация применима ко всему строительству в целом.
Страница из проекта отопления квартиры
Оглавление

Автор: Александр Васильев

Привет! Сегодня расскажу, как качественно рассчитать инженерные системы частного дома и сэкономить на проекте до 70 тыс. рублей, то есть примерную стоимость разделов отопления, котельной, водоснабжения и вентиляции. Рассказываю на примере системы отопления, но эта информация применима ко всему строительству в целом.

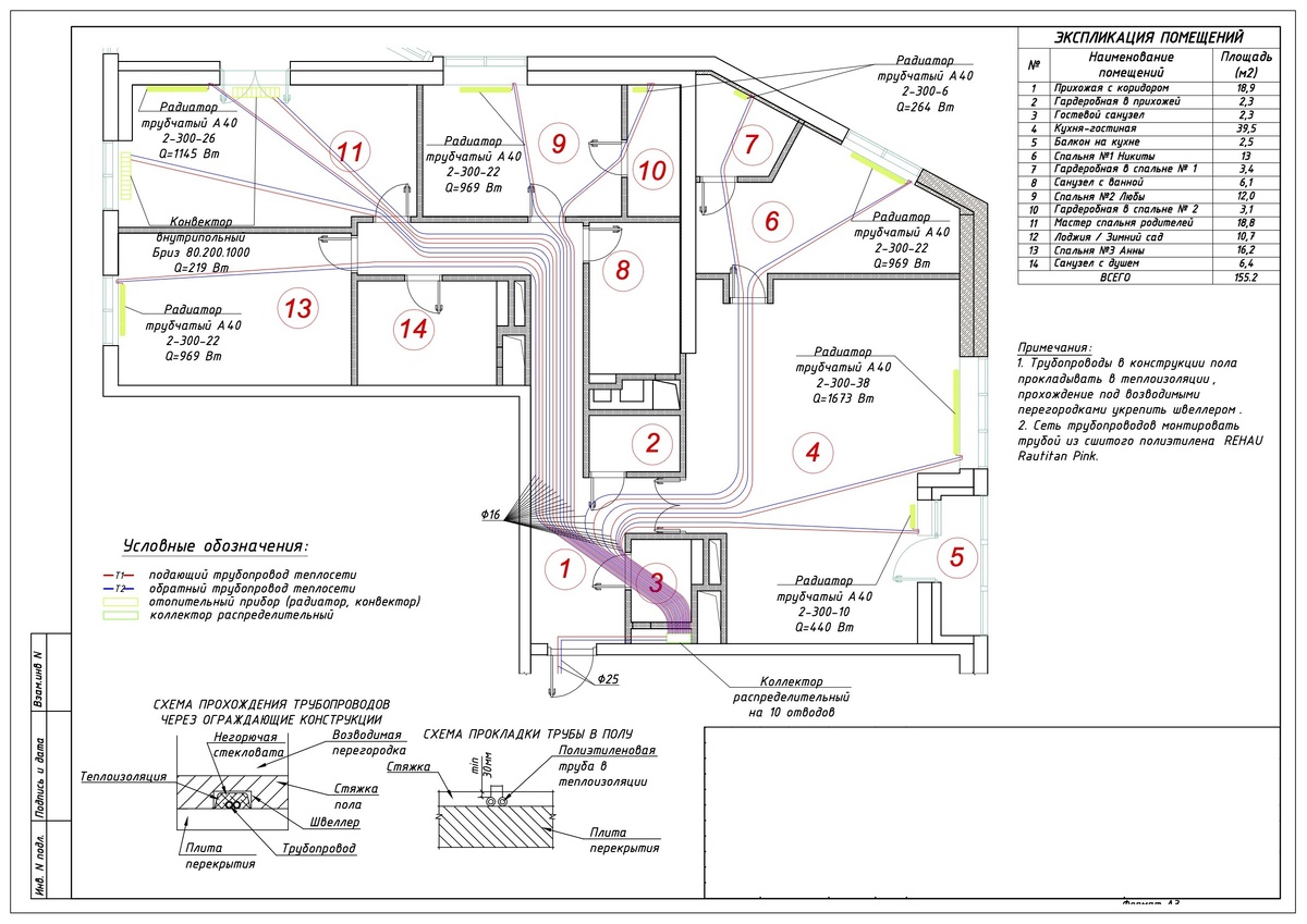
Страница из проекта отопления квартиры с расположением труб и расчетом отопительных приборов
Страница из проекта отопления квартиры с расположением труб и расчетом отопительных приборов

Да, при обращении к торгующим организациям вы получите не полноценный проект отопления с детальной отрисовкой всех трубопроводов и коллекторов, как на изображении выше, а ТЗ для монтажа и покупки всего необходимого оборудования.

Почему бесплатно, где подвох?

Скажу сразу тут нет никакого подвоха, так устроен строительный рынок. Услугу по расчету отопительных приборов предоставляют большенство торговых компаний бесплатно.

Для клиента это отличная возможность получить профессиональный расчет от специалистов, а для компаний, предоставляющих такие услуги, выгода заключается в возможности сделать коммерческое предложение и рассчитать смету на материалы и работы, если они оказывают еще и услуги по монтажу.

Важно отметить! Не все компании оказывают такую услугу, поэтому придется раскидать вашу заявку в 3-5 фирм.

Получить расчет радиаторов отопления, теплых полов и котельного оборудования для частного дома вы можете бесплатно на сайте http://heatcult.ru

Как понять, что рассчитали правильно?

Конечно, обращаясь за расчетом в торгующую компанию можно нарваться на впаривание некачественных материалов или недобросовестный расчет. Чтобы этого избежать обращайте внимание на их экспертность. Профессионалы любят детали и готовы объяснять все нюансы.

Примерный алгоритм приема заявки экспертной компании:

  • при формировании заявки у вас уточняют параметры помещений;
  • задают специфические вопросы влияющие на стоимость, сроки и возможность установки на конкретном объекте;
  • специалист объясняет, почему он задает именно эти вопросы;
  • вместе с коммерческим предложением вам высылают план или таблицу с расположением/расстановкой/прокладкой оборудования;
  • вам перезванивает специалист, который может подробно обсудить с вами расчеты;
  • при обращении в компанию может ответить секретарь и бегло записать вашу заявку, но после с вами обязательно свяжется инженер и обсудит все необходимые нюансы.

Так принимают заявку на расчет приборов отопления в Культуре отопления:

  • параметры объекта (регион, тип использования, материалы стен/пола/кровли);
  • параметры каждого помещения (наличие архитектурного или дизайн-проекта проекта, площадь, назначение, высота потолка, размеры и количество оконных проемов, высота подоконников, наличие ограничений/ниш/простенков, тип крепления, наличие теплого пола и других источников обогрева);
  • общие параметры системы отопления (подключение труб к отопительному прибору, материал и бренд труб, тип котла)
  • особые предпочтения (внешний вид, цвет, форма);
  • ориентировочный бюджет на отопления, так как цена может меняться в несколько раз в зависимости от бренда или типа отопительных приборов.
Получите бесплатно консультацию и расчет отопления на сайте http://heatcult.ru

Так же вам 100% будет полезно :

И несколько статей про трубчатые радиаторы отопления:

Спасибо, что прочитали это статью!
=> подписывайтесь на канал