Добавить в корзинуПозвонить
Найти в Дзене
Ленивый Строитель

Хватит надрываться! Как сделать кран для строительства частного дома. Реальные чертежи

Когда я решил строить дом в одиночку, первые дни мне показались адом. Поднимать 6-метровый брус оказалось делом непростым: ноги дрожали, спина трещала по швам, бицепсы росли, но не так интенсивно, как хотелось бы. И тут я начал рыскать по интернету в поисках «помощника» и наткнулся на идею с мобильными кранами. Тема хорошая, но никак не вписывалась в мой бюджет да и не все характеристики готовых

Когда я решил строить дом в одиночку, первые дни мне показались адом. Поднимать 6-метровый брус оказалось делом непростым: ноги дрожали, спина трещала по швам, бицепсы росли, но не так интенсивно, как хотелось бы. И тут я начал рыскать по интернету в поисках «помощника» и наткнулся на идею с мобильными кранами. Тема хорошая, но никак не вписывалась в мой бюджет да и не все характеристики готовых кранов мне подходили.

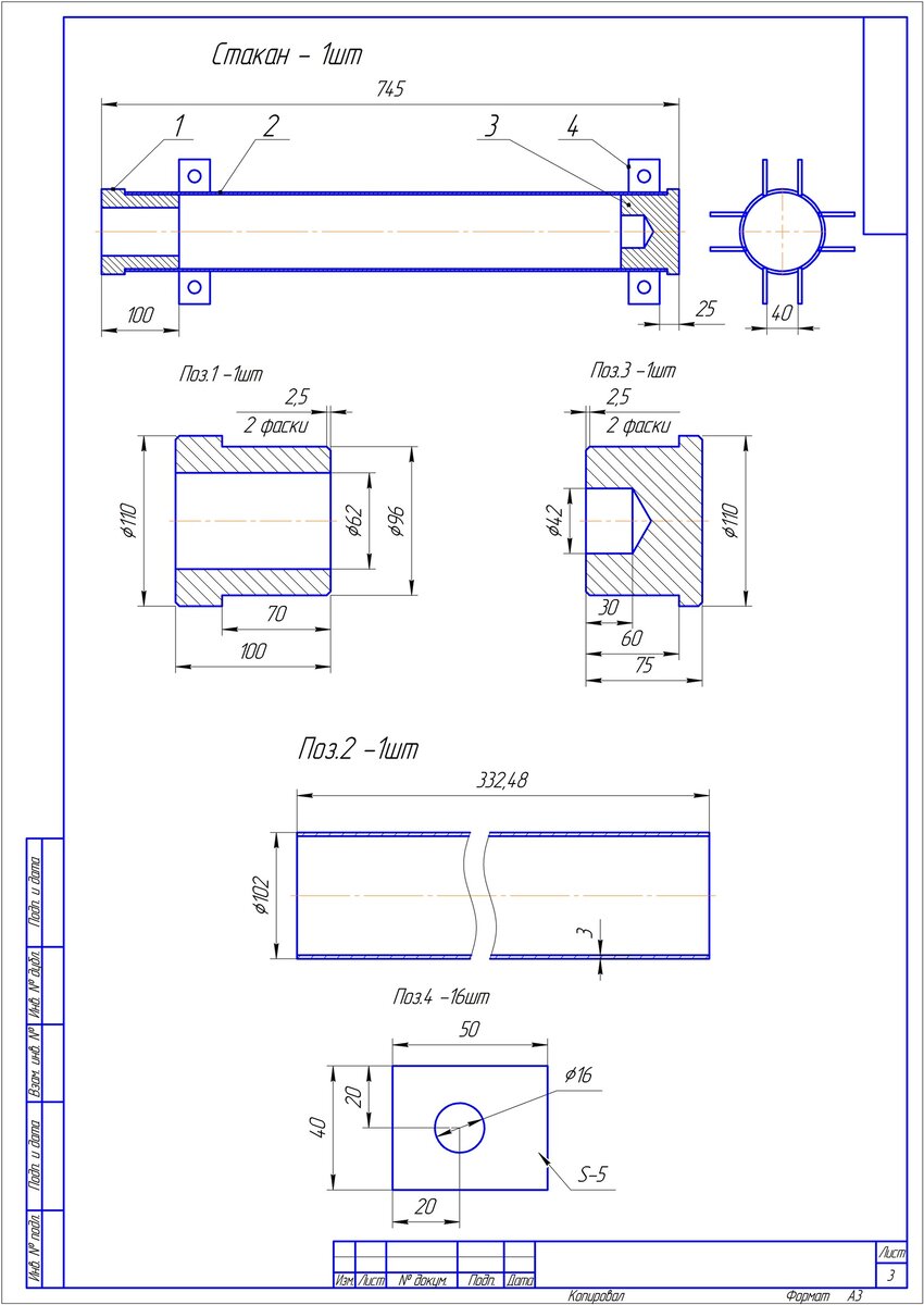
Так выглядит чертёж опоры крана
Так выглядит чертёж опоры крана

Первое, что смутило - цена, которая на тот момент стартовала от 100 тысяч рублей. Второе - это ограниченность функционала, не все доступные модели имели возможность опускать и поднимать стрелу. Третье - это вес предлагаемых конструкций, не хотелось мне таскать краны на себе или звать кого-то на подмогу.

В итоге, проанализировав все «за» и «против», решил сделать свой собственный кран. День ушёл на то, чтобы найти сварщика, который бы проникся моей сумасшедшей идеей, поскольку большинство отвечали: «Кран...хммм..., нееее, мы печи варим». Создавалось впечатление, что Кулибиных в стране не осталось совсем.

Сварщика нашёл, но мои рисунки крана от руки явно не впечатлили его, да и возник спор по поводу перспективных нагрузок и надёжности конструкции. Усиливать и утяжелять конструкцию уж очень не хотелось. После недели споров наши-таки проектировщика. Поставили ему задачу - разработать разборную конструкцию, где вес отдельно взятой детали не превышал бы 40 килограммов, вылет стрелы был 4 метра, а грузоподъемность около 1 тонны. Парнишка попался толковый, за свою работу взял всего 3000 рублей, но зато за счёт оптимизации конструкции - удешевил ее на 15 тысяч рублей. В итоге, через неделю мы получили готовые чертежи крана с двумя лебёдкам, одна из которых поднимала стрелу, вторая груз.

Сварщики за работу попросили 11 тысяч рублей. Параллельно заказал лебедки - одну электрическую грузоподъемностью 1 тонна за 22000 рублей, другую обычную ручную трещетку на 1,5 тонны за 1500 рублей. На железо ушло ещё около 12000 рублей.

В течение недели работа была сделана. Докупил болты, гайки и шайбы согласно чертежу - ещё около 1000 рублей.

Общий бюджет составил - 47500 рублей плюс доставка до участка - 500 рублей.

На сборку конструкции потратил около получаса. Поставил его в центре строящегося дома. В качестве контрвеса для стрелы использовал мешки с песком и щебнем.

Общий вид крана
Общий вид крана

Кран получился с поворотом 360 градусов, подъемом стрелы и подъемом груза.

Из минусов, чтобы хотелось усовершенствовать.

  1. На кран обязательно необходимо установить колеса, вращающиеся на 360 градусов;
  2. Под площадку крана лучше всего что-то накидать, потому что под весом он будет просаживаться и возникнут вопросы с его мобильностью;
  3. Предусмотреть в конструкции крана подъёмные болты опоры, которые позволят без демонтажа поднимать его выше, устанавливая на дополнительные подкладки - это становится актуально по мере роста высоты стен.
  4. Необходимы автоматические зацепы, но о них я расскажу подробнее в следующих постах.

Подписывайтесь на мой новый канал, чтоб не пропустить ничего интересного. Пишите в комментариях, если нужен полный комплект чертежей мобильного крана - выложу бесплатно.