Добавить в корзинуПозвонить
Найти в Дзене
Мысли вслух

Построил каркасный дом за месяц. Во сколько нам это обошлось?

фото автора
фото автора

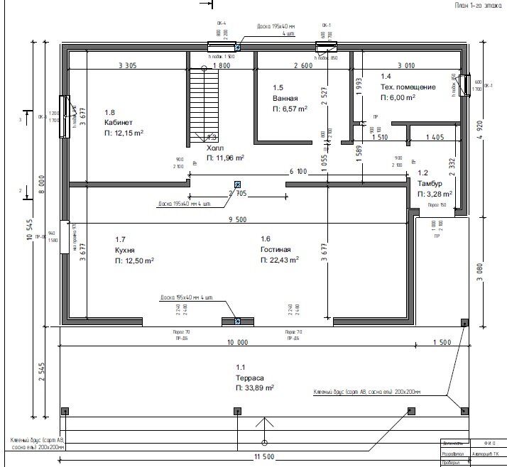
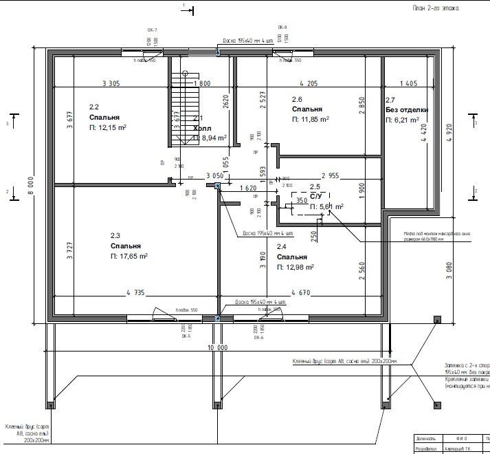
Итак, в самом конце ноября 2020 года мы начали большую стройку - решили до нового года успеть построить полноценный каркасный дом для постоянного проживания площадью 170 кв.м.

Сегодня я подробно расскажу о том, сколько и на что потратили.

Итак:

1. Фундамент на 46-ти сваях, каждая длиной 2,5 метра.

Это был самый простой и быстрый этап - "на все про все" было потрачено полдня. Участок у нас ровный, грунт - песок, поэтому не было особых проблем с закручиванием свай и выставлению их по уровню.

фото автора
фото автора

2. Каркас из доски камерной сушки

Непосредственно перед началом стройки мы дополнительно усилили конструкцию полов на обоих этажах - шаг балок был уменьшен с 600 мм до 400 мм. На стоимости это почти не отразилось, а вот жесткости существенно добавилось. А батутность пола сведена к нулю.

Также увеличили высоту потолков - 2,9м на первом этаже и 2,6м - на втором.

фото автора
фото автора

3. Изоляционные пленки (гидро-, ветро- и парозащита)

Тут все строго по технологии. Но, дополнительно проклеили все швы пароизоляционной пленки специальным скотчем, хотя сама пленка крепилась внахлест.

фото автора
фото автора

4. Утепление

фото автора
фото автора

5. Крыша

фото автора
фото автора

6. Отделка фасада и окна

фото автора
фото автора

7. Внутренняя отделка

Отделку стен и потолков на этом этапе решили пока не делать. За исключением стен и потолков в сан.узлах и котельной - везде ЦСП (цементно-стружечная плита).

Также ЦСП постелили по всему полу на 1-м этаже. Это подготовка под стяжку для будущего монтажа теплого пола.

На втором этаже по пол постелили обычную доску 35мм - на первое время этого будет достаточно.

фото автора
фото автора

8. Дополнительные работы

Тут проектировщикам пришлось "поломать голову" с нависанием крыши - она получилась выдвинутой вперед над террасой на 2,5 метра. Пришлось дополнительно ставить клееные столбы, на которые будет опираться свес крыши. Причем, сами столбы пришлось крепить к фасаду, чтобы они не раскачивались из-за большой длины (центральный столб получился высотой почти в 6 метров).

С дверьми на веранду тоже пришлось повозиться. Общий размер каждого проема получился 2,4 метра в высоту и 2,2 метра в ширину. К сожалению, не все производители окон готовы были изготовить двери такого размера. А те, кто могли изготовить - запросили слишком высокую цену за такой вариант.

К тому же, по проекту, окна должны быть с темно-серой ламинацией снаружи и белые внутри. Тоже самое и с раскладкой внутри стеклопакетов (шпросы).

Но, все получилось. Хотя и пришлось дополнительно заплатить почти 250 000 рублей. Но этого того стоило.

По моему мнению: окна - это как электрика, отопления и канализация - на этом экономить нельзя.
фото автора
фото автора

Вот, собственно и все.

ИТОГО получилось округленно 2 800 000 рублей.

фото  автора
фото автора

Впереди еще много работы - покраска дома в белый цвет, электрика, отопление, водоснабжение и отделка внутри.

Начало стройки - тут.