Найти в Дзене
Филдс

Интерьер, в котором всю мебель сделали на заказ: как дизайнер оформила квартиру 113 м² «не как у всех»

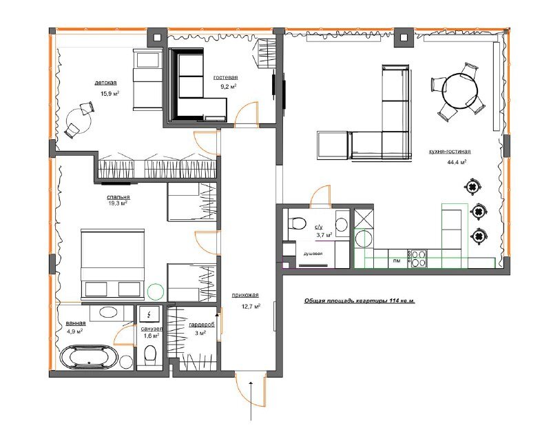
Дизайнер Татьяна Бакланова оформила четырехкомнатную квартиру площадью 113 м² для семьи. Заказчики поставили задачу создать «интерьер не как у всех» или «интерьер-праздник». Планировка Квартиру сдавали с открытой планировкой. Благодаря большой площади остекления и, соответственно, обилию естественного света имелась возможность распорядиться пространством почти как угодно. В результате выделили большую кухню-гостиную, спальню, детскую и компактную гостевую. Помимо этого, предусмотрели два санузла и целых три гардеробных. Кухня-гостиная Для оформления стен в комнате выбрали достаточно темный оттенок обожженной глины. Сдержанный фон разбавили яркими акцентами — обоями в ТВ-зоне и яркими фасадами кухонного гарнитура. Зону отдыха определила постановка дивана. Его Г-образная форма позволила четко очертить границы. Этно-стилистика мягкой мебели привнесла в интерьер эклектичные нотки. Хозяйственную часть кухни с мойкой и холодильником скрыли в нише, чтобы она не бросалась в глаза при входе
Оглавление

Дизайнер Татьяна Бакланова оформила четырехкомнатную квартиру площадью 113 м² для семьи. Заказчики поставили задачу создать «интерьер не как у всех» или «интерьер-праздник».

  • Место: Москва
  • Тип дома: ЖК «Ривер Парк»
  • Количество комнат: 4
  • Бюджет: 7 млн рублей
  • Кто здесь живет: семья

Планировка

Квартиру сдавали с открытой планировкой. Благодаря большой площади остекления и, соответственно, обилию естественного света имелась возможность распорядиться пространством почти как угодно.

В результате выделили большую кухню-гостиную, спальню, детскую и компактную гостевую. Помимо этого, предусмотрели два санузла и целых три гардеробных.

Кухня-гостиная

Для оформления стен в комнате выбрали достаточно темный оттенок обожженной глины. Сдержанный фон разбавили яркими акцентами — обоями в ТВ-зоне и яркими фасадами кухонного гарнитура.

Зону отдыха определила постановка дивана. Его Г-образная форма позволила четко очертить границы. Этно-стилистика мягкой мебели привнесла в интерьер эклектичные нотки.

Хозяйственную часть кухни с мойкой и холодильником скрыли в нише, чтобы она не бросалась в глаза при входе.

Сам гарнитур дополнили барной стойкой, в опоре которой предусмотрели дополнительные места для хранения. Ее укомплектовали полубарными стульями, которые соотносятся со стульями в составе столовой группы и перекликаются по цвету с цоколем.

Спальня

Для отделки спальни выбрали краску припыленного голубого оттенка, а для декора использовали лепнину. Кровать дополнили внушительным, но элегантным изголовьем.

Необычно подошли к оформлению гардеробных — их заключили в два стеклянных куба.

-7

Ванная комната, плавно переходящая в спальню, стала главной особенностью проекта. В помещение даже не стали монтировать дверь, чтобы пространство выглядело единым.

Детская

Чтобы освободить больше места для игр, в детской поставили двуспальную кровать. Стеллаж рядом с окном укомплектовали подушками, чтобы создать удобную зону для отдыха. А вдоль всего коридора пустили ряд встроенных шкафов.

Прихожая

Прихожая представляет собой длинный вытянутый коридор с множеством дверей. Чтобы не перегружать пространство, от мебели полностью отказались, тем более что недалеко от входа есть гардеробная. А разнообразить интерьер помогает старое резное зеркало, в котором угадываются мотивы наличников из русских изб.


Санузел

Гостевой санузел полностью облицевали плиткой — большую часть стен оформили под дерево. В душевой предусмотрели сиденье и поручень.

-11

Интересные мнения в комментариях приветствуются. Если материал понравился — ставь лайк!

🖤 Филдс — это не только блог на Дзене, но и магазин дизайнерских предметов интерьера. Заходите на сайт, чтобы увидеть мебель, которую дизайнеры выбирают для своих проектов.