Добавить в корзинуПозвонить
Найти в Дзене

Посчитал деньги на двухспаленный домик

Стоимость стройки, которую называют строители, даже на один и тот же домик, может существенно отличаться. Одна из причин - комплектация. Все любят низкие ценники, и продавцы это знают и используют. Иногда результат стройки сильно отличается от того, что представлял себе покупатель и что ему казалось очевидным. Но формально сделано все по договору, придраться не к чему.
Я посчитал деньги на мой двухспаленный домик 2023 года. В нем нет гламура (разве что окошки "выпендрежные", как нарисовал архитектор). Но это легко меняется и подоконники поднимаются. Это даст некоторую экономию, но не радикальную.
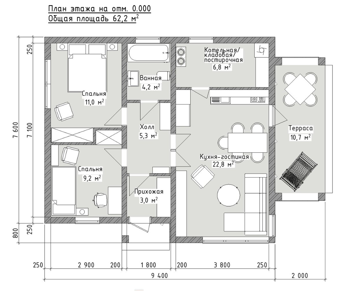
На стоимость домика влияет и геометрия - он маленький, на единицу площади приходится больше стен. В нем есть хороший комплект вспомогательных помещений и санузел с душем нормального размера, и котельная-кладовая, подходящая для наших современны условий. Есть вариант с двумя санузлами, но это также на стоимость почти не влияет Вот планировка и картинки внешнего вида: У

Стоимость стройки, которую называют строители, даже на один и тот же домик, может существенно отличаться. Одна из причин - комплектация.

Планировка двухспаленного домика, общ площадь помещений внутри 62 м2, пятно застройки 82м2
Планировка двухспаленного домика, общ площадь помещений внутри 62 м2, пятно застройки 82м2

Все любят низкие ценники, и продавцы это знают и используют. Иногда результат стройки сильно отличается от того, что представлял себе покупатель и что ему казалось очевидным. Но формально сделано все по договору, придраться не к чему.

Я посчитал деньги на мой двухспаленный домик 2023 года. В нем нет гламура (разве что окошки "выпендрежные", как нарисовал архитектор). Но это легко меняется и подоконники поднимаются. Это даст некоторую экономию, но не радикальную.

На стоимость домика влияет и геометрия - он маленький, на единицу площади приходится больше стен.

В нем есть хороший комплект вспомогательных помещений и санузел с душем нормального размера, и котельная-кладовая, подходящая для наших современны условий. Есть вариант с двумя санузлами, но это также на стоимость почти не влияет

Вот планировка и картинки внешнего вида:

Двухспаленный домик, вид спереди, общ площадь помещений внутри 62 м2, пятно застройки 82м2
Двухспаленный домик, вид спереди, общ площадь помещений внутри 62 м2, пятно застройки 82м2
Двухспаленный домик, вид сверху и сбоку, общ площадь помещений внутри 62 м2, пятно застройки 82м2
Двухспаленный домик, вид сверху и сбоку, общ площадь помещений внутри 62 м2, пятно застройки 82м2

У меня получилась следующая цифра: на 1 февраля 2023 года: без веранды 4680 тыс руб, с верандой - 4849 тыс руб. Это реальный тепловой контур, с утеплением и под плитой, и 20 см сверху, по перекрытию, с хорошей теплой финской входной дверью, разводкой канализации и гильзами для ввода коммуникаций.

стоимость стройки посчитана при ее расположении в пределах 50 км от МКАД в секторе от каширского до можайского шоссе.

Такой домик в этой комплектации может быть построен за 2-3 месяца. И не обязательно стройку начинать в мае месяце!

Основная заморочка газосиликата - ему нужно довольно долго сохнуть от момента постройки коробки до начала отделки, тк он приходит с завода очень влажный - 40% легко. Производители блоков рекомендуют - от полугода. И на эксплуатационную влажность он выйдет года через полтора-два. Но есть технологии, позволяющие для этого конкретного домика начать отделывать изнутри сразу после завершения стройки теплового контура, без рисков избыточного увлажнения, появления плесени и прочих проблем недосушенного газосиликатного дома.

В идеальной ситуации и если очень надо, в него можно заехать через 5 месяцев после начала стройки.

Комплектация:

Подготовка и запуск
- доработка рабочей документации по результатам геологии и геодезии, организация проживания рабочих и хранения инструмента.
- до 40 м строительного забора.

Основание:
- монолитный бетон с утепление периметра 10 см и под плитой 5 см псбс. (ребра жесткости плиты или монолитная лента) Перепад высот на пятне застройки до 15 см (если больше, то будут изменения в конструкции фундамента и стоимости стройки. Утепление под плитой 5 см ПСБс
- разводка канализации с выводом в сторону септика на 1,5 м от стены дома
- гильзы для ввода коммуникаций - 5 шт, из них одна на глубине 150 см - для воды.
- теплая отмостка по периметру доме с бетонным покрытием шириной 1м (утепление 5 см ЭППС)

Стены:
- стены: газосиликат 300мм плотности д300 (это эквивалентно 40 см блока плотности Д400)
- армирование кладки мет арматурой диам 8мм, по проекту
- армпояса в U-блоках по периметру и над проемами длиной боле 90 см

Перекрытие, крыша и кровля

- перекрытие чердачное - доска 50*200 с шагом 55 см с утеплением 200мм. (минвата, эковата или пенопласт ПСБС. Если утеплитель требует пароизоляции снизу - делаем.
- черновой пол на чердаке - дюймовка с зазорами ок 1 см.
- крыша - стропильная система из обрезной доски 50*200
- по стропилам - пароизоляция, закрепленная брусками 40*50
- шаговая обрешетка из доски 25*100 с зазорами между досками 10-20 мм
- фальцевая кровля заводского изготовления Гланд-лайн, профиль клик-фальц про, толщина 0.45, покрытие полиэстер, цвет по выбору заказчика из наличия металла на заводе.
- снегозадержатели
- водосточная система Деке люкс
- короб для вывода стояка вентиляции и фанового стояка, с проходом через перекрытие и крышу.

Окна, двери (наружные)
- Окна, пластиковые, состав и форма по проекту, толщина монтажная 70 мм, (бывают еще 50 и 82), оконная система Рехау Делайт, двухкамерный стеклопакет, с фурнитурой RottoNX, с ламинацией снаружи (под темное дерево, как на картинках)
- дверь входная основная - финская, модель
Function F2000/B/LC200 Swedoor (advdoors.ru) Личинка замка и ручка покупается заказчиком самостоятельно.

Завершение этапа:

- Уборка территории (строительный мусор и остатки стройки)
- вывоз мусора
- вывоз остатков материала
- вывоз бытовки
- вывоз туалета

Про отделку и инжинерию будут отдельные статьи