Найти в Дзене

Проектируем электрику в дорогой квартире вместе! Часть 2. Планировки..

Друзья, продолжаем начатое - проектируем электрику в относительно дорогой и сложной квартире! Мы пошагово разбираем весь процесс проектирования, и я делюсь своими наработками. У нас есть дизайн-проект, расстановка розеток, выключателей, светильников. Это основа нашего проектирования, можно сказать конечная цель, чтобы все что нарисовано и придумано дизайнером - работало. В этой части статьи разберемся с планировкой - планом квартиры, основой, на которую будут нанесены все ЭУИ, светильники, кабели, теплые полы и т.д. 0. Найдите планировку! Лучше в векторном формате Очень желательно найти векторную планировку. Она чище, точнее, занимает меньше места. Ее можно попробовать импортировать из PDF, но лучше запросить у дизайнера. Мне приходилось работать и по растровым планировкам - в них приходится выполнять подчистку и изменение цветов в графических редакторах типа paint.net и т.п. 1. Расположение плана квартиры Рассмотрим нюансы и особенности проектируемой квартиры. Расположение плана кварт
Оглавление

Друзья, продолжаем начатое - проектируем электрику в относительно дорогой и сложной квартире! Мы пошагово разбираем весь процесс проектирования, и я делюсь своими наработками.

У нас есть дизайн-проект, расстановка розеток, выключателей, светильников. Это основа нашего проектирования, можно сказать конечная цель, чтобы все что нарисовано и придумано дизайнером - работало.

В этой части статьи разберемся с планировкой - планом квартиры, основой, на которую будут нанесены все ЭУИ, светильники, кабели, теплые полы и т.д.

0. Найдите планировку! Лучше в векторном формате

Очень желательно найти векторную планировку. Она чище, точнее, занимает меньше места. Ее можно попробовать импортировать из PDF, но лучше запросить у дизайнера. Мне приходилось работать и по растровым планировкам - в них приходится выполнять подчистку и изменение цветов в графических редакторах типа paint.net и т.п.

1. Расположение плана квартиры

Рассмотрим нюансы и особенности проектируемой квартиры. Расположение плана квартиры может быть ориентировано по сторонам света, но для проектирования электрики не является удобным.

Особенности - отсутствие прямых углов, непараллельные и неперпендикулярные стены
Особенности - отсутствие прямых углов, непараллельные и неперпендикулярные стены

Провода обычно располагают под прямыми углами, и показанное выше расположение стен не удобно. Я пойду на некоторый риск, и поверну планировки удобным для себя образом.

На больших объектах лучше так не делать, чтобы электрика могла быть наложена на другие сети, но если наш проект не планируется к совместной работе, а является отдельным разделом, то, полагаю, можем так сделать.

Повернутые более стандартным образом планы
Повернутые более стандартным образом планы

Если очень захочется можно будет повернуть и наложить чертеж даже с нанесенными сетями.

2. Настройка цветов и слоев

В начале проектирования я предпочитаю делать планировку максимально чистой. Убрать на другие слои размеры, текст, лишние обозначения и оставить только стены, и, возможно, штриховку стен.

Цвета стен предпочитаю делать серым. Рамка и штамп основной надписи черным, а план при сером цвете не сильно бросается в глаза, уходит излишняя контрастность и появляется легкость.

Подчищенный вариант планировки - гораздо понятнее, меньше визуального шума
Подчищенный вариант планировки - гораздо понятнее, меньше визуального шума

Все стены мы перенесли на отдельный слой и объединили в блок. Выбрана небольшая толщина линий и светло-серый цвет, чтобы видеть объекты, оставшиеся на других слоях или блоках (окна).

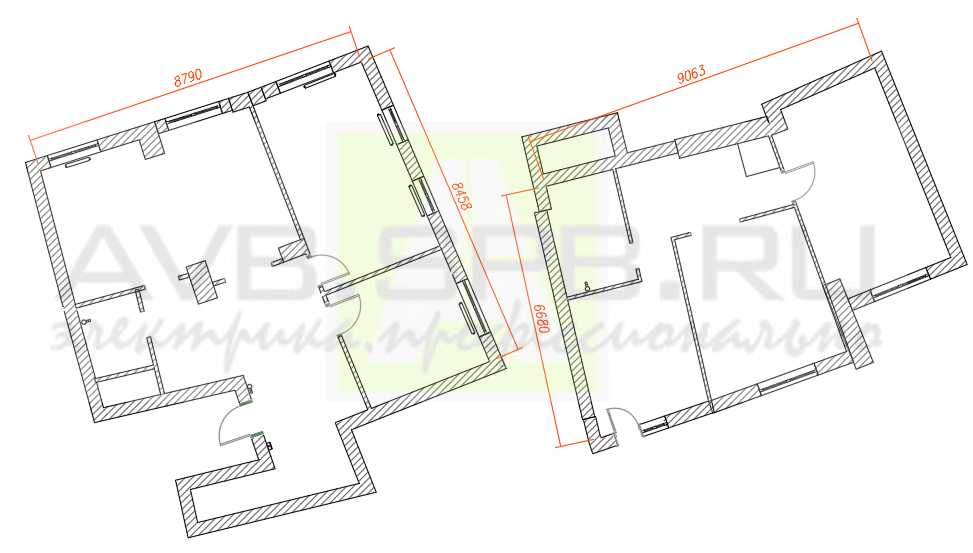
3. Оси и размеры

Оси и размеры добавляют профессиональности и удобства чертежам, поэтому хоть их нанесение и занимает время, но я их делаю.

Теоретически их можно взять из Дизайн-проекта, а практически там обычно другие шрифты и они просто могут быть нанесены по-другому. Кстати, в нашем дизайн-проекте их не было, возможно из-за непрямоугольных помещений.

Мне обычно нужно видеть самые общие размеры - габариты комнат, и общие габариты. В рассматриваемом проекте из-за неперпендикулярности стен приходится нести дополнительные издержки на наклоны осей и неравные размеры помещений.

Так выглядит планировка с осями, но без размеров - оси нужны для ориентирования между какими стенами что находится. Можно сказать осями мы подписываем стены
Так выглядит планировка с осями, но без размеров - оси нужны для ориентирования между какими стенами что находится. Можно сказать осями мы подписываем стены

Если наши оси отличаются от Дизайн-проекта или архитектуры, это достаточно плохо, и, если уже есть проработанные оси, лучше использовать их, или повторить их нумерацию.

Так выглядят планировки с осями и нанесенными размерами - отдельных комнат и общими
Так выглядят планировки с осями и нанесенными размерами - отдельных комнат и общими

Оси размещены на отдельном слое, чтобы их можно было отключить и настроить вид, наименее отвлекающий от главного.

4. Назначение помещений и экспликация

Еще один важный элемент планировки помещений - название комнат и помещений. Очень желательно иметь экспликацию на каждом чертеже, так как если они отсутствуют очень не просто ориентироваться, особенно на большом объекте.

Теперь каждое помещение подписано, имеет свой номер и назначение
Теперь каждое помещение подписано, имеет свой номер и назначение

При нумерации помещений очень желательно (я предпочитаю) делать сквозную нумерацию, то есть от 1 до 1000. Если два этажа, то не начинать заново, иначе вместо помещение 5 и помещение 6 мы получим помещение 1 первого этажа, и помещение 1 второго этажа, что гораздо дольше произносится, труднее понимается, хуже запоминается и несет риски ошибок.

На больших объектах желательно сразу продумать нумерацию и не менять ее. Однако при множестве переделок (делении больших помещений) могут возникнуть промежуточные номера, например 14_1, 14_2. Желательно этого избегать.

Пример не сквозной (неудачной) нумерации с дополнительными номерами 4а, 7а, 10а, 11а.
Пример не сквозной (неудачной) нумерации с дополнительными номерами 4а, 7а, 10а, 11а.

На примере выше комнат не 13, а 17, но по номерам кажется, что 13.

Заключение. Выводы.

Если мы добрались до этого места, у нас:

  • Векторная планировка
  • Сориентированная по вертикали и горизонтали (а не сторонам света)
  • С которой убрано все лишнее
  • Переведенная на 1-2 слоя
  • Нанесены оси и размеры
  • Присутствует нумерация и экспликация

Самое время начать разбираться с электрикой! Так как все описанное в этой части относится к архитектуре, но без нее электричество трудно сделать хорошо, и выглядеть чертежи будут хуже.

Если Вам дают уже готовую планировку с экспликацией - считайте, что повезло, ведь эта работа занимает время!

За проектированием электрики квартиры - обращайтесь к нам AVB.SPB.RU

Делитесь мнениями и задавайте вопросы в комментариях, отвечаю на каждый!