Найти в Дзене
DOMAMO - проекты домов

ТОП-5 проектов деревянных домов с планировками

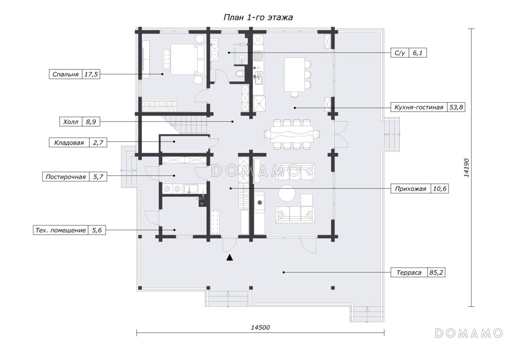
Из бревна, бруса, клееного бруса — есть несколько вариантов строительства деревянного дома для постоянного проживания. При соблюдении технологии, при правильной планировке и использовании качественных материалов дом из дерева будет ничуть не холоднее или не менее прочным, чем газобетонный или кирпичный. Приведем несколько примеров готовых проектов таких коттеджей. В подборке есть дома разные по этажности, площади и составу помещений. 1. Проект дома из клееного бруса с панорамными окнами и длинной террасой (D5643) На первом этаже традиционно размещена дневная зона: просторная кухня-гостиная с камином, вторым светом и окнами в пол, ведущими на террасу. Кроме этого, на этаже имеется спальня (17,5 кв. м) и вспомогательные помещения: санузел, кладовка, постирочная, котельная. На мансардном этаже выделены 3 спальни и санузел. Из холла открывается вид на гостиную внизу. Подобный дом можно построить за 5-9 млн р. Цену проекта и примерную стоимость строительства можно посмотреть на сайте: D5643
Оглавление

Из бревна, бруса, клееного бруса — есть несколько вариантов строительства деревянного дома для постоянного проживания. При соблюдении технологии, при правильной планировке и использовании качественных материалов дом из дерева будет ничуть не холоднее или не менее прочным, чем газобетонный или кирпичный.

Приведем несколько примеров готовых проектов таких коттеджей. В подборке есть дома разные по этажности, площади и составу помещений.

1. Проект дома из клееного бруса с панорамными окнами и длинной террасой (D5643)

  • Общая площадь: 219 м²;
  • Длина: 14,5 м;
  • Ширина: 14,19 м;
  • Этажи: 1 этаж + мансарда;
  • Кровля: натуральная черепица;
  • Материал стен: клееный брус;
  • Фундамент: монолитная ж/бетонная плита;
  • Стоимость проекта: 42 000 р. (на момент публикации).

На первом этаже традиционно размещена дневная зона: просторная кухня-гостиная с камином, вторым светом и окнами в пол, ведущими на террасу. Кроме этого, на этаже имеется спальня (17,5 кв. м) и вспомогательные помещения: санузел, кладовка, постирочная, котельная.

На мансардном этаже выделены 3 спальни и санузел. Из холла открывается вид на гостиную внизу.

Подобный дом можно построить за 5-9 млн р. Цену проекта и примерную стоимость строительства можно посмотреть на сайте: D5643.

2. Проект небольшого деревянного дома с гаражом (D2101)

-3
  • Общая площадь: 152 м²;
  • Длина: 12,8 м;
  • Ширина: 8,8 м;
  • Этажи: 1 этаж + мансарда;
  • Кровля: гибкая черепица;
  • Материал стен: брус;
  • Фундамент: ленточный заглубленный монолитный;
  • Стоимость проекта: 41 800 р. (на момент публикации).

К дому пристроен гараж (24,3 кв.м) с отдельным входом.

С крыльца ведут две двери: одна — в котельную, вторая — в тамбур, из которого можно пройти в прихожую. В дальнем конце коридора размещена спальня. Примерно половину этажа занимает гостиная с кухней-столовой.

Наверху архитектор разместил 3 спальни, ванную и небольшую кладовую. В спальнях установлены окна нестандартной формы. Ниже показали несколько примеров, как может выглядеть интерьер такой комнаты и ванной.

Такой дом можно построить за 2-6 млн р. Актуальная стоимость проекта и ориентировочные цены на строительство от нескольких компаний указаны на сайте: D2101.

3. Проект двухэтажного дома из бруса с мастер-спальней (D4420)

  • Общая площадь: 171 м²;
  • Длина: 11 м;
  • Ширина: 9,6 м;
  • Этажи: 2 этажа;
  • Кровля: металлочерепица;
  • Материал стен: брус;
  • Фундамент: ленточный заглубленный монолитный;
  • Стоимость проекта: 43 800 р. (на момент публикации).

На первом этаже расположены гостиная-столовая, кухня, спальня, санузел. Предусмотрена большая прихожая, кладовая и котельная с отдельным входом с террасы позади дома.

На втором этаже находятся 3 стандартные спальни, 2 санузла и мастер-спальня с еще одним отдельным санузлом.

Стоимость строительства такого дома составит 3-6 млн р. Комплектации от разных компаний вы можете посмотреть на сайте: D4420.

4. Проект бревенчатого дома с навесом для авто и широким балконом (D488)

  • Общая площадь: 198 м²;
  • Длина: 15.5 м;
  • Ширина: 12.5 м;
  • Этажи: 1 этаж + мансарда;
  • Кровля: гибкая черепица;
  • Материал стен: бревно;
  • Фундамент: ленточный заглубленный из ФБС;
  • Стоимость проекта: 52 800 р. (на момент публикации).

Планировка первого этажа содержит довольно много помещений. Здесь есть не только гостиная и просторная кухня-столовая, но и небольшая парная с душевой. Тамбур при входе дополнен гардеробной.

На мансардном этаже находятся 4 спальни разной площади и санузел. Из двух спален предусмотрены выходы на балконы.

Подобный дом можно построить за 1.5-6 млн р. Цену проекта и примерную стоимость строительства можно посмотреть на сайте: D488.

5. Проект одноэтажного гостевого дома (D1950)

И напоследок, рассмотрим небольшой гостевой дом и фото построенного объекта.

  • Общая площадь: 100 м²;
  • Длина: 9,9 м;
  • Ширина: 8,2 м;
  • Этажи: 1 этаж;
  • Материал стен: клееный брус;
  • Стоимость проекта: 29 000 р. (на момент публикации).

Этот проект больше подойдет для базы отдыха. Здесь запланированы 2 комнаты, каждая с отдельным санузлом, а также большая гостиная с выходом на террасу.

-11

Подобный дом можно построить за 1-3 млн р. Цену проекта и примерную стоимость строительства можно посмотреть на сайте: D1950

Понравилась подборка? Ставьте палец вверх и подписывайтесь на канал. По каким-либо вопросам и деталям по проектам пишите в комментариях, мы с удовольствием ответим Вам!

⭐ Приглашаем подписаться на нас на других площадках:

Там мы публикуем подборки проектов, варианты красивых решений для интерьеров загородных домов, советы по строительству от главного архитектора Domamo и другую полезную информацию.

📌 Больше проектов смотрите на сайте: дома из дерева на domamo.ru.