Найти в Дзене

Разбираемся с терминологией: дизайн-проект и ремонт.

Мы привыкли к некоторым словам и не обращаем внимания на уместность их употребления. Между тем, задумываться стоит. Ведь это наш великий и могучий русский язык. Когда я училась в юридическом, главным всегда было знать дефиницию, то есть определение какого-либо понятия, включающее его признаки и характеристики. Если выучил дефиницию, положительный балл на экзамене обеспечен. Чтобы было совсем ясно, возьмем для примера понятие «нормы права» - это волевое, общеобязательное, формально определенное правило поведения, регулирующее общественные отношения путем предоставления прав и возложения обязанностей, соблюдение которого обеспечено возможностью государственного принуждения. Из этого определения видим, что норма права – есть правило поведения, имеющее признаки: воля государства, принуждения, обязательность для всех, регулятора отношений в обществе, устанавливая четкие права и обязанности. И так с каждым определением. После такого привычного подхода, некоторое применение слов заставляет ме
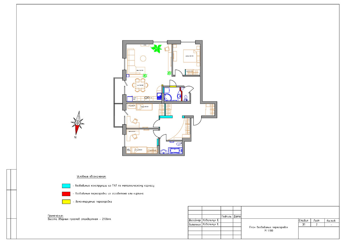
План возводимых перегородок в одной из квартир в процессе моей работы
План возводимых перегородок в одной из квартир в процессе моей работы

Мы привыкли к некоторым словам и не обращаем внимания на уместность их употребления. Между тем, задумываться стоит. Ведь это наш великий и могучий русский язык.

Когда я училась в юридическом, главным всегда было знать дефиницию, то есть определение какого-либо понятия, включающее его признаки и характеристики. Если выучил дефиницию, положительный балл на экзамене обеспечен.

Чтобы было совсем ясно, возьмем для примера понятие «нормы права» - это волевое, общеобязательное, формально определенное правило поведения, регулирующее общественные отношения путем предоставления прав и возложения обязанностей, соблюдение которого обеспечено возможностью государственного принуждения.

Из этого определения видим, что норма права – есть правило поведения, имеющее признаки: воля государства, принуждения, обязательность для всех, регулятора отношений в обществе, устанавливая четкие права и обязанности.

И так с каждым определением.

После такого привычного подхода, некоторое применение слов заставляет меня сопротивляться.

Вопрос: согласитесь ли Вы, что, когда мы слышим термин «дизайн-проект», то сразу ассоциации возникают с интерьером?

Как можно найти в словарях, слово «дизайн» (от англ. design замысел, план, намерение, цель и от лат. designare отмерять, намечать) появилось в XVI веке и однозначно употреблялось во всей Европе, а впервые упомянул его в одной из своих работ итальянец К.В. Скьер. Итальянское выражение «designo intero» означало рожденную у художника и внушенную Богом идею — концепцию произведения искусства.

Оксфордский словарь 1588 года дает следующую интерпретацию этого слова: «задуманный человеком план или схема чего-то, что будет реализовано, первый набросок будущего произведения искусства».

В сентябре 1969 года на конгрессе Международного совета организаций по дизайну (ИКСИД) было принято следующее определение: «Под термином дизайн понимается творческая деятельность, цель которой определение формальных качеств предметов, производимых промышленностью. Эти качества формы относятся не только к внешнему виду, но главным образом к структурным и функциональным связям, которые превращают систему в целостное единство с точки зрения, как изготовителя, так и потребителя».

Википедия рассказывает о дизайне, что это (от анл. design — проектировать, чертить, задумать, а также проект, план, рисунок) — деятельность по проектированию эстетических свойств промышленных изделий («художественное конструирование»), а также результат этой деятельности (например, в таких словосочетаниях, как «дизайн автомобиля»).

А также, что под словом «design» англоязычная литература начала XXI века понимает и стиль, и проект, и проектирование, и собственно «дизайн» — профессиональную деятельность, наряду с архитектурой или инженерным проектированием.

То есть всем ясно, что слово «дизайн» применимо ко всем сферам деятельности.

И, если это деятельность по проектированию, значит «дизайн-проект» в переводе на русский язык – это проектирование проекта или проектный проект? То есть масло масляное.

Мой совокупный анализ определений «дизайна» относительно к интерьеру для описания его признаков и характеристик позволяет применять словосочетание «дизайн интерьера» или "проект интерьера", а деятельность - «проектирование интерьера».

Развертка стен детского санузла в процессе моей работы.
Развертка стен детского санузла в процессе моей работы.

Теперь о термине «ремонт».

Тоже часто можно слышать, что кто-то делает ремонт в недавно купленной квартире.

Объект в новостройке
Объект в новостройке

Ничего не смущает?

Посмотрим на всем знакомое определение «ремонта»:

- это комплекс мероприятий по восстановлению работоспособного или исправного состояния какого-либо объекта и/или восстановлению его ресурса;

- это исправление разрушившегося или обветшавшего, починка;

и т.д.

После какого разрушения мы производим восстановление объекта в новой квартире?

Мы выполняем отделку нового помещения или объекта в целом!!! Ну есть же слово «отделка». Не дай Бог затопят, вот тогда будет ремонт – восстановление того, что было повреждено.

Что Вы думаете на эту тему? Пишите. Возможно, чьи-то аргументы приведут к другим выводам.

____________________________

Все материалы из рубрики "ПравДом можно посмотреть здесь

Строю дом на печи в Новосибирске и развиваю интернет-магазин товаров для дома и интерьера. Дипломы инженера-технолога и юриста помогают заниматься любимым делом.

Интернет-магазин "Манера Интерьера" в Telegram по ссылке

https://t.me/mannerinterior_channel

Я в Telegram https://t.me/elkovalchuk