Добавить в корзинуПозвонить
Найти в Дзене
ЭТО ВАШ ИНТЕРЬЕР

Девушка сделала стильное преображение ветхой квартиры площадью — 39 кв. м для своей мамы

Эта квартира принадлежит маме нашей героини. Так как квартира была в ужасном состоянии, заказчица решила обратиться к профессиональному дизайнеру, чтобы создать стильный, лёгкий и функциональный интерьер на небольшой площади. Проект Чтобы уместить всё необходимое, пришлось делать полную перепланировку пространства. Прихожая Входную группу оформили в светлых тонах. Стены оклеили обоями, а на пол уложили плитку с узорами. С левой стороны от входа установили встроенную систему хранения с деревянными фасадами. В углу этой системы есть небольшой лаз для кошки (там стоит её лоток). Напротив входной двери повесили большое зеркальное панно. Так же в прихожей есть хозяйственный шкаф, где поставили стиральную машину. Кухня-гостиная С левой стороны появилась кухонная зона. Гарнитур выбрали линейный. Верхние фасады выполнены в классическом белом цвете, а нижние выполнены в насыщенном сине-голубом оттенке. Слева установили встроенные функциональные колонны, где находится бытовая техника и места дл
Оглавление

Эта квартира принадлежит маме нашей героини. Так как квартира была в ужасном состоянии, заказчица решила обратиться к профессиональному дизайнеру, чтобы создать стильный, лёгкий и функциональный интерьер на небольшой площади.

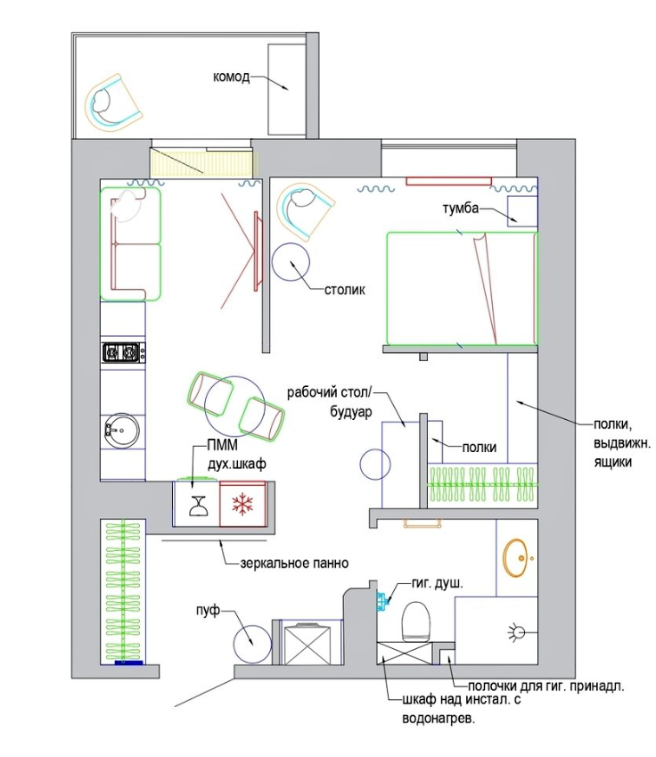
Проект

  • Местонахождение: г. Казань
  • Площадь квартиры: 39 кв. м
  • Владельцы: мама заказчицы

Чтобы уместить всё необходимое, пришлось делать полную перепланировку пространства.

Прихожая

Входную группу оформили в светлых тонах. Стены оклеили обоями, а на пол уложили плитку с узорами. С левой стороны от входа установили встроенную систему хранения с деревянными фасадами. В углу этой системы есть небольшой лаз для кошки (там стоит её лоток). Напротив входной двери повесили большое зеркальное панно. Так же в прихожей есть хозяйственный шкаф, где поставили стиральную машину.

Кухня-гостиная

С левой стороны появилась кухонная зона. Гарнитур выбрали линейный. Верхние фасады выполнены в классическом белом цвете, а нижние выполнены в насыщенном сине-голубом оттенке. Слева установили встроенные функциональные колонны, где находится бытовая техника и места для хранения. Напротив гарнитура встал небольшой обеденный столик.

Возле окна расположили компактную гостиную. У стены встал диван в горчичном цвете. Стену за диваном сделали акцентной. В дальнейшем, напротив дивана будет висеть телевизор.

Балкон

Балкон тоже полностью обновили и оформили в новой стилистике.

-5

Спальня

Перед входом в спальню появился небольшой туалетный столик для хозяйки. Саму спальню сделали полностью изолированной. Справа от входа в спальню организовали гардеробную. В центре комнаты поставили двуспальную кровать с изумрудным мягким изголовьем. Стену за изголовьем оформили в необычном стиле: здесь сочетаются обои в насыщенном цвете, зеркало и настенные панели под потолком.

Ванная комната

Стены и пол облицованы четырьмя видами плитки: стандартного серого цвета, мятного оттенка, розовой мозаики и на полу плитка с узорами. Вместо стандартной ванны здесь появился душ.

Если вам понравилась статья, то не забудьте поставить лайк и подписаться, чтобы не пропустить новый материал!

Так же пишите в комментариях, что вам понравилось в этом проекте, а что вызывает сомнения

Если вам будет интересно, то заходите на мой второй новый канал)