Найти в Дзене
Пикабу

Квартира. Первая, долгожданная, своя!

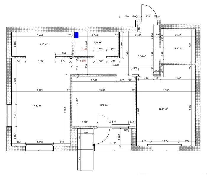
Дано: 2-х комнатная квартира, 67 кв. м. От застройщика досталась довольно неплохая планировка: кухня-гостиная, две спальни, два санузла, гардеробная, лоджия и балкон: Планировка хоть и была весьма удачной, но нам немного не подходила. Санузлов хоть и было два, но оба небольшие, а нам хотелось один санузел, в который должна была уместиться ванная, унитаз, раковина, стиральная машинка и большой шкаф для всего (грязное белье, полотенца, химия и прочее). С этого мы и начали перепланировку. Расширили один санузел до нужных размеров за счет небольшого сдвига коридора и уменьшения холла, а второй санузел уменьшили и сделали из него кладовую (давно мечтал о комнате для хлама). Остальное особо не трогали и получилось вот так: Начали мы почему-то с замены входной двери, не знаю почему, может это как-то символично! Хоть и неудобно в процессе последующего ремонта. После, так как часть стен пришлось переносить, а на одной из оставшихся была трещина, то решили все снести: Далее, возвели новые стены,

Дано: 2-х комнатная квартира, 67 кв. м. От застройщика досталась довольно неплохая планировка: кухня-гостиная, две спальни, два санузла, гардеробная, лоджия и балкон:

Планировка хоть и была весьма удачной, но нам немного не подходила.

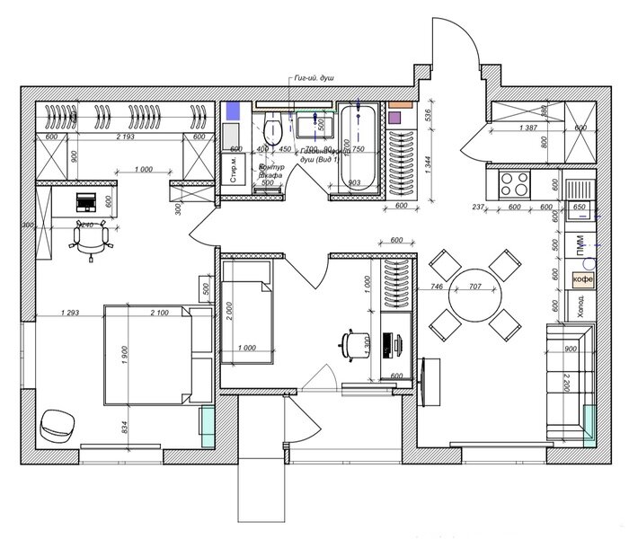
Санузлов хоть и было два, но оба небольшие, а нам хотелось один санузел, в который должна была уместиться ванная, унитаз, раковина, стиральная машинка и большой шкаф для всего (грязное белье, полотенца, химия и прочее). С этого мы и начали перепланировку. Расширили один санузел до нужных размеров за счет небольшого сдвига коридора и уменьшения холла, а второй санузел уменьшили и сделали из него кладовую (давно мечтал о комнате для хлама). Остальное особо не трогали и получилось вот так:

.
.

Начали мы почему-то с замены входной двери, не знаю почему, может это как-то символично! Хоть и неудобно в процессе последующего ремонта.

После, так как часть стен пришлось переносить, а на одной из оставшихся была трещина, то решили все снести:

-3

Далее, возвели новые стены, перенесли шкаф с гребенками отопления, сделали разводку электрики и сантехники, перенесли выводы к батареям с пола на стены, сделали выводы под сплит-системы (от застройщика они хоть и были, но в неудачных местах) и бризеры:

В процессе мы еще всё время что-то покупали, что пригодится дальше в ремонте, поэтому квартира постепенно захламлялась плиткой, сантехникой, бытовой и не только техникой и прочим.

После заделали штробы и приступили к укладке керамогранита на пол везде, кроме спален, а также на стены в санузле:

Плиточные работы заняли уйму времени из-за очень медленных и постоянно пропадающих работников, но все таки мы победили.

Дальше приступили к установке дверей (они скрытого монтажа, поэтому их нужно было поставить до работ со стенами), подготовке стен под покраску, сборке гипсокартонного потолка и заливке пола под паркет в спальнях:

После, покраска всего, и даже бетонного потолка в коридоре и кухне-гостиной, хотя изначально планировалось оставить чистый бетон, только вскрыть его лаком, но строители не смогли отмыть от него штукатурку, которая за долгое время успела к оставит следы намертво. Заодно положили паркет:

С установленными плинтусами и финишной покраской, а также частично установленной электрикой:

Поставили всю сантехнику в санузле. Кран на раковине после поменяли на другой, побольше. Розетки поменял на чёрные. Хоть они и должны были быть спрятаны в шкафу, как и вся левая часть санузла, но денег на шкаф уже не было:

-9

Дальше купили диван, кровать в спальню и гардероб, и начали сборку кухни:

Жена разрисовала детскую и собрали кровать:

-11

И итоговый результат (в комментариях). На встроенные шкафы в холле и санузле денег не осталось, поэтому обошлись шторкой и крючками. Довольно много денег ушло на наполнение кухни, а точнее на кран, раковину, измельчитель и фильтр, плюс всякого по мелочи. Не без косяков, конечно. Сейчас бы я некоторые вещи сделал чуть иначе. Ремонт заняла 2, 5 года (с мая 2020 по октябрь 2022), немножечко нервов и не немножечко денег:

-12

Есть что доделать, исправить, поменять.

Читайте также.