Добавить в корзинуПозвонить
Найти в Дзене
Каркасникоff

Каркасный дом "Кронштадт" 6х9 метров. Очень стильный, с окнами в пол.

Преимущества проекта "Кронштадт" Каркасный дом для большой семьи или компанейских хозяев Что входит в стоимость? Проектная документация Мы строим только по тщательно проработанной проектной документации. Для строителей - это точная инструкция, каким должен быть объект: расстояние между лагами, высота ступек лестницы - каждый элемент должен соответствовать требованиям проектной документации.
Для заказчика - это гарантия того, что построенный дом будет соответствовать Вашим ожиданиям. Технадзор Мы задали себе высокие стандарты качества, чтобы Вы получали удовольствие от жизни в новом доме. Чтобы соответствовать этим стандартам мы детально проектируем проекты, обучаем каждого строителя, а главное - каждый ключевой этап работы проверяет специалист по технадзору, требовательный и внимательный к мелочам.
Проверки специалистов технадзора снижают количество дефектов при строительстве в среднем на 70%. Проверка энергоэффективности перед сдачей. Проверяем энергоэффективность дома тепловизорами.
Оглавление
Каркасный дом "Кронштадт" 6х9 метров.
Каркасный дом "Кронштадт" 6х9 метров.

Преимущества проекта "Кронштадт"

Каркасный дом для большой семьи или компанейских хозяев

  • Терраса создает дополнительное пространство для встреч и общения.
    Вечерние чаепития никогда не были такими приятными.
  • Комнат в доме 6, и это оптимальное количество для такой площади.
    Этот дом для большой семьи или для тех, кто любит принимать гостей.
  • Каркасный дом в стиле барнхаус выглядит очень стильно.
    Этот дизайн не устареет долгие десятилетия
  • Дом очень эффектный и привлекает взгляды
    Вы можете быть оригинальными по-разному, в том числе благодаря необычному дому.
  • Баня или сауна прямо в доме.
    Это идеальное решение для тех, кто ценит традиции и не хочет иметь много построек на участке.
  • Оригинальный внешний вид дома
    Этот дом выглядит очень стильно и выгодно отличается от обычных типовых проектов
  • Сауна в доме позволит экономить на тепловой энергии.
    Сауна, остывая, отдает тепло в дом морозными вечерами
  • Панорамные окна придают дому современный вид.
    Изнутри дом кажется значительно больше, за счет значительного расширения пространства.
  • Габариты дома 6 на 9 метров.
    Двухэтажный дом просторный, но не занимает большой площади на участке.
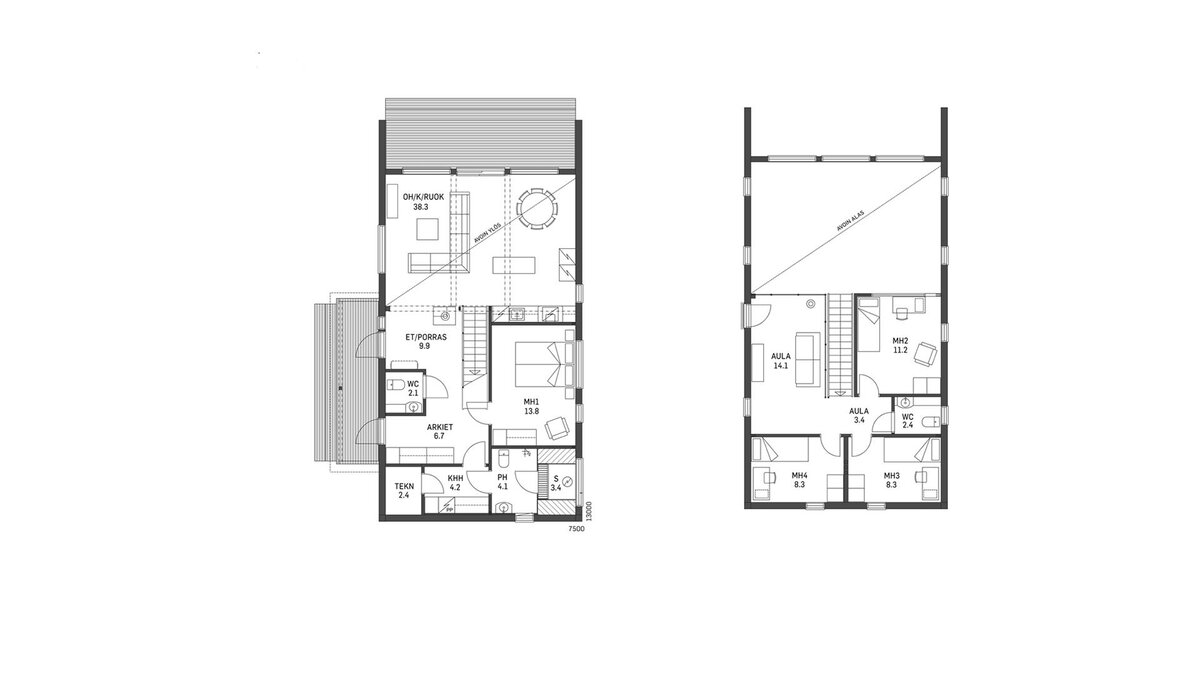
План этажей
План этажей

  • Размеры: 9х6м
  • Площадь: 137м2
  • Этажность: 2 этажом
  • Количество комнат: 6 комнат
  • С террасой
  • С вторым светом
  • С сауной
  • С панорамными окнами
  • С большими окнами
  • С окнами в пол

Что входит в стоимость?

Проектная документация

Мы строим только по тщательно проработанной проектной документации. Для строителей - это точная инструкция, каким должен быть объект: расстояние между лагами, высота ступек лестницы - каждый элемент должен соответствовать требованиям проектной документации.
Для заказчика - это гарантия того, что построенный дом будет соответствовать Вашим ожиданиям.

Технадзор

Мы задали себе высокие стандарты качества, чтобы Вы получали удовольствие от жизни в новом доме. Чтобы соответствовать этим стандартам мы детально проектируем проекты, обучаем каждого строителя, а главное - каждый ключевой этап работы проверяет специалист по технадзору, требовательный и внимательный к мелочам.
Проверки специалистов технадзора снижают количество дефектов при строительстве в среднем на 70%.

Проверка энергоэффективности перед сдачей.

Проверяем энергоэффективность дома тепловизорами. Будьте уверены, что Вы получите действительно энергоэффективный дом с потерями тепла, близкими к нулю.Все элементы соединения и монтажа проверяются на наличие щелей, из-за которых проникает холод.
Это особенно важно, если у Вас маленькие дети.

Помощь экспертов по стройке

В ходе обсуждения начала строительства Вы сможете получить рекомендации наших проектировщиков, архитекторов, геологов и инженеров. Они помогут выбрать лучший вариант строительства с учетом возможностей участка и Ваших пожеланий.

Титульный лист проекта каркасного дома "Кронштадт"
Титульный лист проекта каркасного дома "Кронштадт"

Если вам понравился этот проект, можете написать нам в любой месенджер: наша группа в телеграме, группа вконтакте или на почту

Подписывайтесь на канал, чтобы видеть больше подобных проектов!