Найти в Дзене
GREY HOUSE

Фотоотчет о строительстве каркасного дома

Оглавление

Сейчас наша бригада работает на объекте в Тверской обл., д. Родня.

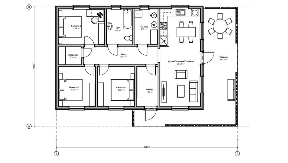
Строят дом по проекту Химос с 3-мя спальнями.

Планировка дома

Планировка дома
Планировка дома

Визуализация дома

-2

Бригада смонтировала обвязку фундамента, черновой пол, нулевое перекрытие и каркас дома.

Фотоотчет о строительстве дома

Разгрузка материала
Разгрузка материала
Обвязка фундамента
Обвязка фундамента
Защитная сетка от грызунов
Защитная сетка от грызунов
Ветрозащитная мембрана
Ветрозащитная мембрана
Монтаж нулевого перекрытия
Монтаж нулевого перекрытия
Строительство каркаса
Строительство каркаса
Строительство каркаса
Строительство каркаса
Строительство каркаса
Строительство каркаса
Строительство каркаса
Строительство каркаса
Строительство каркаса
Строительство каркаса
Строительство каркаса
Строительство каркаса

Комплектация дома:
- Каркас дома сухой строганный 45х145мм
- Ветрозащита -
JUTAVEK 115
- Пароизоляция Ютафол Н110+скотч
Delta
- Отделка снаружи скандинавская доска толщиной 21мм
с заводской покраской
- Утепление - пол, потолок, наружные стены 200мм
 Paroc Extra Light, перегородки 150мм
- Отделка внутри - имитация бруса толщиной 20мм 
- Отделка пола ОСП толщиной 22мм
- Отделка пола на террасе лиственницей толщиной 28мм
- Кровля - металлочерепица толщиной 0,45мм

- Окна
ПВХ Rehau Grazio толщиной 70мм двойной стеклопакет 
- Двери входные -
ПВХ Rehau толщиной 70мм
- Водосточная система
GrandLine
- Снегозадержатели
- Защитная сетка от грызунов

Мы предлагаем строительство дома в максимально сжатые сроки:

  • Выход на стройку за 2 недели
  • Срок строительства до 6 недель

Наши преимущества:
1. Бригады: постоянные, история строительства (фотоотчеты), можно выбрать понравившуюся бригаду, можно посетить строящиеся объекты, почитать отзывы клиентов
2. Документация: детальная смета, чертежи дома в соответствии с нормами, разработанные конструктором
3. Премиальное качество и разумная цена

Цена и базовая комплектация -https://grey-house.ru/ceny/himos/

***
Все новости читайте в нашем телеграм-канале

Подписывайтесь на нашу группу Вконтакте

И, конечно же, подписывайтесь на нас в «Дзене»

Наши контакты:
Телефон:
8-495-504-71-33
What’s App
mail@grey-house.ru
Сайт:
grey-house.ru