Найти в Дзене

Комната + прихожая 24 кв.м. Стоимость проекта 7500.-

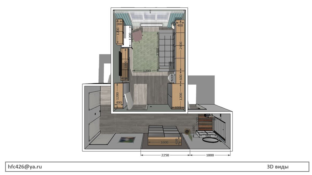
Виктория с семьёй переехали в новую квартиру. Планировка удобная, поэтому с обустройством кухни и комнат справились сами. К дизайнеру обратились для планирования прихожей с длинным коридором и гостевой комнаты-кабинета. Во всей квартире ламинат светло-серого цвета с текстурой ясеня, комнате светло-зелёные обои и бирюзовые шторы. "Грязную зону" прихожей разместили у самого входа. Длину коридора разделили на три части цветом обоев. Зеркальный шкаф небольшой глубины и зеркальная стена напротив визуально расширят узкое пространство и организуют "эффект примерочной". При входе в квартиру, не смотря на отсутствие простенка слева, поместится обувница глубиной 18см. Зонты, перчатки, средства по уходу за обувью удобно хранить за откидными фасадами. Искусственное растение на границе прихожей и коридора, ведущего в приватную часть квартиры, создаёт приятное впечатление "welcome" и облагораживает вид из кухни в прихожую. Комната выполняет функцию гардеробной, поэтому разместили шкафы 200см разно

Виктория с семьёй переехали в новую квартиру. Планировка удобная, поэтому с обустройством кухни и комнат справились сами. К дизайнеру обратились для планирования прихожей с длинным коридором и гостевой комнаты-кабинета. Во всей квартире ламинат светло-серого цвета с текстурой ясеня, комнате светло-зелёные обои и бирюзовые шторы.

"Грязную зону" прихожей разместили у самого входа. Длину коридора разделили на три части цветом обоев. Зеркальный шкаф небольшой глубины и зеркальная стена напротив визуально расширят узкое пространство и организуют "эффект примерочной".

При входе в квартиру, не смотря на отсутствие простенка слева, поместится обувница глубиной 18см. Зонты, перчатки, средства по уходу за обувью удобно хранить за откидными фасадами. Искусственное растение на границе прихожей и коридора, ведущего в приватную часть квартиры, создаёт приятное впечатление "welcome" и облагораживает вид из кухни в прихожую.

Комната выполняет функцию гардеробной, поэтому разместили шкафы 200см разной глубины с тем же эффектом примерочной. Диван для гостя, и рабочее место для Виктории. в антресольных шкафах над диваном - домашний текстиль. Над рабочим местом и под тв - хранение книг и папок с документами.

Свет в прихожей уже подключен. Для комнаты добавили торшер у дивана и свет у рабочего места. Сделали подборку из товаров популярных производителей.

Вариант цветового оформления комнаты
Вариант цветового оформления комнаты

-7

Приятного обустройства вашей семье, Виктория!