Добавить в корзинуПозвонить
Найти в Дзене
ДОМОСБОР

Сканди-классика с ноткой брутальности — проект мини-дома Kalla (49 м2) для семьи из 3-4 человек

Если вы мечтаете о собственном домике, но привыкли ко всем благам цивилизации и жизни в городе, то мы предлагаем познакомится с современным проектом деревянного дома, который предлагает лучший опыт от жизни за городом. Kalla (общая площадь: 49 м2) — это идеальный проект для городских жителей, которые хотят себе небольшой домик подходящий, как для дачного формата, так и для круглогодичной жизни за городом. Калла — это деревянный дом из клееного бруса с темным экстерьером, с одной стороны, это довольно радикальный прием, с с другой — это все та же дань консерватизму. Темный фасад дома идеально интегрируется в окружающую среду и впишется в любой окружающий пейзаж. Компактный небольшой коттедж с панорамными окнами позволит наслаждаться прекрасным видом из окон, и наслаждаться каждым днем вашей жизни. Крытая терраса может служить, как летней кухней, так и местом для барбекю. Проект Kalla доступен в конфигурации «RoofDeck» с террасой на крыше. Настоящая находка для людей, которые хотят п
Оглавление

Если вы мечтаете о собственном домике, но привыкли ко всем благам цивилизации и жизни в городе, то мы предлагаем познакомится с современным проектом деревянного дома, который предлагает лучший опыт от жизни за городом.

Kalla (общая площадь: 49 м2) — это идеальный проект для городских жителей, которые хотят себе небольшой домик подходящий, как для дачного формата, так и для круглогодичной жизни за городом.

Калла — это деревянный дом из клееного бруса с темным экстерьером, с одной стороны, это довольно радикальный прием, с с другой — это все та же дань консерватизму. Темный фасад дома идеально интегрируется в окружающую среду и впишется в любой окружающий пейзаж.

Компактный небольшой коттедж с панорамными окнами позволит наслаждаться прекрасным видом из окон, и наслаждаться каждым днем вашей жизни. Крытая терраса может служить, как летней кухней, так и местом для барбекю.

-3

Проект Kalla доступен в конфигурации «RoofDeck» с террасой на крыше. Настоящая находка для людей, которые хотят получить максимум из небольшой площади, и например, наслаждаться чашкой кофе с видом на озеро. Помимо этого, летом там можно расположить обеденный стол, и тем самым разгрузить гостиную.

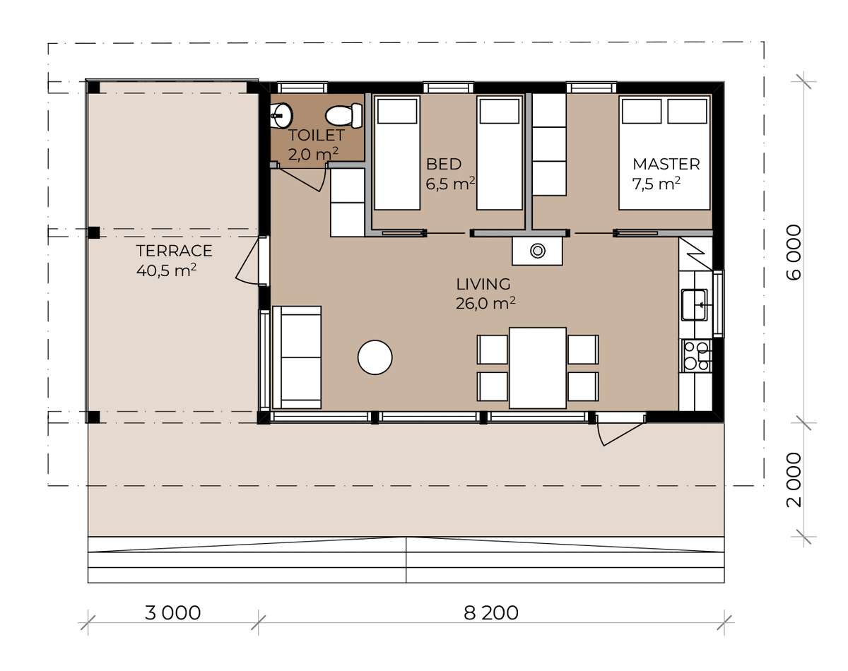
Планировка. В доме предусмотрена просторная кухня-гостиная, две спальни и туалет. Две просторные террасы расширяют полезное пространство дома и позволяют разгрузить вашу гостиную.

Заинтересовал проект Kalla?

Свяжитесь с нами, и мы обсудим все нюансы фундамента, инженерии и всей конструкции, мы обязательно примем во внимание все ваши пожелания и реализуем проект вашей мечты.

Вы можете написать нам в ВКонтакте или Telegram, оставить комментарий или воспользоваться нашими прямыми контактами:

  • 8 (800) 301-50-51
  • info@domosbor.ru

Обсудить проект можно в нашем чате

Ищите что-то другое?

Сегодня DOMOSBOR — это 30 лучших производителей, включая иностранные производства, десятки партнеров в лице архитекторов и дизайнеров, а также 8 основных технологий деревянного домостроения, которые мы используем для реализации наших первоклассных домов.

Подберите свой идеальный деревянный дом с помощью нашего бота

Также подписывайтесь на наши социальные сети, чтобы не пропустить ничего интересного:

Наш канал в TelegramВКонтактеОдноклассники