Добавить в корзинуПозвонить
Найти в Дзене

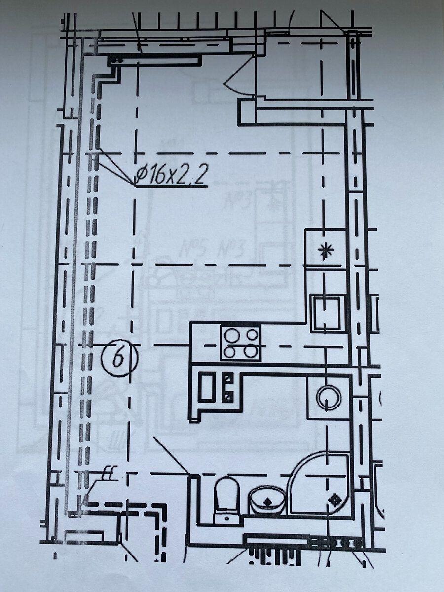
Квартира студия в ЖК Яркий Уфа

Думаете где купить квартиру студию в Уфе? Сегодня на ваш обзор предоставляю один из вариантов. Сначала рассмотрим планировку. Компактная квартира для проживания одного человека. Квартира находится на 18 этаже Санузел с ремонтом, поклеена плитка. Если понравилась квартира или хотите подобрать подобный вариант, то пишите. С уважением, агент по недвижимости Рифат.

Думаете где купить квартиру студию в Уфе?

Сегодня на ваш обзор предоставляю один из вариантов.

Сначала рассмотрим планировку. Компактная квартира для проживания одного человека.

Квартира студия жк Яркий Уфа
Квартира студия жк Яркий Уфа
22-х этажный дом
22-х этажный дом

Квартира находится на 18 этаже

До дворе дома многофункциональная площадка
До дворе дома многофункциональная площадка

Во дворе дома детская площадка
Во дворе дома детская площадка
Для тех кто занимается спортом имеется спортивная площадка
Для тех кто занимается спортом имеется спортивная площадка
Входим в квартиру, справа совмещённый санузел с ремонтом
Входим в квартиру, справа совмещённый санузел с ремонтом
Проходим в кухня- гостиная
Проходим в кухня- гостиная
Кухня в квартире студии
Кухня в квартире студии
Вид со стороны окна
Вид со стороны окна
Санузел  в квартире студии: ванна, раковина, унитаз.
Санузел в квартире студии: ванна, раковина, унитаз.

Санузел с ремонтом, поклеена плитка.

Если понравилась квартира или хотите подобрать подобный вариант, то пишите.

С уважением, агент по недвижимости Рифат.