Добавить в корзинуПозвонить
Найти в Дзене

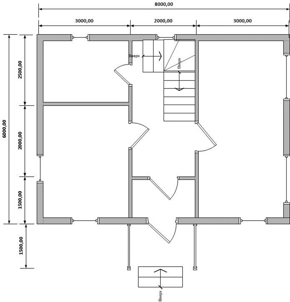
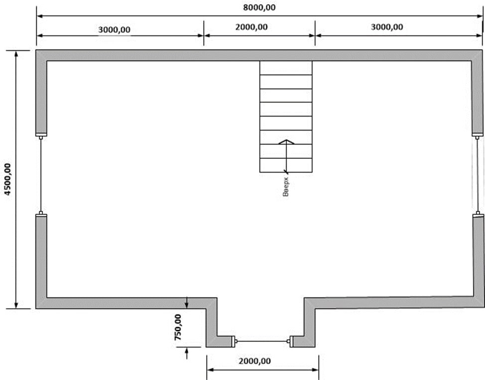
Каркасный дом 6х8 с внешней отделкой. Фотоотчет, планировка, цена.

📅 Дата сдачи: июнь 2022 г.
🏡 Комплектация: каркас 150мм с отделкой
💰 Стоимость: 1 200 000 ₽ Планировка: 👉🏻 Комплектация дома «с внешней отделкой»: - двойная обвязка основания из бруса 150х150мм и 50х150мм
- лаги из бруса 50х150мм, 100х150мм, шаг 0,59м
- защитная металлическая сетка от грызунов
- черновые полы 22х100мм, на брусок 40х50мм
- несущие стены (обвязки, стойки, укосы, ригель) 50х150мм, шаг 0,59м
- перегородки (обвязки, стойки, укосы, ригель) 50х100мм, шаг 0,59м
- высота потолков: 2,5м/2,5м
- потолочные перекрытия 50х150мм, шаг 0,59м
- стропильная система 50х150мм, шаг 0,59м
- крыша двухскатная, высота конька 3,5м, свесы крыши 40см
- кровля: м\ч Монтеррей, ветрозащита, контр-обрешетка
- стены снаружи, ветрозащита, контр-рейка 40х50мм, и имитация бруса 140мм
- утепление и отделка внутри не выполняются
- мембранные пленки Ондутис SA115, А100, R70, скотч "Ондутис ML"
- окна деревянные (двойного остекления)
- двери, входная - металлическая (утепленная)
- обработка антисептико

📅 Дата сдачи: июнь 2022 г.
🏡 Комплектация: каркас 150мм с отделкой
💰 Стоимость: 1 200 000 ₽

Планировка:

👉🏻 Комплектация дома «с внешней отделкой»:

- двойная обвязка основания из бруса 150х150мм и 50х150мм
- лаги из бруса 50х150мм, 100х150мм, шаг 0,59м
- защитная металлическая сетка от грызунов
- черновые полы 22х100мм, на брусок 40х50мм
- несущие стены (обвязки, стойки, укосы, ригель) 50х150мм, шаг 0,59м
- перегородки (обвязки, стойки, укосы, ригель) 50х100мм, шаг 0,59м
- высота потолков: 2,5м/2,5м
- потолочные перекрытия 50х150мм, шаг 0,59м
- стропильная система 50х150мм, шаг 0,59м
- крыша двухскатная, высота конька 3,5м, свесы крыши 40см
- кровля: м\ч Монтеррей, ветрозащита, контр-обрешетка
- стены снаружи, ветрозащита, контр-рейка 40х50мм, и имитация бруса 140мм
- утепление и отделка внутри не выполняются
- мембранные пленки Ондутис SA115, А100, R70, скотч "Ондутис ML"
- окна деревянные (двойного остекления)
- двери, входная - металлическая (утепленная)
- обработка антисептиком основания, лаг, черновых полов

Посмотреть видеоотзыв: https://dzen.ru/video/watch/6315e881195bcd12e6bb8d8e

Посмотреть комплектации и цены на сайте:
https://bagrovstroy.ru/karkasnye-doma/evgenij

Понравился дом? Свяжитесь с нами, мы сделаем для вас расчет стоимости или подберем подходящий проект под ваши пожелания.

📍 Наши контакты:

• Сайт: bagrovstroy.ru
• Группа VK:
vk.com/bagrovstroy